Large plot, planning permission and countryside views for family renovation.
Detached two-bedroom bungalow on a large plot with field views both sides
Full planning permission to increase to four beds and four bath/shower rooms
Chain free sale for a quicker, uncomplicated purchase process
Requires renovation; ideal for phased improvement or full refurbishment
Cavity walls likely uninsulated; consider thermal upgrade costs
Oil-fired heating; ongoing fuel and maintenance considerations
Medium flood risk — check insurance and flood resilience measures
Slow broadband and rural location; mobile signal only average
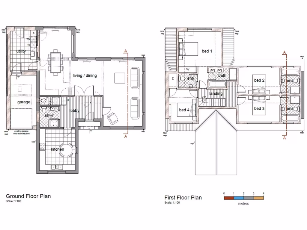
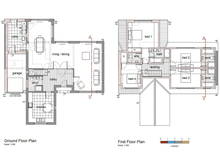
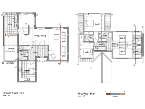
This detached two-bedroom bungalow sits on a large plot in Walpole Highway and offers expansive field views to the front and rear. The current accommodation includes a 22ft sitting room, kitchen, conservatory, shower room and two double bedrooms — all set within a mid-20th century footprint that requires updating.
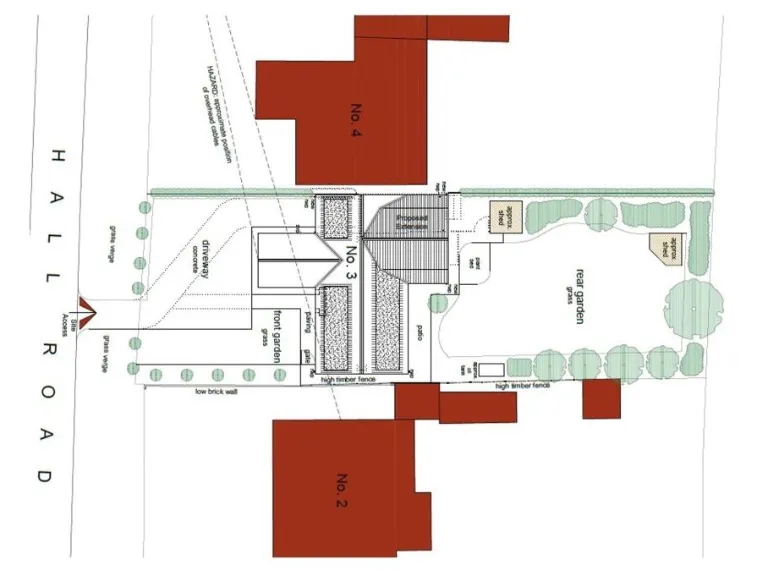
A major value driver is full planning permission (Ref: 23/00476/F) for a rear and side extension plus loft conversion, allowing phased works to create four bedrooms and four bath/shower rooms. The property is chain free and has useful off-road parking and an adjoining garage, making an immediate project straightforward to start.
Buyers should note the property needs renovation: walls are cavity with assumed no insulation, the heating is oil-fired with a boiler and radiators, and broadband speeds are slow. There is a medium flood risk for the area and the wider locality shows higher-than-average deprivation indicators — these are important practical considerations for lenders, insurers and long-term running costs.
For families or buyers seeking a countryside project, this home offers strong potential to create a roomy, modern house while retaining sweeping rural outlooks. The plot size and existing permission make staged investment possible, whether you complete the permitted works in full or reconfigure within the existing footprint.
3 bedroom detached bungalow for sale in Smeeth Road, Marshland St. James, Wisbech, Norfolk, PE14 — £265,000 • 3 bed • 1 bath • 1018 ft²
4 bedroom detached house for sale in Mill Road, Walpole Highway, Norfolk, PE14 — £525,000 • 4 bed • 3 bath • 1977 ft²
3 bedroom detached bungalow for sale in Walpole St. Andrew, Wisbech, Norfolk, PE14 — £325,000 • 3 bed • 1 bath • 1241 ft²
3 bedroom detached house for sale in Chalk Road, Walpole St. Peter, WISBECH, PE14 — £300,000 • 3 bed • 1 bath • 823 ft²
3 bedroom detached bungalow for sale in St. Pauls Road North, Walton Highway PE14 — £299,995 • 3 bed • 1 bath • 1133 ft²
3 bedroom detached bungalow for sale in Jubilee Lane, Marshland St. James, Wisbech, PE14 — £425,000 • 3 bed • 1 bath • 722 ft²






















































































