Spacious four-bedroom home near schools and excellent commuter links.
Quiet cul-de-sac location backing onto farmland and open fields
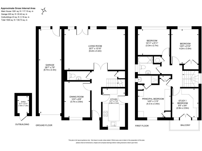
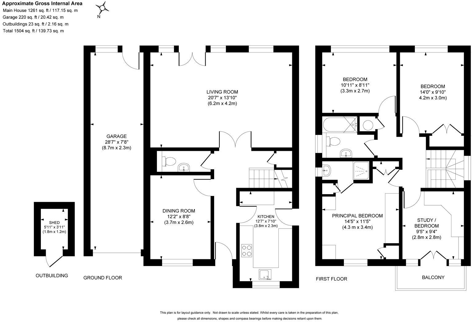
Tucked at the end of a quiet cul-de-sac, this four-double-bedroom detached house offers practical family living with a rare south-facing garden that backs directly onto open farmland. The principal bedroom has an en-suite and a private balcony; a spacious rear-aspect lounge and separate dining room give flexible reception space for everyday family life and entertaining.
The kitchen is modern and well-equipped, and the double-length garage plus private driveway provide excellent storage and parking — the garage also offers conversion potential subject to planning. Location is a strength: Bisley Primary School is within walking distance and Brookwood station and the M3 are close by for fast commuting to London.
There are some clear maintenance and running-cost considerations to note. The property dates from the late 1960s/early 1970s and cavity walls are assumed to be uninsulated; the double glazing appears to pre-date 2002, and the house would benefit from targeted modernisation to improve energy efficiency and update finishes. Council tax is described as expensive, and local crime levels are higher than average for the area, which buyers should factor into their decision.
Overall this is a solid family home in an affluent suburb with strong outside space and commuter links. It will suit buyers seeking a ready-to-live-in layout with scope to add value through insulation, glazing upgrades and cosmetic modernisation.
4 bedroom detached house for sale in Bisley, Surrey, GU24 — £625,000 • 4 bed • 2 bath • 1465 ft²
4 bedroom detached house for sale in Snowdrop Way, Bisley, Woking, GU24 — £650,000 • 4 bed • 2 bath • 1662 ft²
4 bedroom detached house for sale in Snowdrop Way, Bisley, Woking, Surrey, GU24 — £600,000 • 4 bed • 1 bath • 1281 ft²
4 bedroom detached house for sale in Arethusa Way, Woking, GU24 — £625,000 • 4 bed • 2 bath • 1886 ft²
4 bedroom detached house for sale in Snowdrop Way, Bisley, Woking, Surrey, GU24 — £900,000 • 4 bed • 2 bath • 2400 ft²
5 bedroom detached house for sale in Bisley, GU24 — £895,000 • 5 bed • 3 bath • 1836 ft²














































































