**Standout Features:**
- Two-bedroom garden flat in Poets Corner, Acton
- Share of Freehold and private entrance
- Expansive 50-foot rear garden ideal for entertaining
- Potential to extend (subject to planning permission)
- Chain-free sale
- Close proximity to local amenities and transport links
- Above-average crime rate in the area
---
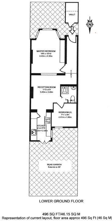
Discover this charming two-bedroom garden flat in the sought-after Poets Corner, Acton, offering a unique blend of comfort and potential. With a private entrance, this residence boasts a spacious reception room complete with a traditional fireplace and a well-appointed kitchen that seamlessly opens to an impressive 50-foot private garden—perfect for outdoor leisure or entertaining guests.
Benefiting from a share of freehold and the exciting possibility of extending (STPP), this flat represents a valuable opportunity for first-time buyers or investors looking to create their dream home. The property is ideally positioned close to a vibrant array of local amenities, including restaurants, cafes, and shops, all within walking distance. Public transport options, including Acton Central and Acton Town stations, make commuting effortless.
While the area has an above-average crime rate, its community vibe and access to excellent schools, such as the Outstanding-rated Ark Priory Primary Academy, enhance its appeal for families. With no onward chain, this property is ready for immediate enjoyment—don’t miss the chance to explore its potential before it’s gone!
2 bedroom flat for sale in Chaucer Road, Acton, W3 — £525,000 • 2 bed • 1 bath • 625 ft²
2 bedroom flat for sale in Cowper Road, Acton, W3 — £530,000 • 2 bed • 1 bath • 6211 ft²
2 bedroom flat for sale in Shakespeare Road, Poets Corner,Acton,London, W3 — £400,000 • 2 bed • 1 bath • 855 ft²
2 bedroom flat for sale in Myrtle Road, Acton, W3 — £550,000 • 2 bed • 1 bath • 792 ft²
2 bedroom flat for sale in Churchfield Road, Acton, W3 — £699,950 • 2 bed • 2 bath • 850 ft²
1 bedroom flat for sale in Myrtle Road, Poets Corner, Acton, W3 — £400,000 • 1 bed • 1 bath • 441 ft²


































