Lovingly restored village house with large garden and open countryside views.
Late-1890s detached family home retaining original features
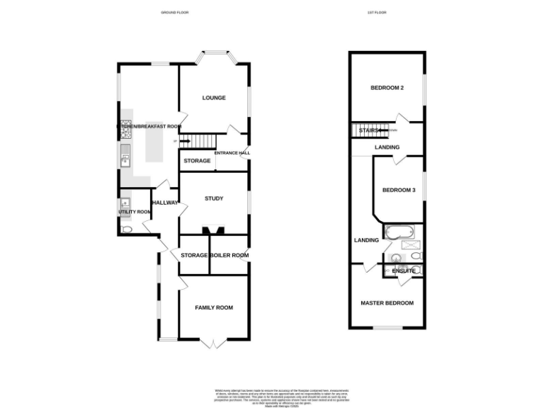
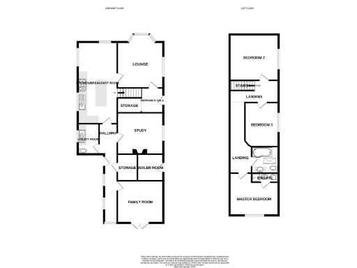
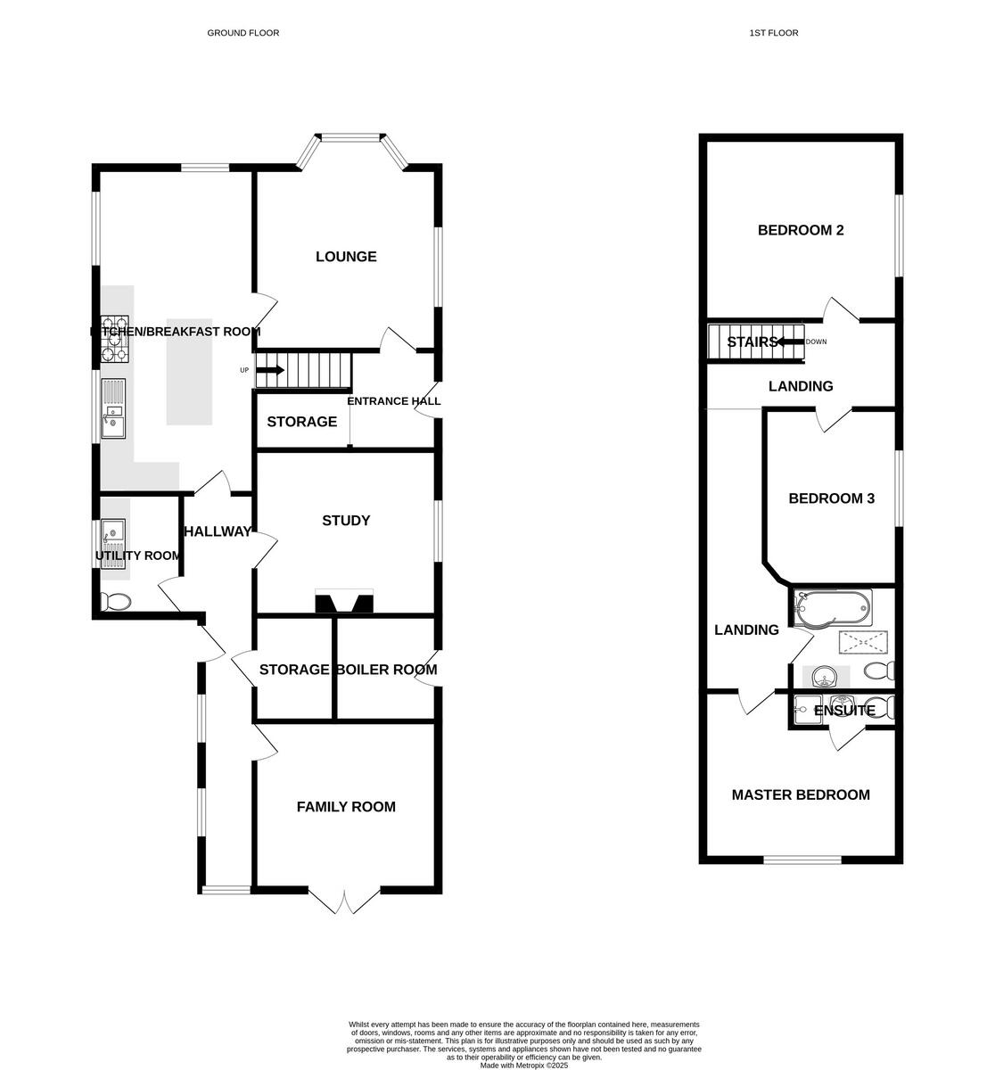
Extremely large living space — approx. 1,787 sq ft
22ft open-plan kitchen-diner with island and integrated appliances
Three reception rooms plus utility, pantry and study
Master bedroom with en-suite; family bathroom with shower over bath
Large rear garden with open countryside views and patio/pergola
Off-street parking for about four vehicles behind vehicular gates
Oil-fired heating and assumed uninsulated stone walls — potential upgrade needs
A spacious late-Victorian detached home that blends original character with modern renovation. The house offers three bedrooms, an en-suite to the master, three reception rooms and a large 22ft kitchen-diner — ideal for family life and entertaining. The rear garden opens onto wide countryside views and there’s off-street parking for several vehicles on a large gravel drive.
Recent restoration has retained exposed beams, stone features and bay windows while introducing contemporary fittings throughout: an island kitchen with integrated appliances, ceramic floors, and modern bathrooms. The property is generous in scale (about 1,787 sq ft) with versatile reception rooms and a large utility/pantry layout that supports family living.
Practical points to note: heating is oil-fired via a boiler and radiators (private supply), the external stone walls are assumed uninsulated, and the double glazing install dates are not recorded. These factors could affect long-term running costs and future insulation upgrades. Overall, the house is a well-presented period family home in a quiet village setting with excellent broadband and mobile signal.
3 bedroom detached house for sale in Fen Road, Dowsby, Bourne, Lincolnshire, PE10 — £475,000 • 3 bed • 2 bath • 2138 ft²
4 bedroom detached house for sale in Siltside (house), Spalding, PE11 — £349,995 • 4 bed • 2 bath • 2186 ft²
4 bedroom detached house for sale in Millers Close, Rippingale, Bourne, PE10 — £400,000 • 4 bed • 3 bath • 2144 ft²
4 bedroom link detached house for sale in Victoria Street, Billingborough, Sleaford, Lincolnshire, NG34 — £475,000 • 4 bed • 3 bath • 2086 ft²
7 bedroom detached house for sale in Station Road, Surfleet, Spalding, Lincolnshire, PE11 — £600,000 • 7 bed • 3 bath • 5246 ft²
4 bedroom detached house for sale in Greatford Road, BASTON, Peterborough, PE6 — £490,000 • 4 bed • 2 bath • 1572 ft²


















































































