**Standout Features:**
- Spacious three/four-bedroom detached bungalow located on over 1/3 acre.
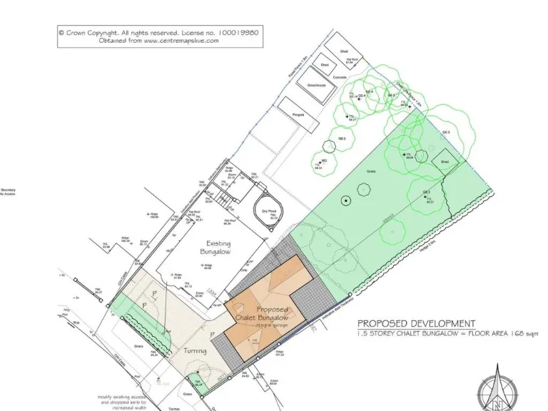
- Approved planning consent for two-storey extensions and an additional dwelling.
- Stunning countryside views from an elevated position.
- Attractive garden with potential for further personalized enhancements.
- Good condition overall, though some modernization may be necessary.
- Ideal for property developers or families seeking a self-build opportunity.
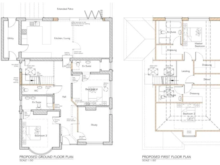
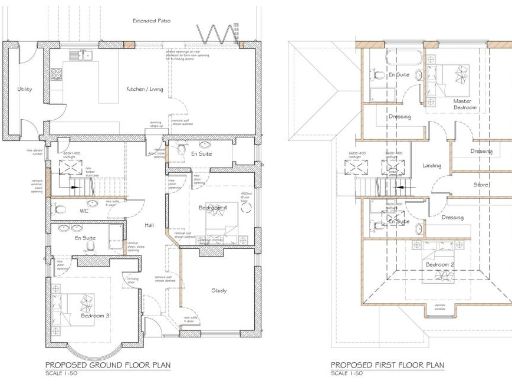
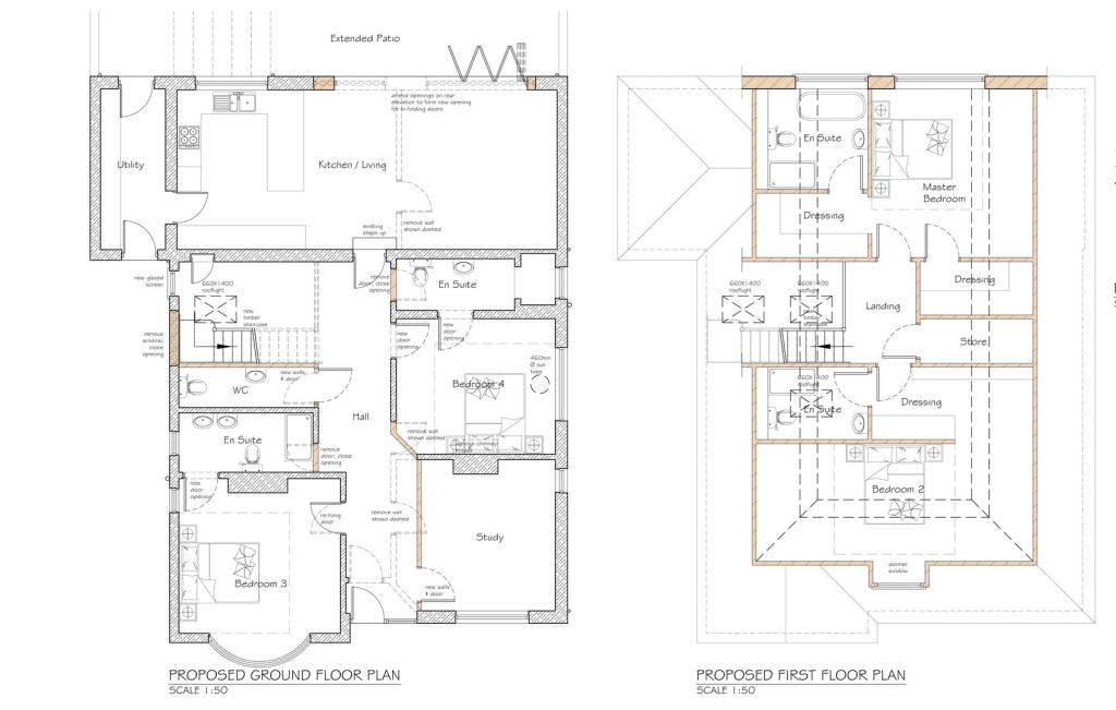
Nestled in the sought-after village of Shipley, this substantial detached bungalow offers endless possibilities for its new owner. With three spacious bedrooms and the potential for a fourth, the property features a welcoming entrance porch, a generous central hallway, and large living spaces adorned with ample natural light. The delightful family dining kitchen is designed for gatherings, while the well-maintained rear garden provides serene outdoor space with tiered levels and far-reaching rural views.
What's more, this bungalow presents a remarkable opportunity for property developers or self-build enthusiasts, with approved planning for extensions into a contemporary two-storey residence, as well as provisions for an additional dwelling on the grounds. Although it is livable in its current state, some modernizing would transform this charming home into your dream haven.
Set back from the road with ample parking and a detached garage, this home balances tranquility and convenience, close to local amenities and renowned schools. Don’t miss out on this rare opportunity—properties with such potential in this desirable area are not available for long. Whether you wish to renovate and extend, or design your own masterpiece, this bungalow awaits the perfect vision to come to life!
Land for sale in Hassock Lane North, Shipley, Heanor, DE75 — £495,000 • 3 bed • 2 bath • 14375 ft²
3 bedroom detached bungalow for sale in Beech Croft, Breadsall Village, Derby, DE21 — £345,000 • 3 bed • 1 bath • 870 ft²
4 bedroom detached bungalow for sale in Woodland Avenue, Breaston, Derbyshire, DE72 3AN, DE72 — £475,000 • 4 bed • 2 bath • 1441 ft²
3 bedroom detached bungalow for sale in Heath Gardens, Breaston, DE72 — £475,000 • 3 bed • 1 bath • 538 ft²
3 bedroom detached bungalow for sale in Quarry Hill Road, Little Hallam, DE7 — £475,000 • 3 bed • 2 bath • 1582 ft²
3 bedroom detached bungalow for sale in Ashover Road, Kelstedge, Ashover, S45 — £750,000 • 3 bed • 2 bath • 1869 ft²






















































































































