Light-filled Abbeyhill flat with park views, low upkeep, and strong commuter links.
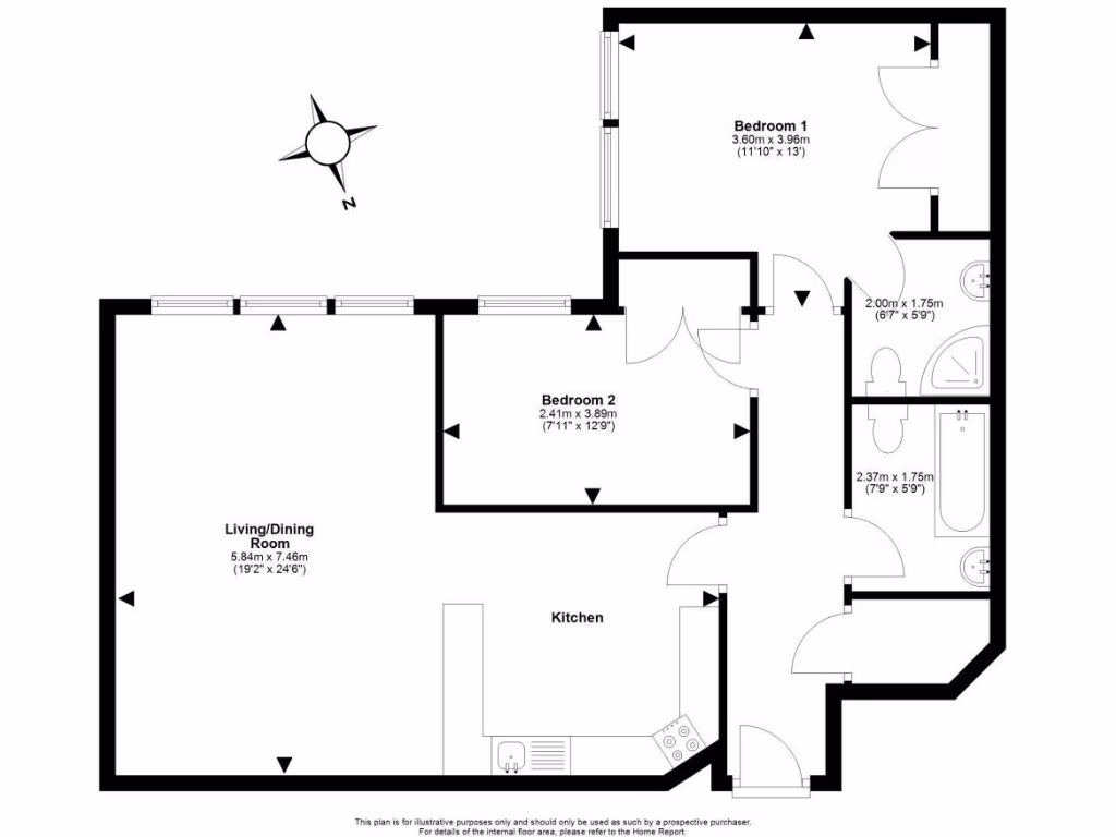
Bright open-plan living with large picture window and park views
Two double bedrooms; master bedroom with en-suite shower
Gas central heating, double glazing and fast broadband
Lift access and off-street parking by permit only
Limited private outdoor space; no private garden
Service charge approx. £1,120 per year; factor fee ~£280/quarter
Council tax level is above average for the area
Area classification: very deprived — local socioeconomic factors apply
Set on a corner of a modern Abbeyhill development, this bright two-bedroom flat offers a compact, low-maintenance city base with excellent transport links to Edinburgh centre. The open-plan living room has a large picture window framing views towards Holyrood Park and Arthur’s Seat, filling the space with natural light and creating an inviting social hub.
Both bedrooms are doubles with built-in wardrobes; the master includes a contemporary en-suite shower. The property also benefits from gas central heating, double glazing, lift access and fast broadband — practical features for first-time buyers, commuters or buy-to-let investors seeking a turnkey city apartment.
Practical considerations are stated openly: there is limited private outdoor space and on-street parking is constrained, with residents relying on a parking permit. The property sits in an area classed as very deprived, and communal maintenance is supported by an average service charge of £1,120 (factor fee approx. £280 per quarter plus a £300 float). Council tax is above average.
Overall this freehold flat (c. 805 sq ft) represents a well-located, modern apartment with strong light and good views — ideal for buyers who prioritise central location, low upkeep and rental potential, but who can accept limited private outdoor amenity and parking constraints.
2 bedroom flat for sale in 1/12 Ann Terrace, Edinburgh, EH8 — £245,000 • 2 bed • 2 bath • 842 ft²
2 bedroom flat for sale in 1/5 Tytler Court, Edinburgh, EH8 — £280,000 • 2 bed • 2 bath • 797 ft²
2 bedroom flat for sale in 10 (flat 15), Tinto Place, Bonnington, Edinburgh, EH6 5FL, EH6 — £260,000 • 2 bed • 2 bath • 723 ft²
2 bedroom flat for sale in 8/7 Salamander Court, Leith, Edinburgh, EH6 7JN, EH6 — £220,000 • 2 bed • 2 bath • 652 ft²
2 bedroom flat for sale in 6/24 Portland Gardens, Leith, City of Edinburgh, EH6 6NJ, EH6 — £290,000 • 2 bed • 2 bath • 940 ft²
2 bedroom flat for sale in 102/4 Crewe Road North, Edinburgh, EH5 2NE, EH5 — £200,000 • 2 bed • 1 bath • 731 ft²






























































