**Standout Features:**
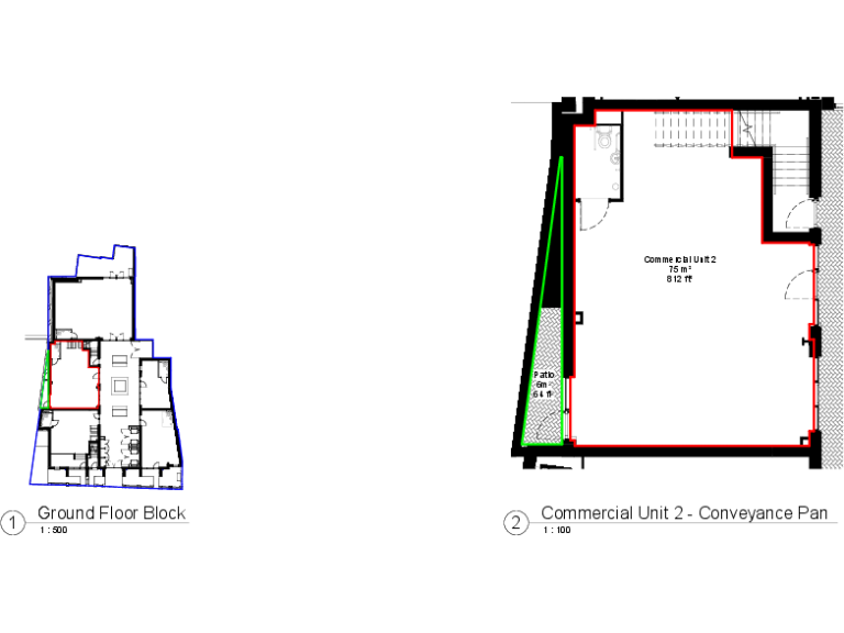
- Newly constructed, ground floor Class E office space (1,292 sq ft)
- Modern design with open plan layout and high-quality finishes
- Energy-efficient with a BREEAM rating of 'Very Good' and air source heat pump
- Access to a private terrace and secure bike storage
- Located in vibrant Seven Dials, within easy walking distance to Brighton Station
- No service charge payable and chain-free
- Offers potential for various uses within Use Class E (subject to local planning regulations)
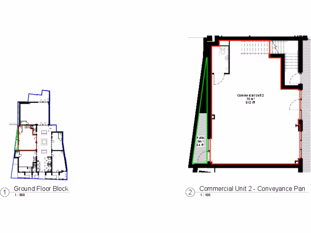
This impressive newly built office space is strategically nestled in the sought-after Seven Dials area of Brighton, presenting a perfect blend of modern functionality and urban charm. Spanning 1,292 square feet, this ground floor unit features high-quality finishes, including LED lighting and a suspended ceiling, creating a versatile environment for a range of commercial uses. The property boasts energy-efficient credentials with an air source heat pump and a BREEAM target rating of 'Very Good', promising low running costs for future occupants.
Enjoy the added bonus of a private terrace, perfect for breaks or informal meetings, alongside secure bike storage for eco-conscious commuters. With no service charge and being chain-free, this opportunity is ideal for investors or businesses seeking a sustainable workspace in an affluent area surrounded by local amenities, cafés, and shops. Given its prime location just a short stroll from Brighton Station and its flexibility for various uses, this offering won't last long—secure your future here today!
Office for sale in 25A York Villas, Brighton, East Sussex, BN1 3TS, BN1 — £325 • 1 bed • 1 bath • 1292 ft²
Office for sale in 5 Marlborough Place, Brighton, BN1 1UB, BN1 — £795,000 • 1 bed • 1 bath • 4059 ft²
3 bedroom terraced house for sale in Gloucester Yard, Gloucester Road, Brighton, BN1 — £725,000 • 3 bed • 2 bath • 1399 ft²
Office for sale in 50A Livingstone Road, Hove BN3 3WL, BN3 — £425,000 • 1 bed • 1 bath • 1430 ft²
3 bedroom semi-detached house for sale in Howard Terrace, Brighton, BN1 — £700,000 • 3 bed • 1 bath • 878 ft²
3 bedroom terraced house for sale in Howard Terrace, Brighton, BN1 — £800,000 • 3 bed • 2 bath • 1248 ft²






























































