Prominent freehold investment close to Leamington Spa station with flexible floorplates.
Grade II listed pair of period mid-terrace commercial buildings
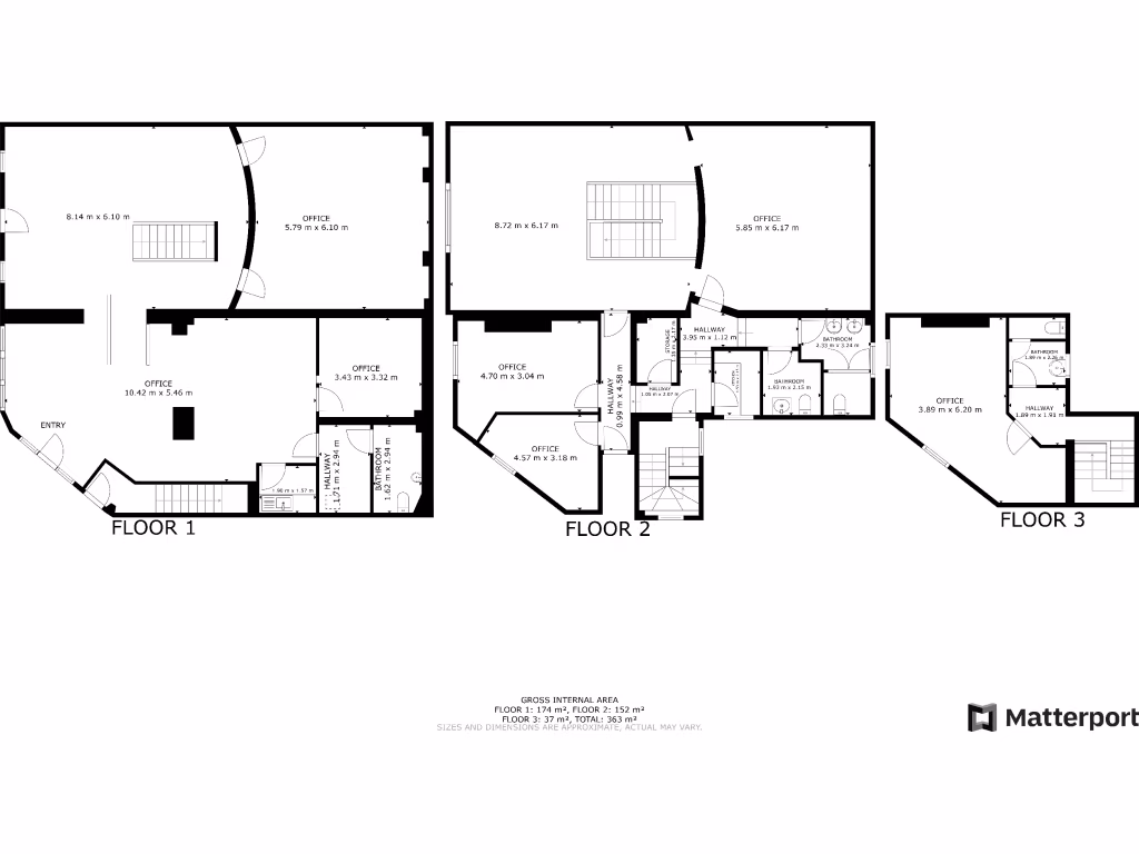
Two Grade II listed mid-terrace buildings in Royal Leamington Spa’s Old Town, offered freehold. The pair provide a substantial combined footprint across three storeys (circa 3,907 sq ft) with prominent shop/office frontage to Clemens Street and an urban outlook adjacent to the railway viaduct. High ceilings, large open-plan rooms and cellular offices give flexible commercial floorplates suitable for continued office or retail use.
The properties have planning potential for alternative uses subject to planning permission (STPP), and historically have been used for charitable administration and community functions. They were refurbished some years ago with Lottery funding but retain period features such as timber-framed sash windows and rendered elevations—appealing for buyers seeking character and re-use opportunities.
Important constraints: the buildings are Grade II listed (List entry 1381259), which will limit alterations and likely add consent costs and timescales. There is no private outdoor amenity; parking is time‑limited on-street only. The location is central and well-served by public transport, but local crime levels are above average, and the plot is small compared with the total internal area.
For an investor or developer experienced with listed assets, this is a rare freehold block in a desirable spa town centre offering rental or conversion potential, subject to listed‑building consent and planning. Budget for specialist conservation advice and possible further works before implementation of change of use or major alterations.
High street retail property for sale in 67 Regent Street, Leamington Spa, Warwickshire, CV32 5DX, CV32 — £325,000 • 1 bed • 1 bath • 956 ft²
High street retail property for sale in 21B George Street, Leamington Spa, CV31 1HA, CV31 — £75,000 • 1 bed • 1 bath
7 bedroom terraced house for sale in Church Street, Leamington Spa, CV31 — £925,000 • 7 bed • 3 bath • 2738 ft²
Commercial development for sale in 1 Warwick Street, Leamington Spa, CV32 5LW, CV32 — POA • 1 bed • 1 bath • 14485 ft²
4 bedroom semi-detached house for sale in Grove Street, Leamington Spa, Warwickshire, CV32 — £750,000 • 4 bed • 2 bath • 1974 ft²
Commercial property for sale in Swan Street, Warwick, CV34 — £750,000 • 1 bed • 1 bath • 4038 ft²






















































