Spacious single-storey bungalow with large garage and private garden — ideal for downsizers..
Chain free with single-storey layout ideal for retirement living|Large detached garage plus wide driveway parking for several cars|Conservatory off the lounge provides bright garden outlook|Refitted wet room with both bath and shower (single bathroom)|Private rear garden with mature hedge backdrop for privacy|EPC rating C; affordable council tax, freehold tenure|Tucked-away position near town edge and local amenities|Local crime reported above average — consider safety measures
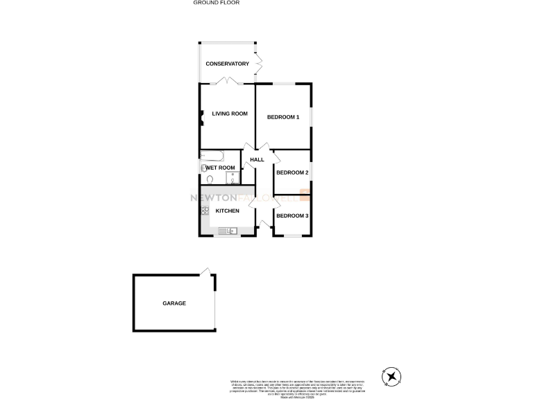
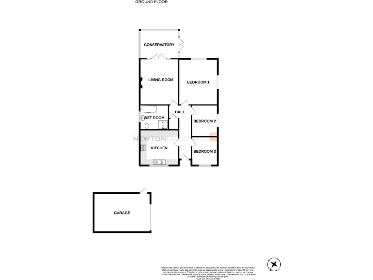
Discover a spacious, single-storey home arranged for comfortable retirement living. This modern, detached bungalow sits in a quiet tucked-away spot on Gorse Road, offering easy single-floor access, a central hall and a large main bedroom. A bright conservatory extends the living room and provides a pleasant outlook over a private garden backed by mature hedging.
Practical features include a re-fitted wet room (with bath and shower), a well-equipped kitchen, gas central heating and uPVC double glazing. The plot includes a large detached garage and a broad driveway providing ample parking for multiple vehicles — a real asset for owners who value storage and accessibility.
The property is offered freehold and chain free, with an EPC rating of C and affordable council tax — factors that will appeal to downsizers seeking a low-maintenance, cost-conscious home close to town edges and local amenities. Nearby schools and services are within easy reach, while the setting gives quick access to surrounding hills and open spaces.
A few practical points to note: there is a single bathroom (wet room) rather than an en-suite arrangement, and local crime levels are reported as above average. These are balanced by the bungalow’s tucked-away position, generous plot and parking, making this a sensible choice for a retirement move or buyers wanting one-level living.
3 bedroom detached bungalow for sale in Wardour Drive, Grantham, NG31 — £230,000 • 3 bed • 1 bath • 1023 ft²
3 bedroom bungalow for sale in Croft Drive, Grantham, NG31 — £375,000 • 3 bed • 2 bath
3 bedroom detached bungalow for sale in Stephenson Avenue, Gonerby Hill Foot, Grantham, NG31 — £340,000 • 3 bed • 1 bath • 1273 ft²
2 bedroom detached bungalow for sale in Stephenson Avenue, Gonerby Hill Foot, Grantham, NG31 — £250,000 • 2 bed • 1 bath • 668 ft²
3 bedroom detached bungalow for sale in Northcliffe Road, Grantham, NG31 — £250,000 • 3 bed • 1 bath • 763 ft²
2 bedroom bungalow for sale in Wroxall Drive, Grantham, NG31 — £169,995 • 2 bed • 1 bath






































































































































