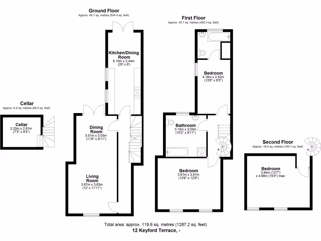
**Standout Features:**
- Elegant Grade II Listed Georgian terraced house built in 1816
- Unique planning permission granted to reconfigure first floor
- Spacious three stories with attic bedroom featuring vaulted ceiling
- Dual aspect sitting and dining rooms, plus a kitchen/breakfast room with south-facing garden access
- Off-road parking in a no-through road setting
- Enclosed private courtyard garden for relaxation and outdoor activities
**Concerns:**
- Listed status may complicate renovations
- Potential for damp and some maintenance required
- Limited garden size
Discover the charm and potential of this stunning Georgian terraced house, unexpectedly back on the market. Boasting three spacious bedrooms, an inviting kitchen/breakfast room, and an attic bedroom with a striking vaulted ceiling, this family home offers both elegance and comfort. Enjoy the benefit of granted planning permission to expand the first floor into a four-bedroom layout, significantly enhancing rental or family accommodation options.
Set in a desirable no-through road close to the town center and excellent local schools, this property is perfect for families and first-time buyers alike. The south-facing courtyard garden promises a private outdoor oasis, while the off-road parking adds convenience. Although minor maintenance and some damp issues may require attention, the home's period charm and prime location make it a rare find.
Seize this opportunity to own a piece of history with modern flexibility—homes like this don’t stay on the market for long!
3 bedroom end of terrace house for sale in Christchurch Street West, Frome, BA11 1EG, BA11 — £395,000 • 3 bed • 1 bath • 1107 ft²
3 bedroom town house for sale in Catherine Street, Frome, Frome, BA11 — £465,000 • 3 bed • 1 bath • 1203 ft²
2 bedroom semi-detached house for sale in Willow Vale, Frome, BA11 1BG, BA11 — £450,000 • 2 bed • 2 bath • 1098 ft²
3 bedroom terraced house for sale in St. Anns Place, Bath, BA1 — £850,000 • 3 bed • 1 bath • 1459 ft²
3 bedroom terraced house for sale in Keyford, Frome, BA11 — £700,000 • 3 bed • 2 bath • 2101 ft²
4 bedroom town house for sale in Macaulay Buildings, Widcombe, Bath, BA2 — £1,695,000 • 4 bed • 2 bath • 3212 ft²






























































































