Chain-free three-bedroom family home with garage, gardens and scope for modernisation..
- Chain-free three-bedroom semi-detached house
- Driveway plus single attached garage
- Front, side and rear gardens with patio
- Dual-aspect lounge/diner and dual-aspect kitchen
- Built-in bedroom storage and loft with ladder
- Distant views towards Dartmoor from first floor
- Dated decor and bathroom; requires modernisation
- Single family bathroom plus separate WC only
A practical three-bedroom semi-detached home in popular Elburton, offered chain-free and ready for immediate occupation. The house sits on a decent plot with front, side and rear gardens, driveway parking and an attached single garage — useful for families or those needing storage and off-street parking. Dual-aspect living spaces and kitchen bring good natural light, and first-floor windows offer distant views towards Dartmoor.
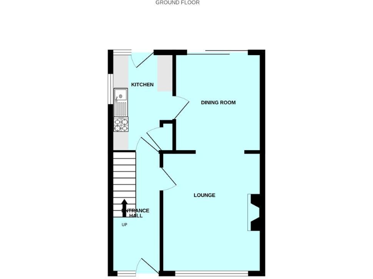
Internally the layout is straightforward: entrance hall with understairs storage, open-plan lounge/diner, dual-aspect kitchen, three bedrooms, bathroom and separate WC. The property has uPVC double glazing, mains gas central heating, loft access with a pull-down ladder, and built-in bedroom storage — practical features for everyday family life. Local conveniences, good primary and secondary schools, low crime and fast broadband add to its appeal.
The house does show dated finishes and will suit buyers prepared to modernise rather than those seeking a turnkey, contemporary fit-out. The bathroom and some living areas would benefit from updating; purchasers should expect cosmetic refurbishment and possible modernisation of fixtures. The plot and internal space are modest for larger families but well suited to buyers seeking a solid, affordable home in a quiet suburban location with no onward chain.
3 bedroom semi-detached house for sale in Netton Close, Plymouth, PL9 — £325,000 • 3 bed • 1 bath • 681 ft²
3 bedroom semi-detached house for sale in Elburton, Plymouth, PL9 — £325,000 • 3 bed • 1 bath • 1077 ft²
3 bedroom semi-detached house for sale in Haye Road, Plymouth, PL9 — £315,000 • 3 bed • 1 bath • 910 ft²
3 bedroom semi-detached house for sale in Elburton, Plymouth, PL9 — £330,000 • 3 bed • 2 bath • 786 ft²
3 bedroom semi-detached house for sale in Wembury Road, Elburton, Plymouth., PL9 — £280,000 • 3 bed • 1 bath • 924 ft²
4 bedroom semi-detached house for sale in Elburton, Plymouth, PL9 — £365,000 • 4 bed • 1 bath • 1599 ft²










































































