Five-bedroom barn with large garden, gated estate access and fast links to London..
- Five bedrooms, principal with dressing area and en-suite
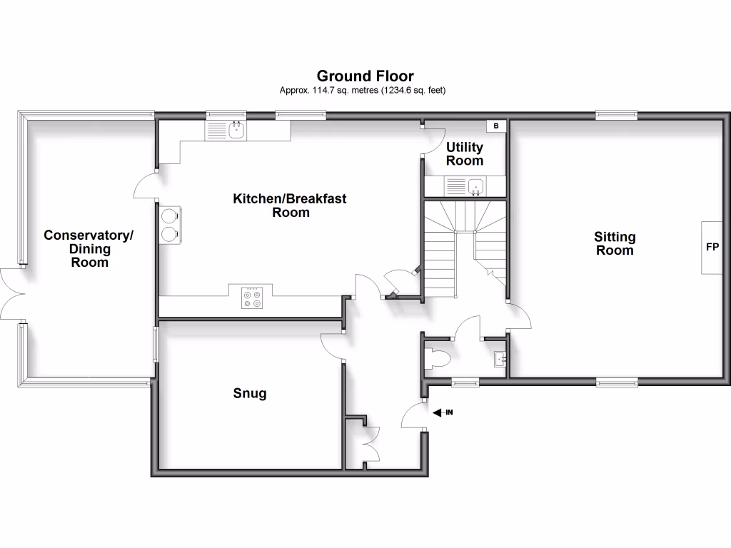
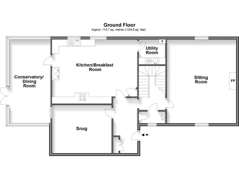
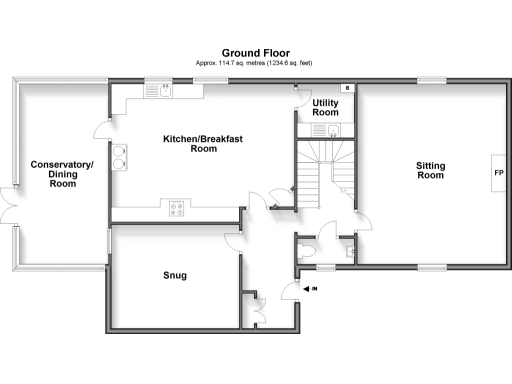
- Large conservatory/dining room opening to terrace and garden
- Garage plus additional communal parking in gated courtyard
- Direct access to Copped Hall communal grounds and Epping Forest
- Oil-fired boiler heating (oil tank separate; not a communal system)
- Double glazing installed before 2002; property converted in 1990s
- Council tax described as quite expensive; verify exact banding
- Above-average local crime reported; estate has CCTV and resident group
Set within the gated Copped Hall Estate, this five-bedroom barn conversion blends authentic character with generous family living space. Converted in the 1990s, the home retains exposed beams, brick chimney features and a large conservatory opening onto a terrace and expansive, walled garden — ideal for outdoor dining and safe play. The kitchen/breakfast room with an Aga and space for a large farmhouse table sits at the heart of the house, while a cosy sitting room with open fire provides a welcoming winter focal point.
Practical benefits include a garage, additional communal parking, secure electric gates with CCTV and direct access to the estate’s communal grounds and nearby Epping Forest. Bedrooms are well proportioned; the principal suite includes a dressing area and en-suite. The property’s village-hamlet location offers a peaceful countryside feel yet remains only a short drive to Epping town centre and Central Line station for fast City connections.
Buyers should note some material facts: heating is oil-fired with a boiler and radiators (not a communal system), double glazing dates from before 2002 and the building was converted in the 1990s. Council tax is described as quite expensive. The property forms one of three barn conversions around a shared courtyard (mid-terrace style) and benefits from communal management arrangements — these communal arrangements and any past conversion consents should be checked.
This home will appeal to families or downsizers seeking characterful, spacious accommodation with large private garden and easy access to green space. It suits buyers who value original features and outside space and who are comfortable managing an older heating system and shared courtyard living.
5 bedroom barn conversion for sale in Copped Hall, Epping, CM16 — £1,200,000 • 5 bed • 2 bath • 2490 ft²
4 bedroom barn conversion for sale in Copped Hall, Epping, CM16 — £1,500,000 • 4 bed • 3 bath • 2274 ft²
4 bedroom barn conversion for sale in Tawney Common, Theydon Mount, CM16 — £1,250,000 • 4 bed • 2 bath • 2177 ft²
8 bedroom barn conversion for sale in Copped Hall, Epping, CM16 — £3,000,000 • 8 bed • 5 bath • 4757 ft²
3 bedroom barn conversion for sale in The Barn, Stanford Rivers, CM5 — £750,000 • 3 bed • 3 bath • 2256 ft²
5 bedroom barn conversion for sale in Abbess Road, Abbess Roding, CM5 — £1,395,000 • 5 bed • 4 bath • 3418 ft²


















































































