**Standout Features:**
- Extended semi-detached dormer bungalow in a sought-after Cleethorpes location
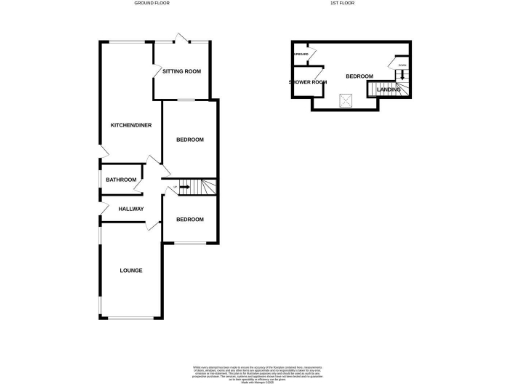
- Spacious and versatile accommodation with three double bedrooms
- Master bedroom includes an en-suite shower room
- Modern kitchen diner and two reception rooms
- Driveway parking and detached garage
- Well-kept gardens with additional garden room
- Chain free, allowing for immediate occupancy
Nestled in the desirable Chichester Road area of Cleethorpes, this extended semi-detached dormer bungalow offers a blend of comfort and convenience just moments from the seafront and town center. With three generously sized double bedrooms, including a master suite with its own en-suite bathroom, this property provides versatile living space for families or those seeking a guest room option on the first floor.
The heart of the home features a spacious kitchen diner fitted with modern amenities, alongside two inviting living spaces that flow seamlessly into the well-maintained gardens. Outside, you'll find ample parking and a detached garage, perfect for storage or hobbies. The property is chain-free, making it an attractive prospect for anyone looking to move quickly. Enjoy a peaceful suburban lifestyle while remaining close to local amenities and schools with excellent ratings. Don't miss out on this fantastic opportunity—viewing is highly recommended!
3 bedroom semi-detached bungalow for sale in Warwick Road, Cleethorpes, DN35 — £165,000 • 3 bed • 1 bath • 610 ft²
3 bedroom detached bungalow for sale in Gayton Road, Cleethorpes, DN35 — £225,000 • 3 bed • 1 bath • 872 ft²
3 bedroom detached bungalow for sale in Seaford Road, Cleethorpes, DN35 — £249,000 • 3 bed • 1 bath • 800 ft²
3 bedroom bungalow for sale in Seaford Road, Cleethorpes, Lincolnshire, DN35 — £200,000 • 3 bed • 1 bath • 797 ft²
4 bedroom semi-detached bungalow for sale in Swaby Drive, Cleethorpes, DN35 — £230,000 • 4 bed • 2 bath • 1045 ft²
3 bedroom detached bungalow for sale in Aldrich Road, Cleethorpes, DN35 — £360,000 • 3 bed • 1 bath • 1335 ft²


















































































































