**Standout Features:**
- Expansive 4-bedroom duplex in a Grade II listed Georgian villa
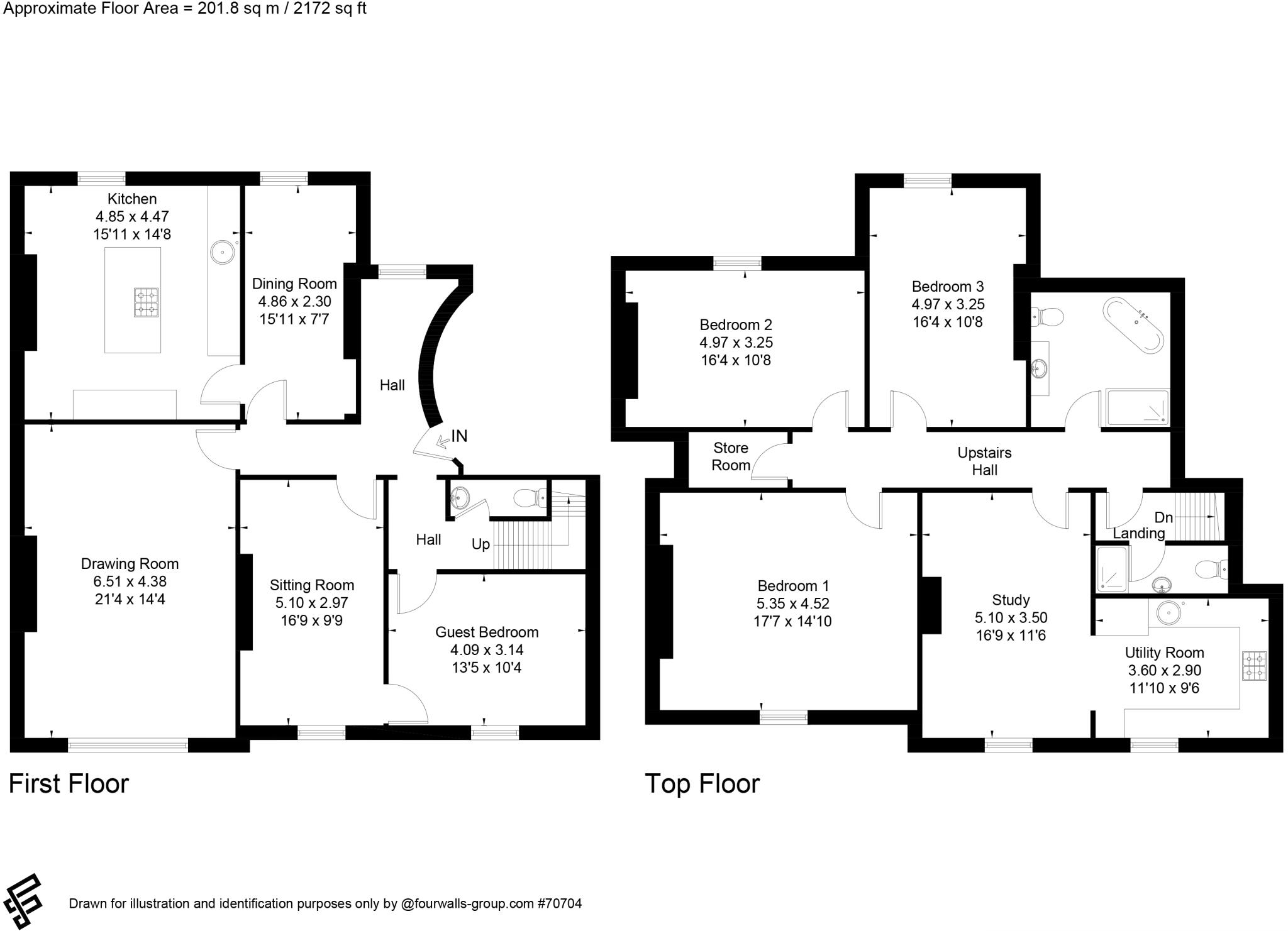
- Exceptional living space (2,172 sq ft) with elegant Victorian details
- High ceilings and large windows throughout, ensuring bright interiors
- Modern kitchen with Miele appliances and stylish breakfast area
- Two dedicated off-road parking spaces with EV charger
- Located in a prestigious area of Cheltenham, near excellent schools
**Summary:**
Discover this stunning four-bedroom duplex apartment on Douro Road, a highly sought-after address in Cheltenham. Spanning the top two floors of a grand Grade II listed Georgian villa, this home boasts an impressive 2,172 sq ft of beautifully designed living space. Features include high ceilings, large bay windows, and period charm throughout, providing both elegance and comfort. The modern kitchen is complemented by a relaxed breakfast nook, while generous reception rooms ensure ample space for gatherings or family activities.
An ideal residence for families, students, or professionals alike, this apartment offers flexibility with its versatile living arrangements, including a potential workspace. You’ll enjoy exclusivity with two off-street parking spaces and the convenience of an EV charger. Step outside to access communal gardens or stroll to nearby parks and Cheltenham’s vibrant café culture. While the property requires attention to maintenance due to its listed status, its unparalleled location near esteemed schools like Cheltenham Ladies' College and Dean Close only adds to its rare appeal. Don’t miss this unique opportunity—schedule a viewing today to envision your next chapter in this exceptional home!
2 bedroom apartment for sale in Douro Road, Cheltenham, Gloucestershire, GL50 — £325,000 • 2 bed • 1 bath • 806 ft²
4 bedroom apartment for sale in Malvern Road, Cheltenham, Gloucestershire, GL50 — £550,000 • 4 bed • 2 bath • 978 ft²
3 bedroom apartment for sale in Malvern Place, The Malverns Malvern Place, GL50 — £600,000 • 3 bed • 2 bath • 1642 ft²
2 bedroom apartment for sale in Montpellier Drive, Cheltenham, GL50 — £495,000 • 2 bed • 2 bath • 953 ft²
3 bedroom apartment for sale in Stanhope House, 15 Queens Road, Cheltenham, GL50 — £325,000 • 3 bed • 2 bath • 1100 ft²
2 bedroom penthouse for sale in Parabola Road, Cheltenham, Gloucestershire, GL50 — £285,000 • 2 bed • 2 bath • 700 ft²






























































