Comfortable, commuter-friendly flat with garage and communal gardens close to local amenities.
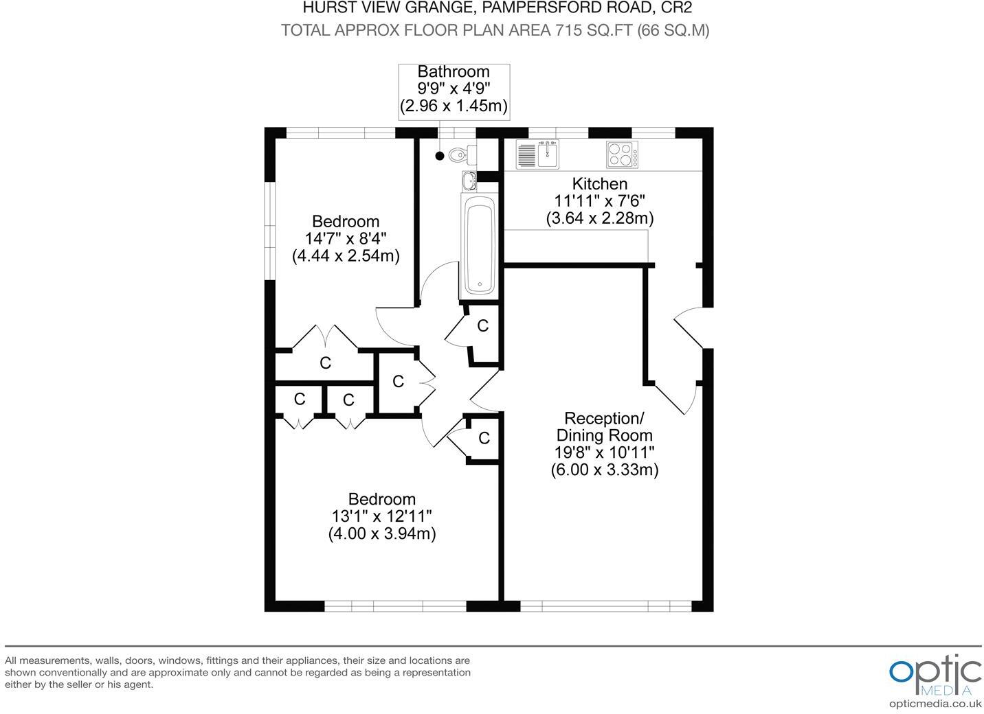
- Ground-floor two double bedrooms with fitted wardrobes
- Spacious lounge/diner with large front window and natural light
- Communal gardens and resident parking plus ebloc garage
- Long leasehold (years remaining: 961)
- Service charge approx. £2,670 per year
- EPC rating D; energy improvements may be beneficial
- Mains gas boiler and radiators; underfloor heating in bathroom
- Fast broadband; average local crime and council tax band C
A well-presented ground-floor flat on Pampisford Road offering comfortable two-bedroom living close to Purley and South Croydon amenities. Both bedrooms are doubles with fitted wardrobes, and the lounge/diner benefits from large windows and good natural light. The tiled family bathroom includes underfloor heating for added comfort.
Practical ownership features include a long lease, resident parking and an ebloc garage, plus communal gardens that give a pleasant outlook and outdoor space. Broadband speeds are fast and transport links are convenient for commuters, schools and local shops.
Be aware this is a leasehold property with an annual service charge (approx. £2,670) and an EPC rating of D. The property is offered as an average-sized urban flat and may suit first-time buyers or buy-to-let purchasers seeking a ready-to-move-in home in a commuter-friendly location.
2 bedroom flat for sale in Pampisford Road, South Croydon, CR2 — £300,000 • 2 bed • 2 bath • 708 ft²
2 bedroom flat for sale in Violet Lane, Croydon, CR0 4HF, CR0 — £230,000 • 2 bed • 1 bath • 543 ft²
2 bedroom flat for sale in Pampisford Road, South Croydon, CR2 6DL, CR2 — £335,000 • 2 bed • 1 bath • 806 ft²
2 bedroom ground floor flat for sale in 113 Haling Park Road, South Croydon, CR2 — £325,000 • 2 bed • 1 bath • 752 ft²
2 bedroom apartment for sale in Blenheim Crescent, South Croydon, CR2 — £300,000 • 2 bed • 1 bath • 635 ft²
2 bedroom flat for sale in Croham Road, South Croydon, CR2 — £400,000 • 2 bed • 2 bath • 951 ft²


















































