Characterful 3-bed detached home with gardens, garage and driveway parking.
Detached three-bedroom home with period features and high ceilings
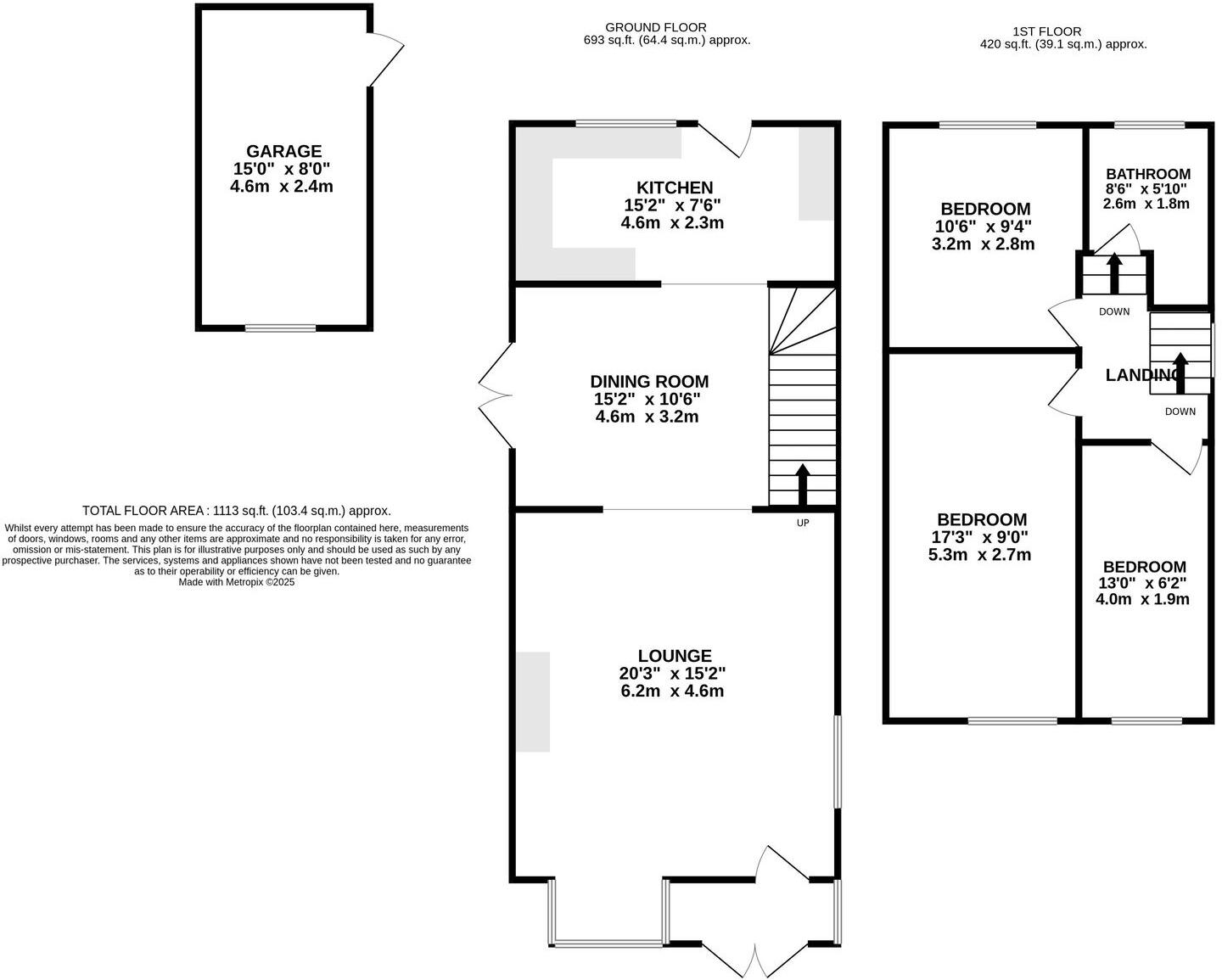
A distinctive three-bedroom detached house that blends period character with comfortable modern living. The property offers large, light rooms, a welcoming lounge with a statement fireplace and a dining room with patio doors opening onto a private south-facing garden — ideal for family life and outdoor entertaining. The kitchen sits well with the living areas and includes a quirky 1960s glass wall that adds character.
Upstairs are three generous bedrooms (two doubles) and a well-appointed family bathroom; the master benefits from fitted furniture. Practical extras include a boarded loft, gas central heating, uPVC double glazing, and a detached garage with power — useful for storage, a workshop or utilities. Driveway parking for two to three cars adds convenience in this central location with good transport links.
Important practical points: the property is leasehold, has a single family bathroom, and sits in an area described as economically deprived despite very low local crime. The house is presented as move-in ready but retains period features and the described 1960s glass wall which may not suit every buyer. Overall this is a roomy, characterful family home in a convenient conurbation setting with scope to personalise.
3 bedroom detached house for sale in Sweet Briar Close, Rochdale, OL12 — £360,000 • 3 bed • 3 bath • 1023 ft²
3 bedroom semi-detached house for sale in Bury Old Road, Heywood, Greater Manchester, OL10 — £265,000 • 3 bed • 1 bath • 829 ft²
3 bedroom semi-detached house for sale in Devonshire Close, Heywood, Greater Manchester, OL10 — £295,000 • 3 bed • 1 bath • 814 ft²
4 bedroom detached house for sale in Yea Fold, Littleborough, Greater Manchester, OL15 — £340,000 • 4 bed • 2 bath • 1500 ft²
3 bedroom detached house for sale in Bickerstaffe Close, Oldham, OL2 — £324,950 • 3 bed • 1 bath • 947 ft²
3 bedroom detached house for sale in Croft Head Drive, Milnrow, OL16 3UE, OL16 — £290,000 • 3 bed • 1 bath • 1094 ft²










































































































