Period character, conservatory and double garage with scope to modernise for a growing family..
- Four bedrooms including top-floor master with en suite
- Open-plan fitted kitchen and separate bay-fronted lounge
- Large conservatory opening onto a decent-sized rear garden
- Double garage with power and lighting and front driveway
- Extended over three floors; flexible family layout
- Overall property size is modest (approx 1,012 sq ft)
- Located in an area with higher deprivation indicators
- Good local schools and low local crime
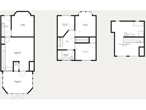
A 1930s mid-terrace arranged over three floors, this four-bedroom home combines period character with practical family space. The property features a bay-fronted lounge, an open-plan fitted kitchen/diner, large conservatory overlooking the rear garden, and a top-floor master with en suite and elevated outlooks.
Outside, a generous rear garden leads to a double garage with power and lighting plus a front driveway for off-street parking. Local amenities include primary and secondary schools rated Good, nearby leisure facilities and regular bus links; Gravesend town centre and major road routes are within easy reach.
Buyers should note the agent description refers to spacious rooms, but the overall property size is modest at about 1,012 sq ft. The house sits in an area with higher deprivation indicators, which may affect future resale; however crime levels are reported as low and mobile/broadband connectivity is strong.
This home will suit a family seeking period features, extra storage/workspace in the double garage, and scope to modernise or reconfigure living space. It is freehold and extended across three floors, offering immediate occupation but potential for updating to increase value.
4 bedroom semi-detached house for sale in Medbury Road, Gravesend, DA12 2NT, DA12 — £425,000 • 4 bed • 2 bath • 1070 ft²
4 bedroom semi-detached house for sale in Rochester Road, Gravesend, Kent, DA12 — £475,000 • 4 bed • 2 bath • 1271 ft²
4 bedroom terraced house for sale in Wellington Street, Gravesend, DA12 — £350,000 • 4 bed • 2 bath • 1195 ft²
4 bedroom house for sale in Park Avenue, Northfleet, Gravesend, DA11 — £380,000 • 4 bed • 1 bath • 844 ft²
4 bedroom detached house for sale in Essex Road, Gravesend, Kent, DA11 — £500,000 • 4 bed • 1 bath • 1888 ft²
3 bedroom terraced house for sale in Sun Lane, GRAVESEND, Kent, DA12 — £375,000 • 3 bed • 1 bath • 1274 ft²






























































































