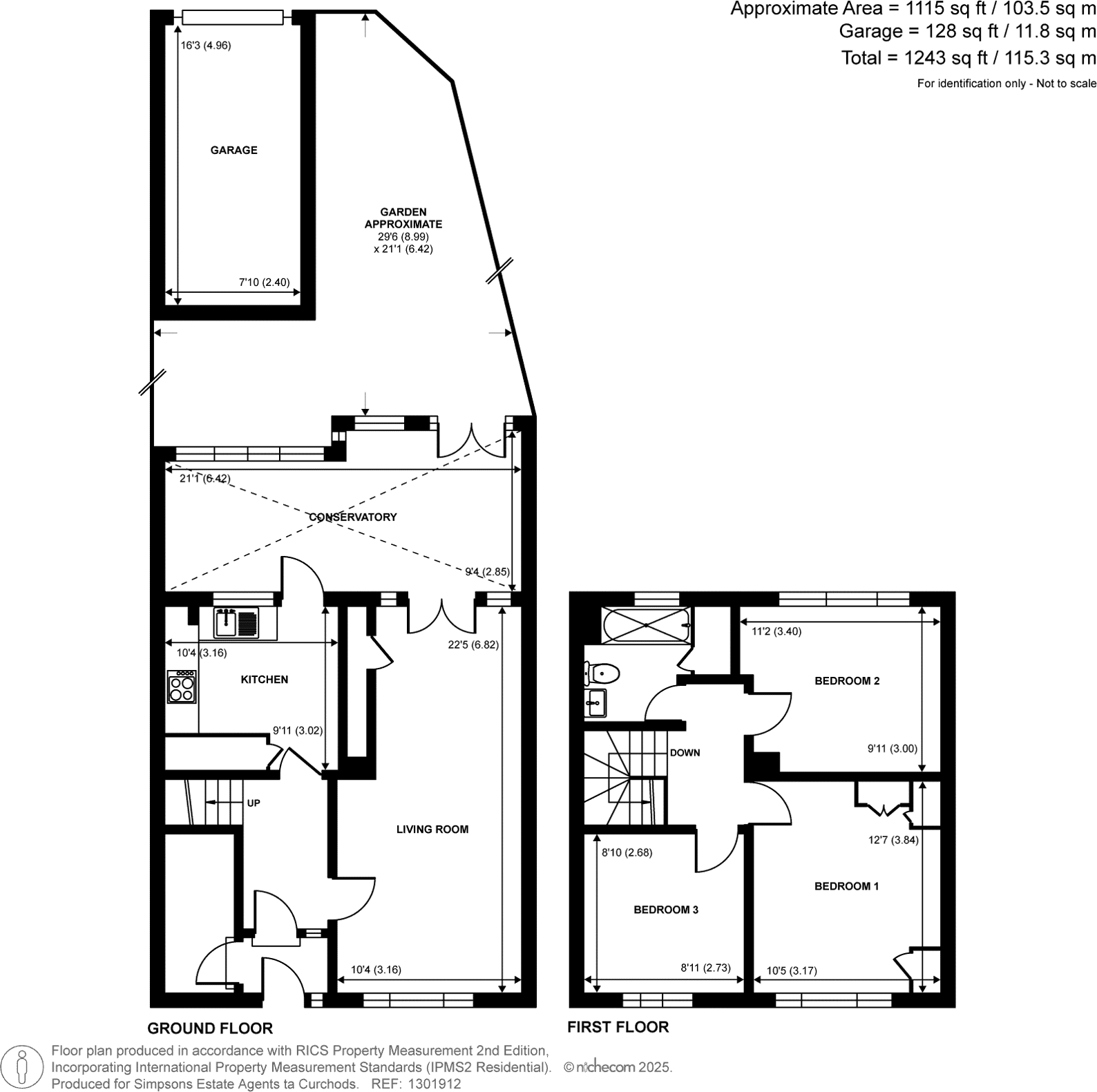
Three-bedroom terraced home with garage and conservatory, ripe for renovation in sought-after Shepperton cul-de-sac..
Three bedrooms and two reception rooms, flexible family layout
Garage with gated rear access; off-street storage
Conservatory overlooking garden — potential to create open-plan space
Needs renovation throughout; scope for remodelling and modernisation
Small rear garden; limited outdoor space for extensions
Single family bathroom only; may need an additional shower room
Double glazing and mains gas heating present
Council tax band above average — budget for higher running costs
A well-located three-bedroom terraced home on a quiet cul-de-sac in Shepperton, ideal for families who want space and local convenience. The house is freehold and offers practical features including a garage, conservatory and gated rear access, with easy walking distance to the High Street, station and several good schools.
The property is presented as a renovation project with clear scope to improve and remodel internally — the conservatory could be knocked through to create a larger open-plan ground floor. Internally there are two reception rooms and a layout that will respond well to contemporary reconfiguration for modern family living.
The garden is private but small, so any extension or landscaping should factor limited outdoor space. Practical positives include double glazing, mains gas central heating and a low flood risk. Note that the house requires updating throughout and council tax is above average, which are important costs to budget for.
For buyers seeking a well-situated family home with upside, this property offers an opportunity to add value through refurbishment while benefiting from a peaceful cul-de-sac location, good transport links and nearby schools.
3 bedroom house for sale in Gordon Road, Shepperton, TW17 — £475,000 • 3 bed • 1 bath • 1084 ft²
3 bedroom terraced house for sale in Cassocks Square, Shepperton, TW17 — £495,000 • 3 bed • 2 bath • 873 ft²
3 bedroom end of terrace house for sale in Charlton Road, Shepperton, TW17 — £450,000 • 3 bed • 3 bath • 1087 ft²
3 bedroom end of terrace house for sale in Upper Halliford Road, Shepperton, Surrey, TW17 — £435,000 • 3 bed • 1 bath • 1042 ft²
3 bedroom end of terrace house for sale in Sherbourne Gardens, Shepperton, TW17 — £525,000 • 3 bed • 2 bath • 960 ft²
3 bedroom house for sale in Hetherington Road, Shepperton, TW17 — £485,000 • 3 bed • 1 bath • 1053 ft²






























































