Rare freehold plot with planning for a contemporary family home in a sought-after location.
Full planning permission granted (Ref: 25/00394/FUL, Harborough Council)
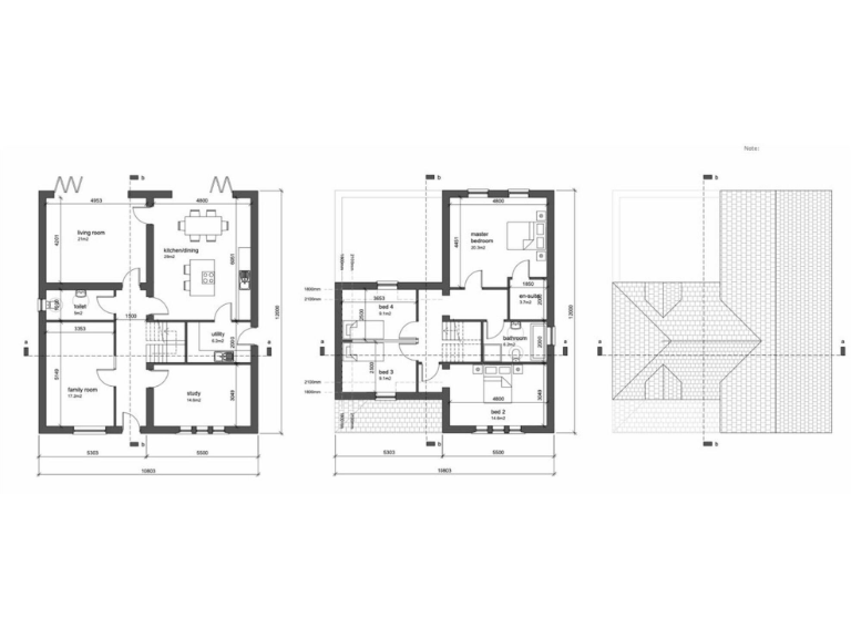
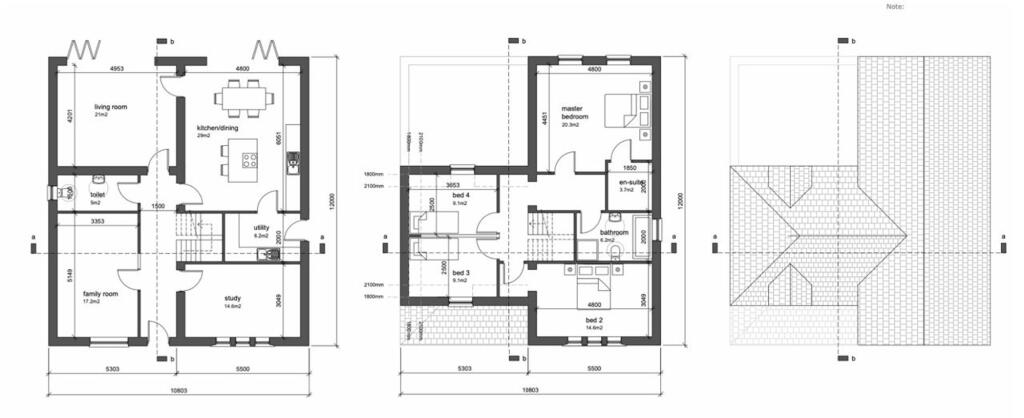
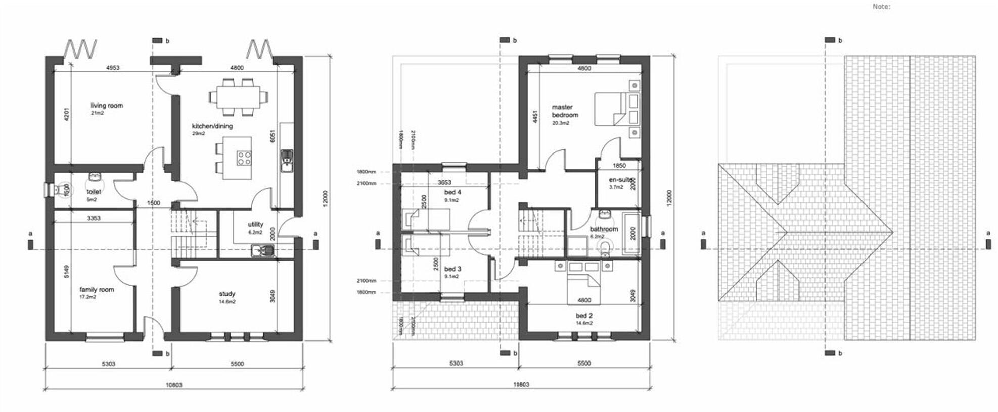
Proposed four-bedroom detached house circa 2,200 sq ft
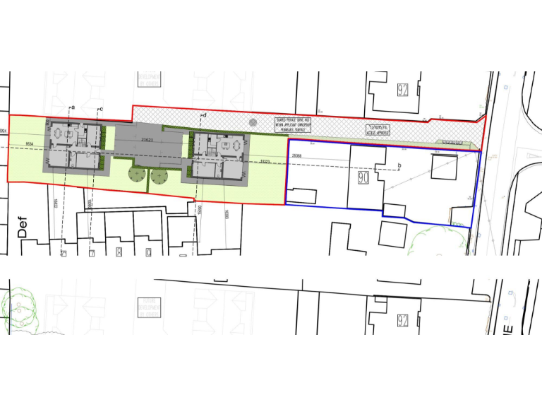
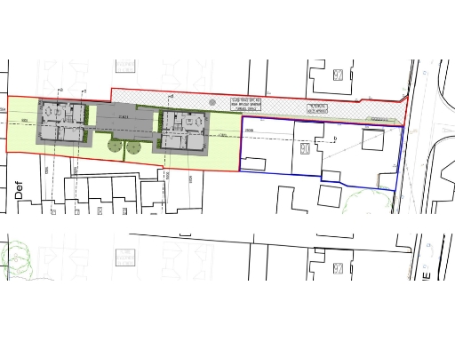
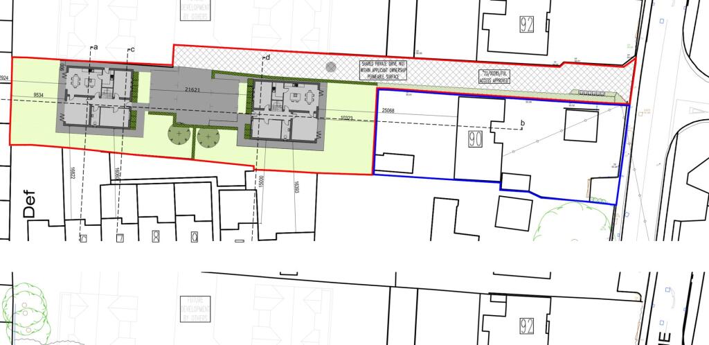
Freehold development plot down private shared access road
Includes space for garage and private garden
Excellent mobile signal and fast broadband; low crime
Located in very affluent area with good nearby schools
Requires full build, services installation and planning compliance
Council tax levels in the area described as quite expensive
A rare development plot tucked off Station Lane in Scraptoft, offered with full planning permission (Ref: 25/00394/FUL, Harborough Council) for a contemporary four-bedroom detached house of around 2,200 sq ft. The plot is freehold, set down a private shared access road and comes with space for a garage and private garden — ideal for a family build or an investor-led project in a very affluent area.
The approved scheme provides generous living accommodation across two storeys with a modern red brick and anthracite design. The site benefits from excellent mobile signal and fast broadband, low local crime and good nearby schools, making it attractive for family buyers wanting a custom new home. There is also scope to adapt or extend the approved design further, subject to additional planning consent.
Buyers should note this is a development plot: servicing, build costs and complying with planning conditions will be required. Any alterations to the current scheme will need fresh planning approval. Council tax in the area is described as quite expensive, which will be a recurring cost once the property is complete.
This plot suits someone aiming to create a long-term family home in a desirable setting or an investor seeking a new-build opportunity with resale potential. The combination of full planning permission, prominent location and strong local amenities makes this a straightforward self-build proposition for buyers prepared to manage construction and planning compliance.
Land for sale in Station Lane, Scraptoft, LE7 — £275,000 • 1 bed • 1 bath • 17424 ft²
Land for sale in Station Lane, Scraptoft, LE7 — £250,000 • 1 bed • 1 bath • 3100 ft²
Land for sale in Station Lane, Scraptoft, LE7 — £525,000 • 1 bed • 1 bath • 17424 ft²
Land for sale in Development Opportunity - Leicester Road, Glen Parva, Leicester, LE2 — £749,000 • 4 bed • 1 bath • 1556 ft²
Land for sale in Harborough Road, Leicester, LE8 — £350,000 • 1 bed • 1 bath
Land for sale in Benscliffe Road, Markfield, LE67 — £1,250,000 • 1 bed • 1 bath • 8307 ft²






























