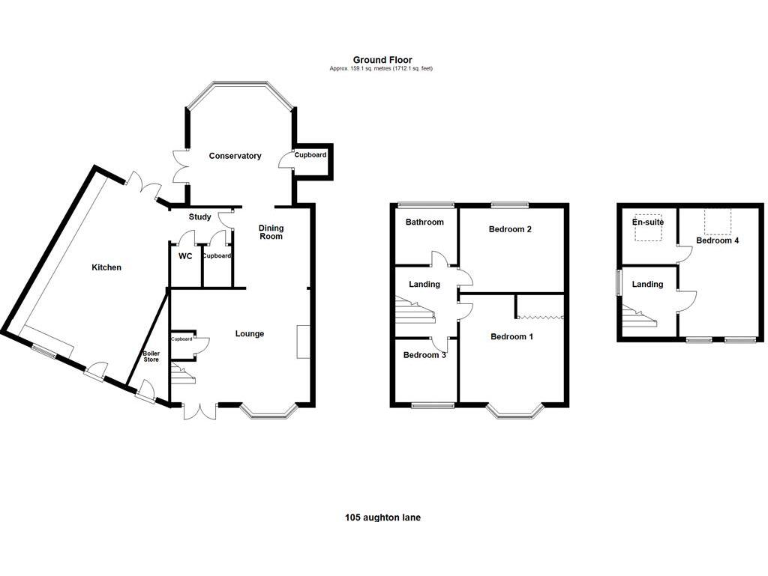
**Standout Features:**
- **Spacious 4-bedroom semi-detached home** on a generous corner plot
- **Welcoming lounge** with contemporary finishes and bay window
- **Magnificent kitchen/diner** with high-end appliances and breakfast bar
- **Conservatory** providing excellent light and versatile space
- **Impressive attic bedroom** with en-suite shower room
- **Off-street parking** and attractive lawned garden
- **Located near well-regarded schools** and essential amenities
- **Low crime rate** area
**Concerns:**
- Leasehold property with 732 years remaining
- Limited insulation (assumed) in cavity walls
This beautifully presented four-bedroom semi-detached home is a fantastic opportunity for families seeking space and modern comforts in a quiet residential area. With a stylish interior that combines versatility and elegant design, the property features a contemporary lounge adorned with herringbone flooring and a bay window, flowing into a modern kitchen/diner equipped with ample storage and high-quality appliances, including a built-in double oven and wine chiller.
The incredible conservatory adds to the living space, opening onto a well-maintained rear garden that’s perfect for entertaining. The first floor boasts three inviting bedrooms, alongside a luxurious attic suite that includes its own en-suite, ensuring privacy and convenience.
Though there are minor maintenance considerations, such as insulation needs, this property offers an exceptional living experience with its generous outdoor spaces, secure parking, and proximity to local amenities, including esteemed schools renowned for their quality. Don’t miss out on this unique family home—properties of this caliber in such a desirable location do not come along often!
4 bedroom detached house for sale in Springwell Avenue, Beighton, Sheffield, S20 1XD, S20 — £350,000 • 4 bed • 2 bath • 1018 ft²
4 bedroom semi-detached house for sale in Finch Rise, Sheffield, S26 — £270,000 • 4 bed • 2 bath • 1398 ft²
4 bedroom semi-detached house for sale in Hayfield Crescent, Sheffield, S12 — £280,000 • 4 bed • 2 bath • 1280 ft²
3 bedroom semi-detached house for sale in West Hill, ROTHERHAM, S61 — £210,000 • 3 bed • 1 bath • 797 ft²
3 bedroom semi-detached house for sale in Swaledale Road, SHEFFIELD, South Yorkshire, S7 — £370,000 • 3 bed • 1 bath • 1318 ft²
4 bedroom semi-detached house for sale in High Matlock Road, Stannington, Sheffield, South Yorkshire, S6 — £350,000 • 4 bed • 2 bath • 1362 ft²










































































































