**Standout Features:**
- Stylishly updated in 2018 with modern kitchen and bathrooms
- Open plan living area with tasteful zoning
- Semi-tropical garden offering privacy
- Garage included, with no onward chain
- Gas boiler replaced in 2021; double glazed windows throughout
**Notable Concerns:**
- Average-sized property in a crime-prone area
- Garden size is on the smaller side
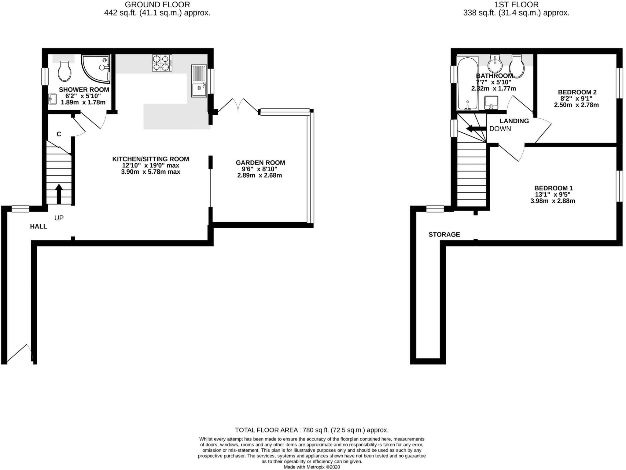
Nestled in the heart of Wells, this charming two-bedroom terraced home offers a perfect blend of modern style and cozy living. Recently renovated, the property features a sleek kitchen equipped with integrated appliances, a comfortable open plan layout ideal for intimate gatherings, and an inviting courtyard garden rich with semi-tropical plants, providing a serene outdoor oasis. The seamless tiled flooring throughout the ground floor enhances both durability and aesthetic appeal, making it a low-maintenance choice for busy lifestyles.
Located just steps away from Wells’ vibrant high street, this residence promises the convenience of boutique shopping, dining, and excellent local amenities. Families will appreciate the proximity to well-regarded schools, while investors might see potential in the rental market due to strong local demand. With no onward chain, this is a rare opportunity to secure a move-in-ready property in a sought-after area—don’t miss your chance to make it yours!
2 bedroom terraced house for sale in Lawpool Court, Wells, BA5 — £300,000 • 2 bed • 1 bath • 776 ft²
2 bedroom terraced house for sale in Park View, WELLS, Somerset, BA5 — £250,000 • 2 bed • 1 bath • 701 ft²
3 bedroom terraced house for sale in West Street, Wells, BA5 — £395,000 • 3 bed • 1 bath • 968 ft²
2 bedroom terraced house for sale in South Street, Wells, BA5 — £220,000 • 2 bed • 1 bath • 528 ft²
2 bedroom terraced house for sale in Carlton Mews, Wells, Somerset, BA5 — £345,000 • 2 bed • 1 bath • 1062 ft²
1 bedroom end of terrace house for sale in Greens Place, Wells, Somerset, BA5 — £210,000 • 1 bed • 1 bath • 551 ft²






































































































































