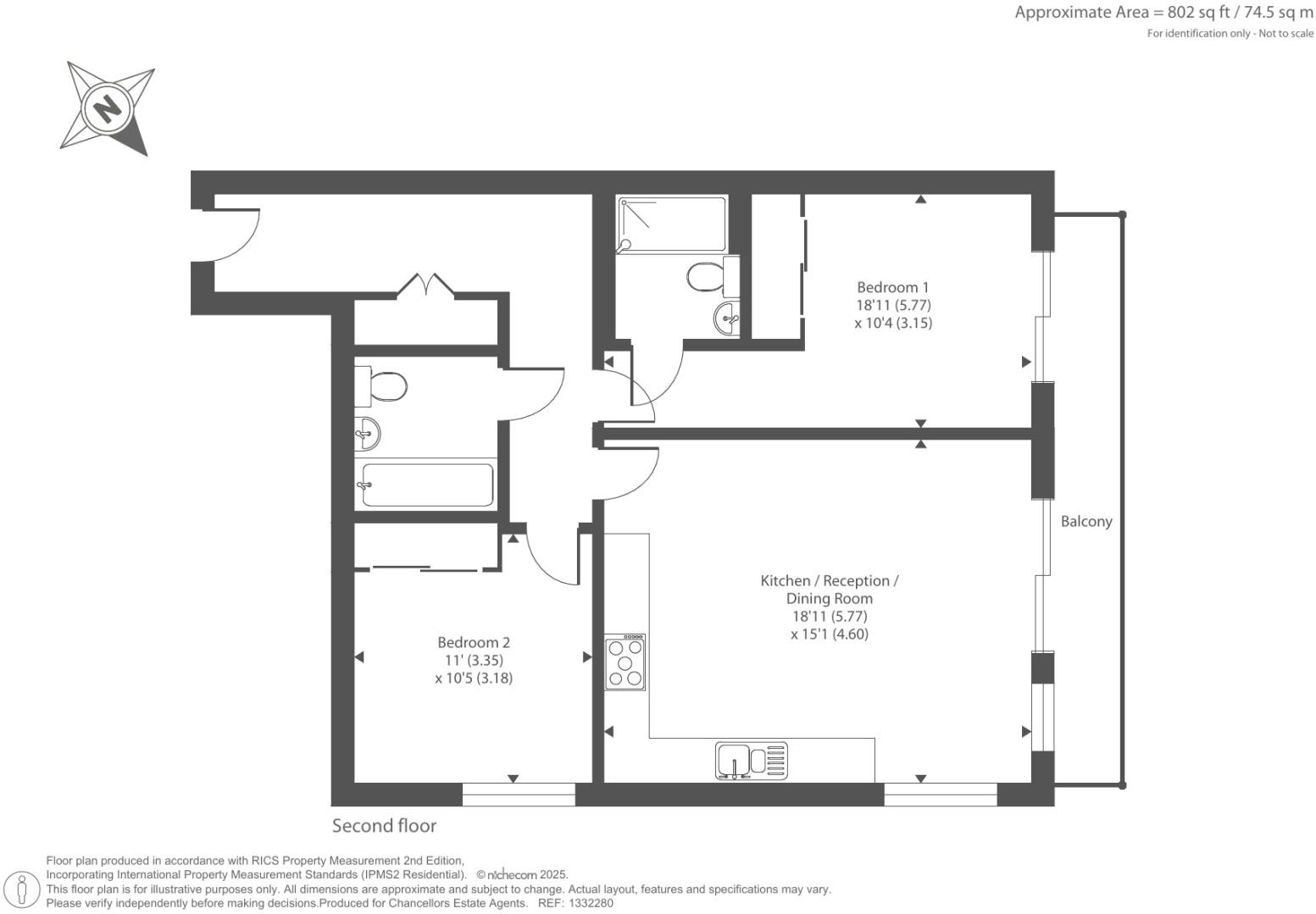
**Standout Features:**
- Leasehold term of 125 years starting in 2017; 111 years remaining.
- Stunning track views from a west-facing corner apartment with abundant natural light.
- Modern open-plan kitchen and dual-aspect living room.
- Two spacious bedrooms, including a master with ensuite, plus a family bathroom.
- Allocated off-street parking.
- Excellent broadband and mobile connectivity, ideal for remote working.
This two-bedroom, two-bathroom apartment offers an enviable lifestyle at Newbury Racecourse, perfect for first-time buyers or investors seeking rental potential in an affluent area. The contemporary design includes a modern kitchen and a bright, airy living room that takes full advantage of the corner positioning, ensuring you enjoy great views without being overlooked. While the property boasts appealing amenities, it does come with a leasehold arrangement and could benefit from minor maintenance as seen in similar constructions.
Conveniently located within walking distance of Newbury Racecourse train station, you’ll find all the shopping, leisure, and educational facilities you need at your doorstep. With commuter-friendly connections to nearby cities like Reading and Oxford, this property is not just a home—it's a gateway to a dynamic lifestyle.
Act quickly; this newly available apartment is a rare find in a sought-after location and presents an excellent opportunity for those looking for comfort and convenience.
2 bedroom flat for sale in Newbury, Berkshire, RG14 — £330,000 • 2 bed • 2 bath • 785 ft²
2 bedroom flat for sale in Newbury, Berkshire, RG14 — £350,000 • 2 bed • 2 bath • 753 ft²
2 bedroom flat for sale in Newbury, Berkshire, RG14 — £270,000 • 2 bed • 2 bath • 775 ft²
2 bedroom flat for sale in Kingman Way, Newbury, RG14 — £340,000 • 2 bed • 2 bath • 776 ft²
2 bedroom apartment for sale in Home Straight, Newbury, Berkshire, RG14 — £290,000 • 2 bed • 2 bath • 724 ft²
2 bedroom apartment for sale in Racecourse Road, Newbury, RG14 — £370,000 • 2 bed • 2 bath • 817 ft²


















































































