**Property Highlights:**
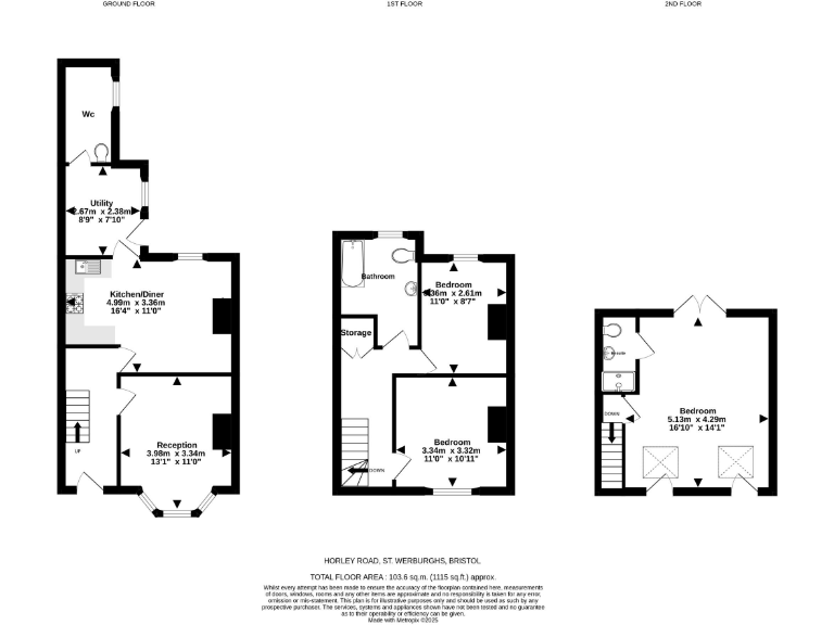
- Three double bedrooms, including a loft conversion with ensuite
- Meticulously maintained Victorian terraced home with classic features
- Private South-facing rear garden, perfect for outdoor living
- Located in vibrant St. Werburghs, near shops and restaurants
- Excellent access to the M32 motorway and city center
- Freehold, chain-free sale, with affordable council tax
Positioned in the heart of St. Werburghs, this charming three-bedroom Victorian terraced house combines classic elegance with modern comfort, making it an ideal choice for first-time buyers or young families. Featuring a bright living room anchored by a bay window and an inviting open-plan kitchen/diner, this home promotes a warm, engaging atmosphere perfect for entertaining or family life. The meticulously maintained interiors include two generously sized double bedrooms on the first floor, alongside a stylish family bathroom. The standout loft conversion boasts a serene ensuite, offering a private retreat with spectacular views.
Step outside to discover a tranquil South-facing garden, perfect for al-fresco dining or relaxing on warm summer evenings. With convenient rear access, it's easy to bring in bikes or outdoor equipment. Located close to a vibrant community filled with independent shops, delightful cafes, and diverse restaurants, this property provides easy access to both the M32 motorway and well-connected walking and cycling routes to Bristol city center. Don’t miss this opportunity to own a stylish home in a sought-after area that promises comfort, convenience, and charm—schedule a viewing today!



































































