**Standout Features:**
- Extended semi-detached bungalow in Great Holland village
- Three spacious bedrooms, including a master with ensuite shower room
- Open plan lounge, kitchen, and dining area, perfect for modern living
- Versatile detached outbuilding/annexe and large storage unit
- Attractive rear garden with seating area and included hot tub
- Ample off-road parking for multiple vehicles
- Surrounded by scenic countryside, yet close to amenities
- EPC Rating: C, Council Tax: C
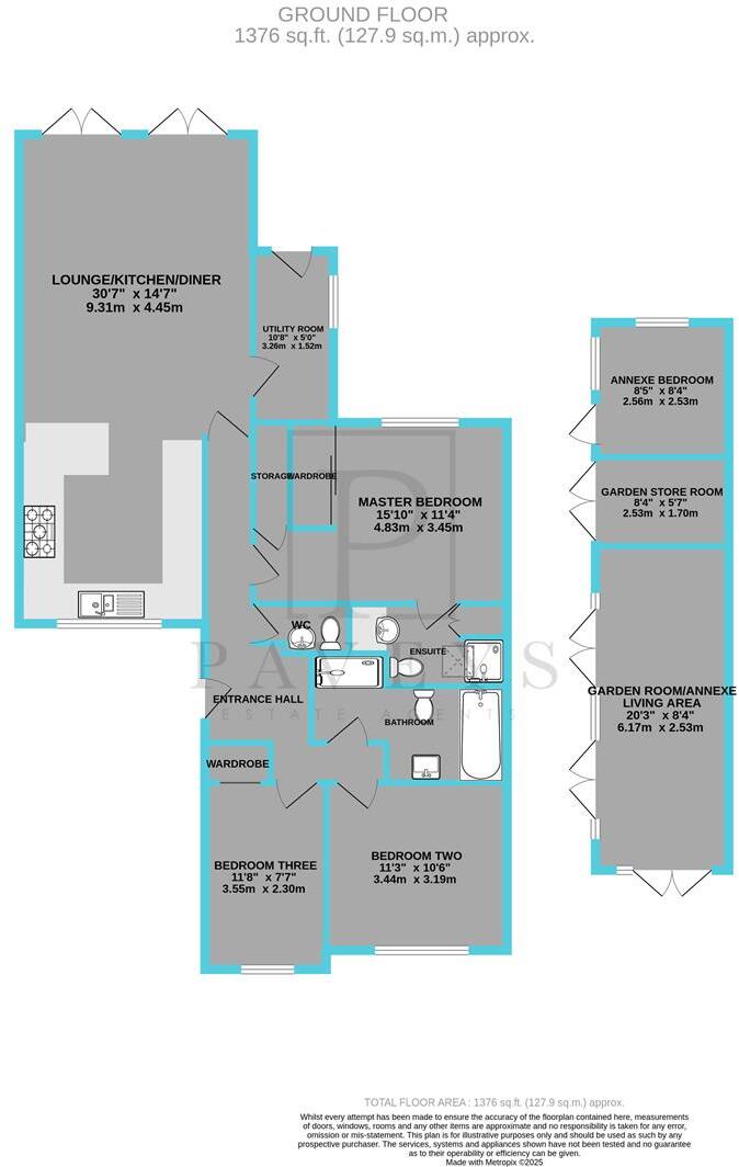
Nestled in the tranquil village of Great Holland, this beautifully extended three-bedroom semi-detached bungalow offers a blend of comfort and versatility. The heart of the home is a spacious 30-foot open plan lounge, kitchen, and dining area, seamlessly connected to a charming rear garden featuring a hot tub—ideal for entertaining. Each bedroom is generously sized; the master suite boasts an ensuite shower room, while the additional two bedrooms share a family bathroom equipped with a jacuzzi bath and walk-in shower.
Further enhancing the property, a detached multi-purpose outbuilding presents additional living or workspace opportunities, perfect for a home office or playroom. The pretty rear garden backs onto stunning countryside views, providing a peaceful outdoor retreat. With plenty of off-road parking and a welcoming community vibe nearby, this bungalow is a remarkable find for families or those seeking a serene lifestyle close to nature. Don’t miss the chance to own this gem; a property like this, with potential for personalization, is sure to attract keen interest.
2 bedroom detached bungalow for sale in Main Road, Great Holland, CO13 — £335,000 • 2 bed • 1 bath • 975 ft²
3 bedroom detached bungalow for sale in Orchard Drive, Great Holland, Frinton-On-Sea, CO13 — £295,000 • 3 bed • 1 bath • 916 ft²
3 bedroom bungalow for sale in Wyworrie, Little Clacton Road, Great Holland, CO13 — £399,995 • 3 bed • 2 bath
2 bedroom detached bungalow for sale in Westbury Road, Great Holland, CO13 — £435,000 • 2 bed • 1 bath • 926 ft²
2 bedroom detached bungalow for sale in Orchard Drive, Great Holland, CO13 — £325,000 • 2 bed • 1 bath • 750 ft²
3 bedroom detached bungalow for sale in Orchard Drive, Frinton-On-Sea, CO13 — £280,000 • 3 bed • 2 bath


































































































