Large garden and flexible living for growing families near Forest Hill transport.
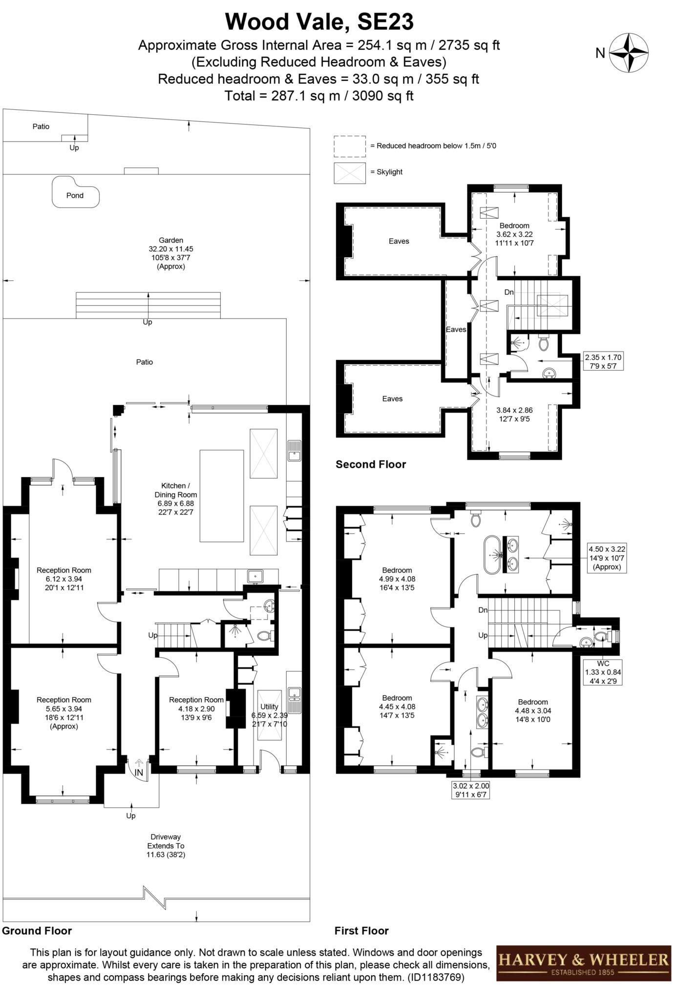
Five double bedrooms over three floors
A very large late-Victorian link-detached family house offering about 2,733 sq ft of flexible living arranged across three floors. Five double bedrooms, three reception rooms and an expansive open-plan kitchen/dining room with underfloor heating make it ideal for entertaining and busy family life. Full-height sliding doors and skylights bring light into the kitchen, which opens directly onto a terrace and a spectacular private garden extending to approximately 105'6" (32.2m).
Practical family features include a principal bedroom with a large en suite bathroom, three further shower rooms, a separate WC, utility room and useful eaves storage. Off-street parking accommodates several cars. The property is double glazed (post-2002) and benefits from mains gas central heating; there is underfloor heating in the kitchen, utility and bathrooms.
Location suits commuters and families: Forest Hill and Honor Oak Park stations offer direct services to London Bridge and connections into the city. Local schools include several ‘Good’ rated primaries and secondaries plus highly regarded independent options. Broadband is fast and mobile signal excellent, with low flood risk.
Important practical points: the house is solid-brick and was built before 1900, so external wall insulation is assumed absent which may affect energy efficiency and running costs. Council tax is described as quite expensive. As with many period houses, ongoing maintenance and sympathetic updating may be required to modernise certain elements.
6 bedroom detached house for sale in Honor Oak Road, London, SE23 — £3,500,000 • 6 bed • 3 bath • 4374 ft²
5 bedroom detached house for sale in Sunderland Road, Forest Hill, SE23 — £2,150,000 • 5 bed • 3 bath • 3000 ft²
5 bedroom detached house for sale in Forest Hill Road, London, SE23 — £1,600,000 • 5 bed • 2 bath • 2600 ft²
5 bedroom terraced house for sale in Vancouver Road, London, SE23 — £1,100,000 • 5 bed • 2 bath • 1744 ft²
5 bedroom semi-detached house for sale in Underhill Road, London, SE22 — £1,950,000 • 5 bed • 3 bath • 2262 ft²
4 bedroom apartment for sale in Wood Vale, London, SE23 — £835,000 • 4 bed • 2 bath • 1818 ft²














































































































































