Quiet cul-de-sac location with woodland views and practical family living.
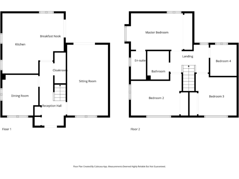
- Four bedrooms with en-suite to the master
- Spacious dining kitchen with integrated appliances
- Two reception rooms; good family layout
- Enclosed low-maintenance rear garden
- Detached garage and double driveway for parking
- Countryside/woodland outlook; quiet cul-de-sac position
- Council Tax Band E (above average)
- Plot is small; listing/build form records show a discrepancy
This well-presented four-bedroom home sits near the top of a quiet cul-de-sac and looks out over a wooded pathway, offering a calm suburban setting with countryside views. The ground floor provides two reception rooms and a generous dining kitchen with integrated appliances and an island — practical for family life and entertaining. The enclosed, low-maintenance rear garden and detached garage with a double driveway make outdoor space and parking straightforward. The property is offered freehold and measures around 1,185 sq ft.
The first floor includes four bedrooms, the master benefiting from an en-suite, plus a family bathroom — a sensible layout for a growing family. Commuter links are good from this J17 estate location, and local shops and amenities are nearby. Broadband and mobile signal are reported as fast and excellent respectively, useful for home working and connectivity.
Notable factual points: council tax is in Band E (above average), the plot is relatively small and the wider area is classified as affluent. One nearby primary school has an Ofsted rating of Inadequate, though several local primary and secondary schools are rated Good. Records include a discrepancy: the listing describes a detached house while built-form data notes semi-detached.
Overall this property suits buyers seeking a ready-to-live-in family home in a quiet, affluent neighbourhood with easy commuting. Buyers should note the higher council tax band, the small plot size, and the nearby school variation when comparing local options.
4 bedroom detached house for sale in Dappled White Close, Sandbach, CW11 — £370,000 • 4 bed • 2 bath • 1206 ft²
3 bedroom semi-detached house for sale in Meadow Brown Place, Sandbach, CW11 — £265,000 • 3 bed • 2 bath • 1212 ft²
4 bedroom detached house for sale in Barlow Way, Sandbach, CW11 — £520,000 • 4 bed • 2 bath • 1669 ft²
4 bedroom detached house for sale in Henshall Drive, Sandbach, CW11 — £600,000 • 4 bed • 2 bath • 1900 ft²
4 bedroom detached house for sale in Swain Drive, Winterley, Sandbach, CW11 — £450,000 • 4 bed • 2 bath • 1283 ft²
4 bedroom detached house for sale in Woodside Drive, SANDBACH, Cheshire, CW11 — £500,000 • 4 bed • 3 bath • 2267 ft²


















































































































































