High-floor apartment with concierge, pool and gym near major transport links.
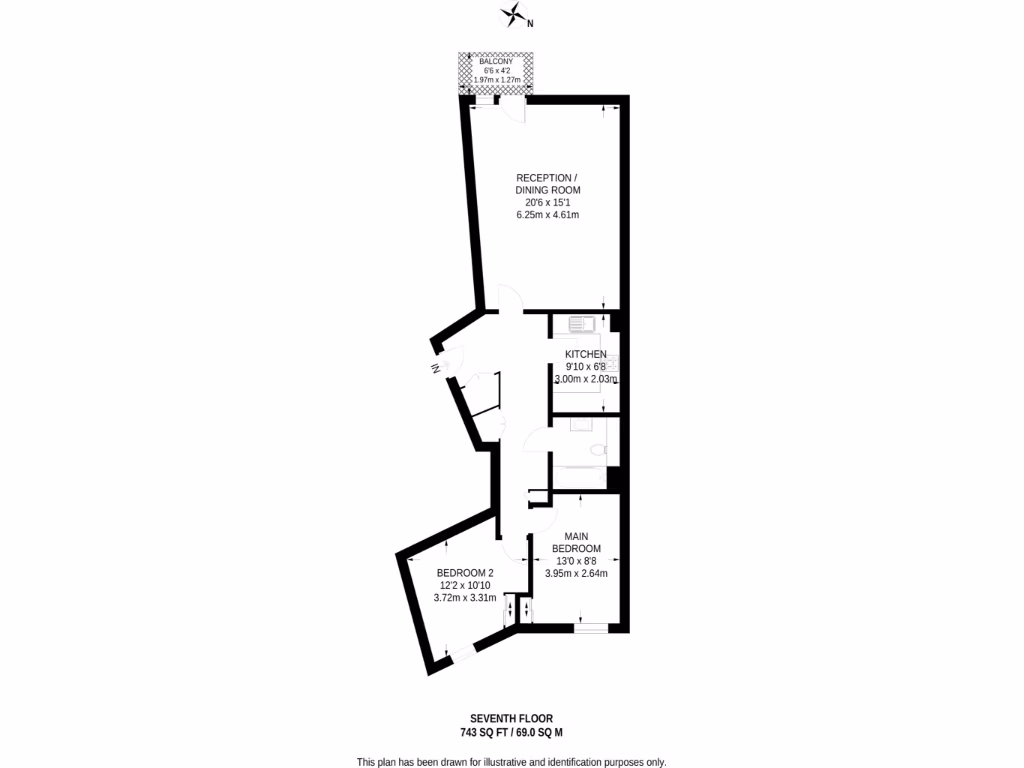
Seventh-floor riverside position with private balcony
Bright seventh-floor apartment in a riverside Michigan Building location, offering generous living space and a private balcony. The open-plan reception and dining area works well for entertaining and everyday life, with a modern fitted kitchen and large windows that bring in abundant light.
Residents benefit from 24-hour concierge and on-site leisure facilities including a gym, pool and sauna, plus excellent transport links to Canary Wharf and Blackwall DLR. The flat’s 743 sq ft layout includes two well-lit bedrooms and a contemporary bathroom, suited to professionals or first-time buyers seeking a turn-key home near major amenities.
Buyers should note this is a leasehold with 976 years remaining, an above-average service charge of £7,724 per year and an annual ground rent of £350. Heating is electric via room heaters rather than a communal system, and there is a single bathroom for two bedrooms. Overall the property offers strong location and facilities but with higher running costs to factor in.
1 bedroom flat for sale in Michigan Building, Canary Wharf, London, E14 — £300,000 • 1 bed • 1 bath • 534 ft²
2 bedroom flat for sale in Boardwalk Place, Canary Wharf, London, E14 — £635,000 • 2 bed • 2 bath • 872 ft²
2 bedroom apartment for sale in Michigan Building Biscayne Avenue London E14 9QT, E14 — £425,000 • 2 bed • 1 bath • 806 ft²
2 bedroom flat for sale in Ocean Wharf, Canary Wharf, London, E14 — £525,000 • 2 bed • 2 bath • 811 ft²
2 bedroom flat for sale in Biscayne Avenue, London, E14 — £595,000 • 2 bed • 2 bath • 1000 ft²
2 bedroom flat for sale in Newport Avenue, E14, Canary Wharf, London, E14 — £500,000 • 2 bed • 2 bath • 873 ft²


























































































































































































































































































