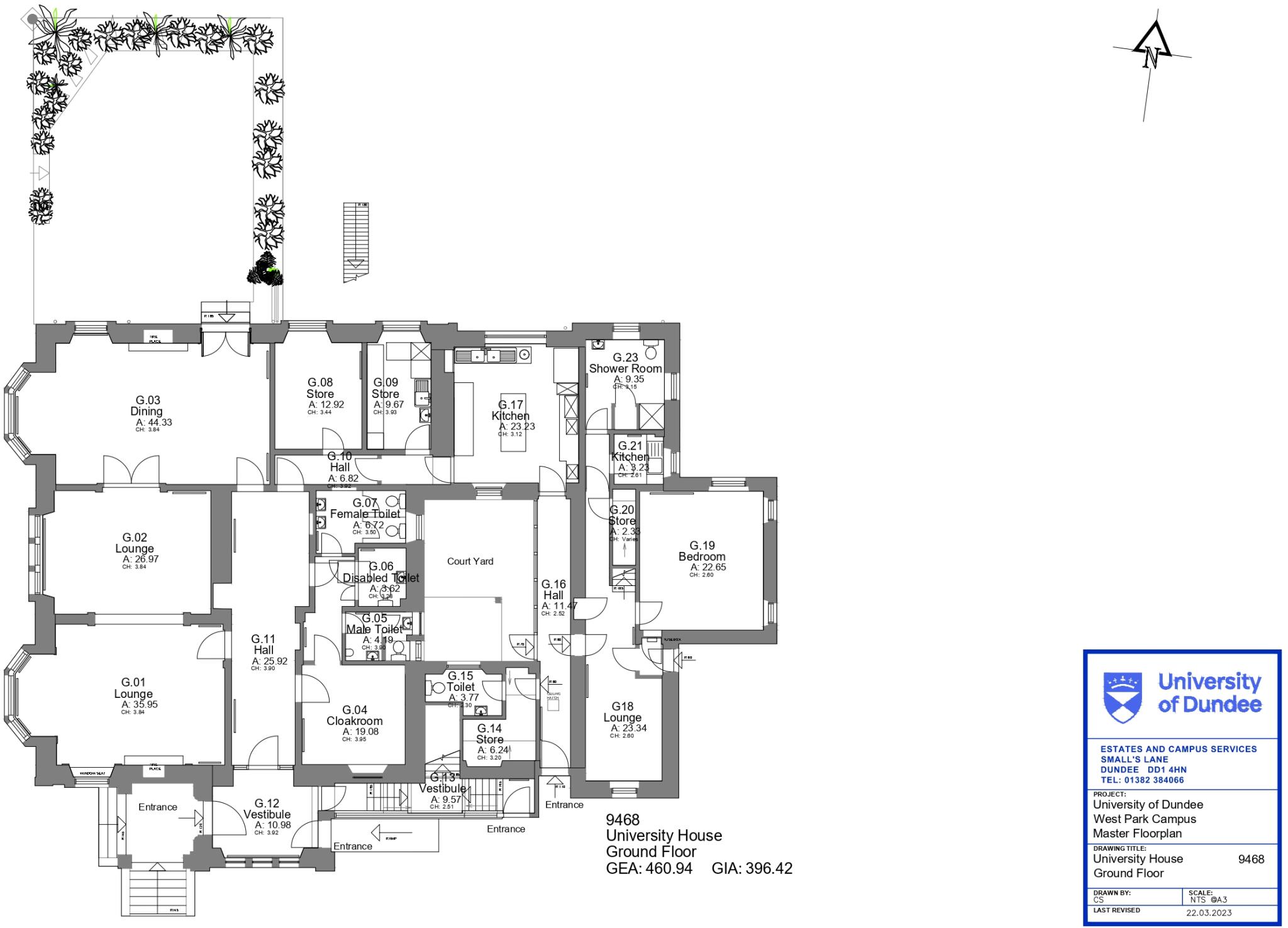
Huge period townhouse with lodge, commercial kitchen and 1.5 acres—development potential subject to consents.
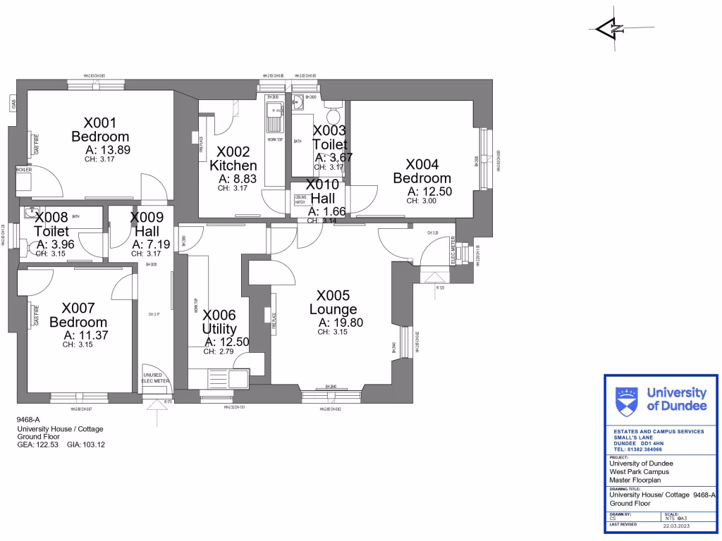
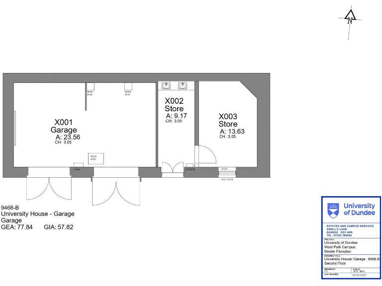
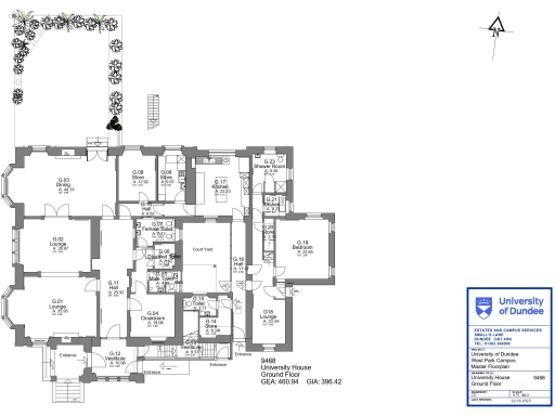
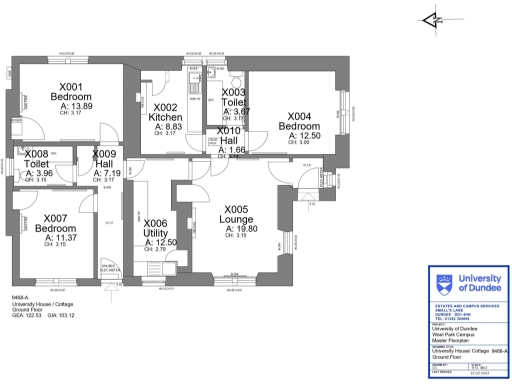
Approximately 7,900 sq ft main house plus 1,110 sq ft lodge
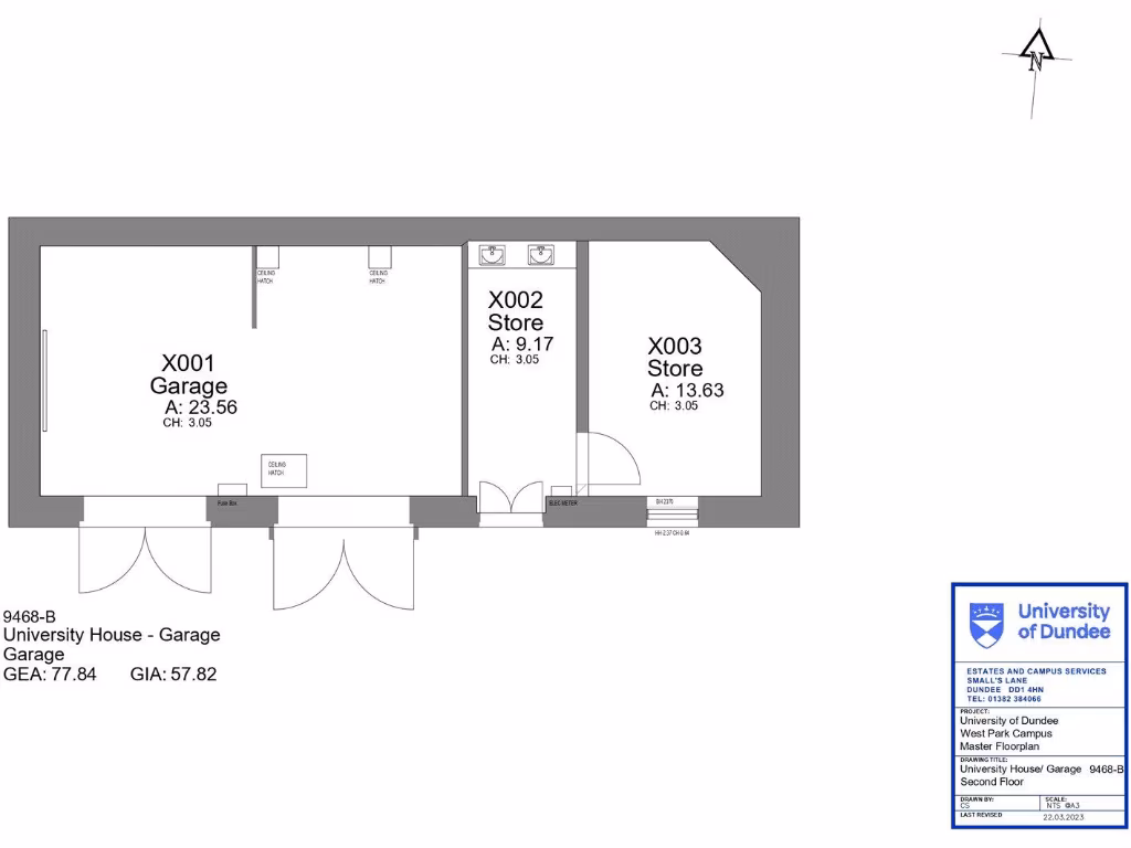
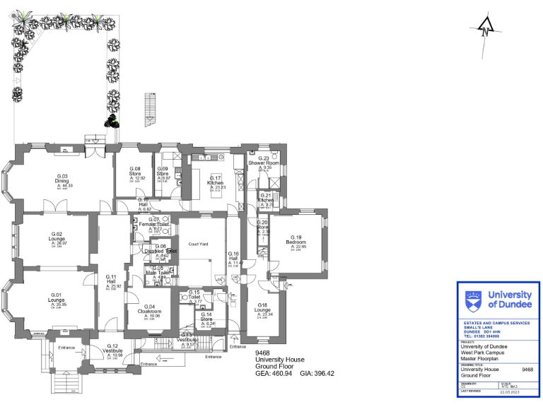
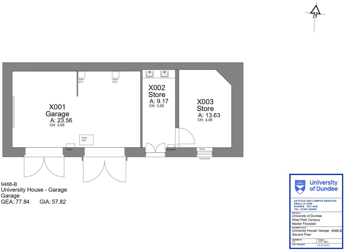
A rare, extremely large Victorian Italianate townhouse with a separate three-bedroom lodge and extensive grounds of about 1.5 acres. University House extends to c.7,900 sq ft and currently comprises two flats, extensive ground-floor reception/event space and a commercial kitchen. Elmslea Cottage (c.1,110 sq ft) sits at the Perth Road entrance. The site benefits from two vehicle access points and garaging with power and light.
This property will suit an investor, developer or purchaser seeking a high‑profile conversion project. The building retains strong period character — ornate cornicing, high ceilings, bay windows and formal reception rooms — and offers clear scope to reconfigure back into a single grand house or to create separate apartments/uses, subject to Listed Building and Conservation Area restrictions and any necessary consents. The upper flat and lodge were tastefully refurbished in 2018; other parts have been used for storage or events and will require reconfiguration for residential reuse.
Important practical points: the site is Category B listed and lies within a conservation area, which will complicate major changes and extensions. EPC rating E and relatively high council tax bands are factual running-cost considerations. The property’s location on Perth Road provides strong local amenities and excellent access to the universities, Ninewells Hospital, city centre and A90, with views toward the River Tay.
Overall this is a prominent, characterful asset with significant development and income potential, but it carries listed-building constraints, mixed existing uses and running-cost implications that buyers must factor into feasibility and planning decisions.
Land for sale in University House & Elmslea Cottage, 325 Perth Road, Dundee, DD2 — £825,000 • 1 bed • 1 bath • 8469 ft²
4 bedroom semi-detached house for sale in Rankine Street, Dundee, DD3 — £290,000 • 4 bed • 2 bath • 1333 ft²
4 bedroom house for sale in Coupar Angus Road, Dundee, DD2 — £300,000 • 4 bed • 3 bath • 1747 ft²
5 bedroom detached house for sale in Rowanlea, 15 Panmure Terrace, Broughty Ferry, By Dundee, DD5 — £690,000 • 5 bed • 2 bath • 4101 ft²
5 bedroom detached house for sale in Tayur House, Waterside, Invergowrie, By Dundee, DD2 — £835,000 • 5 bed • 4 bath • 3884 ft²
4 bedroom detached house for sale in Adelaide Place, Dundee, DD3 — £475,000 • 4 bed • 3 bath • 2244 ft²






















































































































