**Standout Features:**
- Detached three-bedroom barn conversion
- No onward chain, making for a smooth purchase
- Integral double garage and off-street parking
- Enclosed walled garden perfect for outdoor living
- Oil-fired central heating, double glazing throughout
- Set on a working farmstead with scenic countryside views
**Concerns:**
- Requires modernisation to reach its full potential
- Some areas may lack insulation, typical for buildings of this era
- No planning permissions currently in place
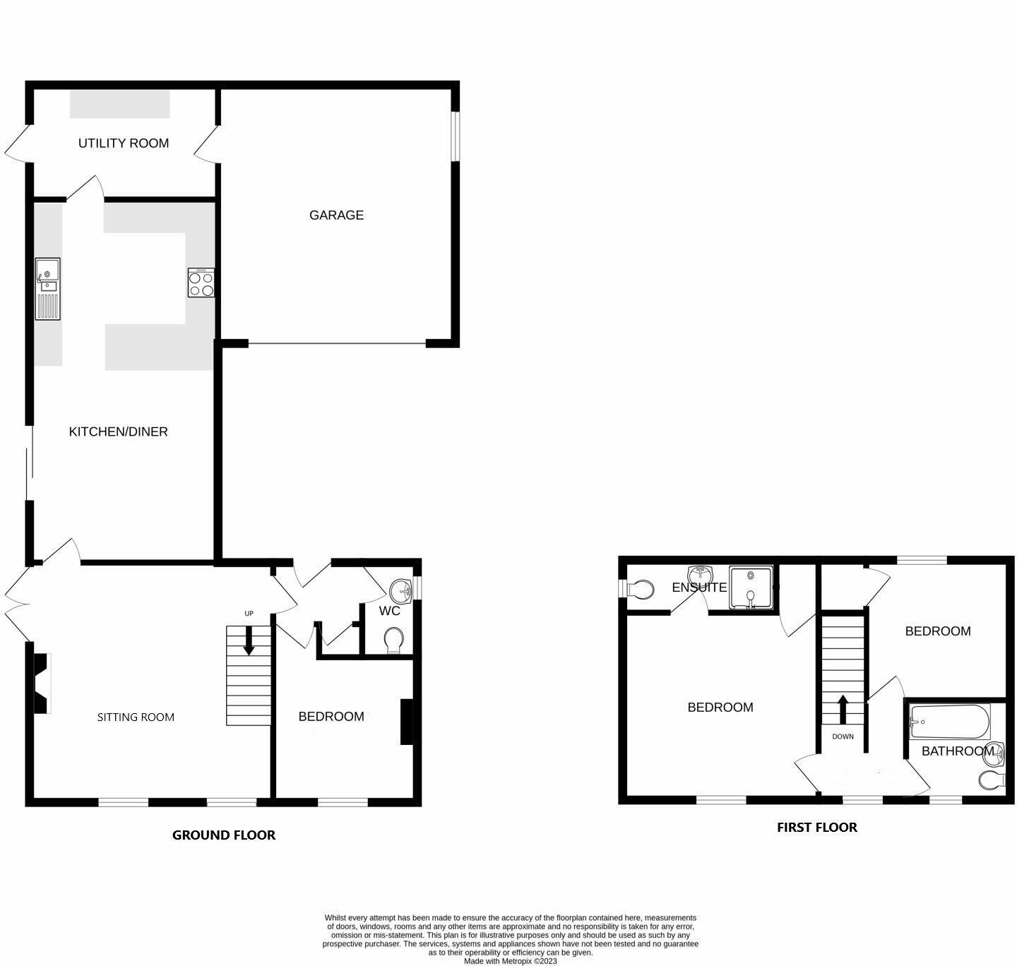
Nestled within the serene setting of Trevorgans, St Buryan, this charming three-bedroom barn conversion presents a unique opportunity for those looking for a project or a tranquil escape. Bathed in natural light, the expansive kitchen/dining area and inviting sitting room offer a warm, rustic vibe, ideal for family gatherings or entertaining. The property features a spacious upper floor with a master bedroom complete with an en-suite, along with two additional bedrooms and a family bathroom.
While the home is ready for some modern upgrades, its solid foundation and pre-installed amenities, including double glazing and oil heating, provide a reliable canvas to create your ideal sanctuary. Surrounded by a peaceful hamlet atmosphere yet close to community conveniences such as schools, shops, and local amenities, this property also boasts excellent mobile and broadband signals.
With the famous beaches of Sennen Cove and Porthcurno just a short drive away, this barn conversion is perfect for investors, families, or first-time buyers seeking a slice of Cornish tranquility. Don’t miss out on the chance to transform this characterful barn into your dream home—properties like this are rare and won’t last long!
4 bedroom detached house for sale in Brea Farm, near Sennen, TR19 — £595,000 • 4 bed • 3 bath • 2464 ft²
4 bedroom barn conversion for sale in Bodinnar Lane, Newbridge, TR20 — £495,000 • 4 bed • 2 bath • 1588 ft²
4 bedroom detached house for sale in St. Buryan, Penzance, TR19 — £975,000 • 4 bed • 3 bath • 2460 ft²
2 bedroom terraced house for sale in Trelew Gardens, St Just, TR19 — £265,000 • 2 bed • 1 bath • 618 ft²
3 bedroom house for sale in Higher Alsia Farm, St. Buryan, TR19 — £650,000 • 3 bed • 4 bath • 1507 ft²
3 bedroom detached house for sale in Tredinnick, Newmill, Penzance, TR20 8XT, TR20 — £625,000 • 3 bed • 1 bath • 1402 ft²






























































































































