Renovation opportunity in a tranquil Dorset hamlet with outbuilding and countryside views.
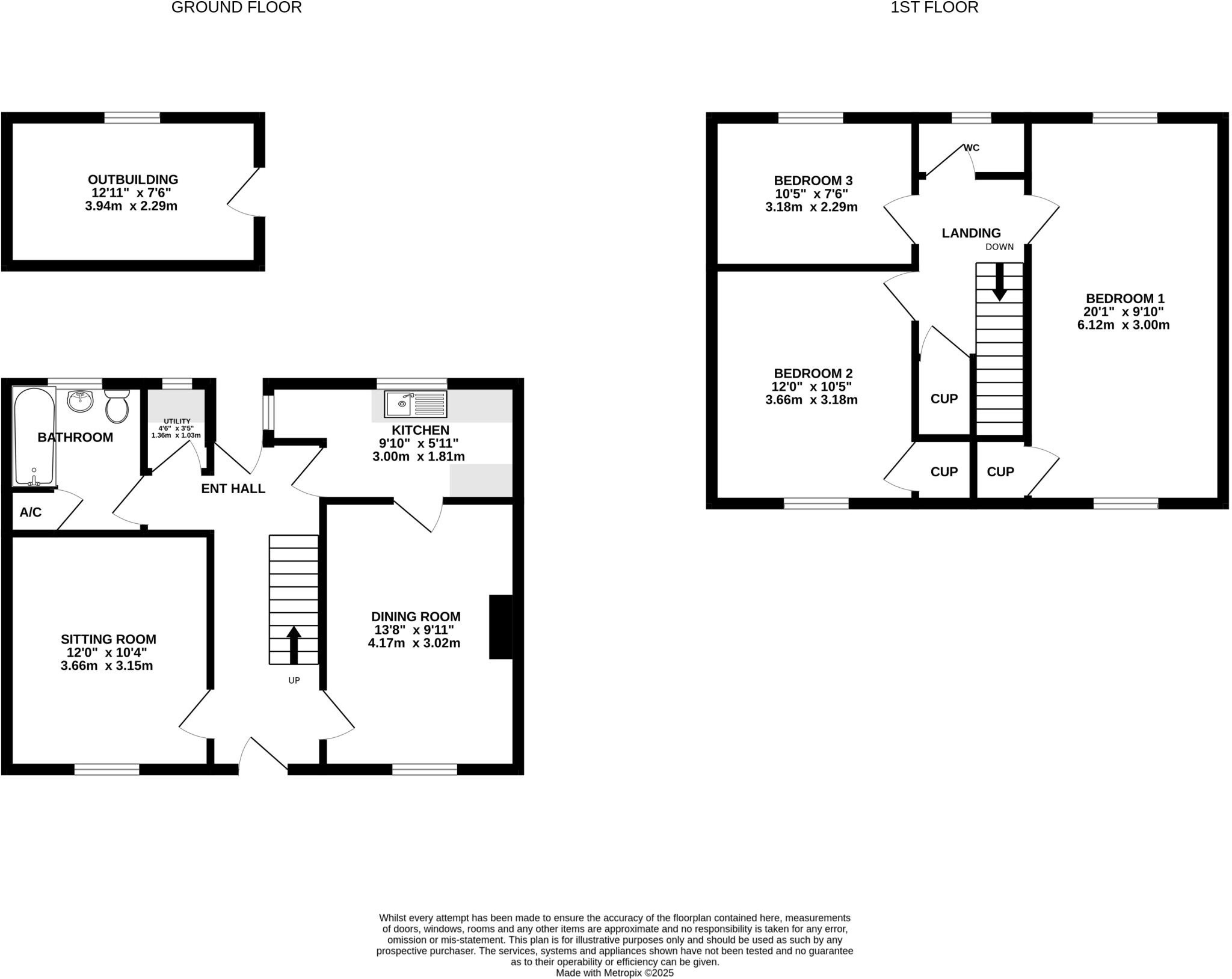
Three double bedrooms upstairs, principal room suitable for en‑suite subject to consent
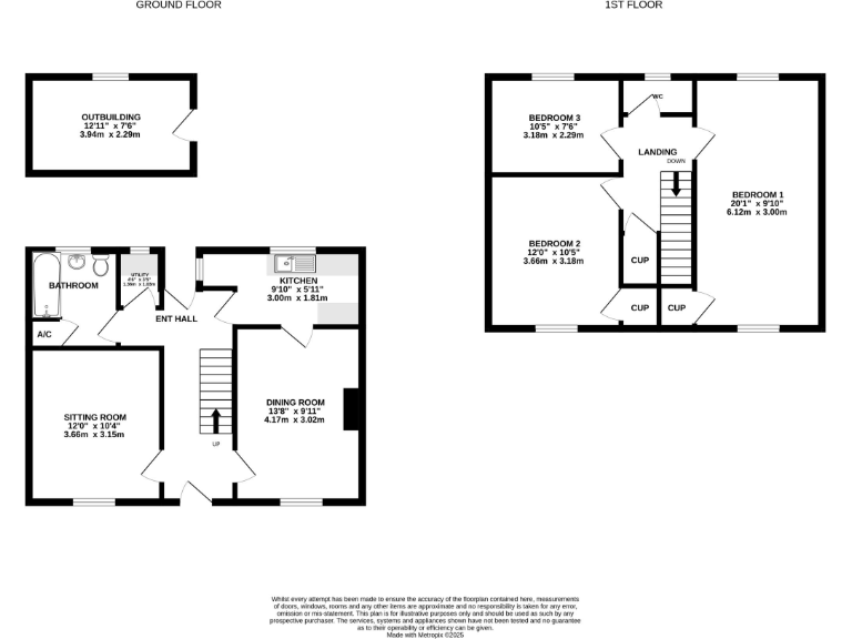
Set in the quiet hamlet of Long Crichel, 2 Mary Anna Cottages is a three-bedroom mid-terrace with generous gardens and countryside views. The house offers two reception rooms, a ground-floor bathroom and three double bedrooms upstairs, with the principal room large enough to accommodate an en-suite subject to consents. A brick outbuilding with light and power sits in the rear garden and could serve as storage, a workshop or a home office.
The property requires renovation and modernisation throughout, presenting a clear chance for a buyer to add value and personalise the interior. Heating is oil-fired via boiler and radiators; double glazing is present but install dates are unknown. Practical considerations include a single bathroom, mid-20th-century construction and filled cavity walls.
Benefits include a very large front and rear garden, fast broadband, very low local crime and no flood risk. The location is peaceful and agricultural — ideal for someone seeking rural privacy — but services are limited and the hamlet setting means travel is needed for shops and wider amenities. Council tax is described as affordable and the tenure is freehold.
This house suits buyers looking for a renovation project in a tranquil countryside setting: families wanting more outdoor space, buyers seeking a workshop or home-office potential, or investors aiming to improve and re-let. The property’s remoter classification and area deprivation indicators should be weighed against the plot size, tranquillity and scope for improvement.
3 bedroom semi-detached house for sale in Long Crichel, Wimborne, Dorset, BH21 — £450,000 • 3 bed • 1 bath • 790 ft²
3 bedroom end of terrace house for sale in Long Crichel, Wimborne, Dorset, BH21 — £375,000 • 3 bed • 2 bath • 732 ft²
3 bedroom semi-detached house for sale in Long Crichel, Wimborne, BH21 — £425,000 • 3 bed • 1 bath • 1193 ft²
3 bedroom semi-detached house for sale in Long Crichel, Wimborne, BH21 — £495,000 • 3 bed • 2 bath • 1072 ft²
3 bedroom house for sale in Wimborne Street, Cranborne, Wimborne, Dorset, BH21 — £550,000 • 3 bed • 1 bath • 1519 ft²
3 bedroom detached house for sale in Cobbs Road, Colehill, Wimborne, Dorset, BH21 — £695,000 • 3 bed • 1 bath • 1338 ft²










































































