**Standout Features:**
- Grade II listed historic former mill with charming period details
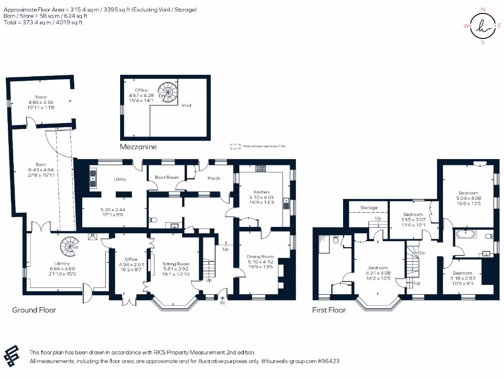
- 3,395 sqft of spacious living area, newly renovated
- Four generous reception rooms, including a striking barn conversion
- Four bedrooms, including an en-suite in the principal bedroom
- Attached 624 sqft barn, offering versatile usage options
- Mature, beautifully landscaped gardens on 0.325 acres
- Gated courtyard parking for multiple vehicles
Nestled in the picturesque village of Little Somerford, this stunning Grade II listed former mill provides an exceptional blend of historic charm and modern comfort. Boasting over 3,395 sqft of thoughtfully renovated living space, this home is ideal for families and entertaining. The ground floor features four expansive reception rooms, one of which includes an impressive barn conversion with a vaulted ceiling and mezzanine level, perfect for relaxing or hosting guests. The spacious kitchen/breakfast room is complemented by essential ancillary spaces, creating an efficient and enjoyable cooking environment.
Upstairs, find four well-appointed bedrooms, with the principal bedroom benefiting from a stylish en-suite. Outside, the property is set within beautifully established gardens, rich with fruit trees and a vegetable plot, encouraging outdoor living and enjoyment. The gated courtyard offers ample parking and privacy, enhancing the overall appeal.
Located just a short distance from Malmesbury and with excellent transport links to London via Kemble station, this residence is perfectly situated for both tranquility and accessibility. While the listed status may present some renovation challenges, the property's historic character and expansive space offer significant potential for the discerning buyer. This opportunity in a thriving countryside setting is not to be missed—schedule your viewing today!
5 bedroom detached house for sale in Longdean, Yatton Keynell, Chippenham, Wiltshire, SN14 — £1,750,000 • 5 bed • 1 bath • 5706 ft²
5 bedroom detached house for sale in Little Somerford, SN15 — £1,495,000 • 5 bed • 3 bath • 2800 ft²
4 bedroom detached house for sale in Oakfield, Little Somerford, Wiltshire, SN15 — £1,395,000 • 4 bed • 3 bath • 2341 ft²
3 bedroom terraced house for sale in Westonbirt, Tetbury, Gloucestershire, GL8 — £1,425,000 • 3 bed • 3 bath • 2858 ft²
4 bedroom detached house for sale in Corston, Malmesbury, Wiltshire, SN16 — £850,000 • 4 bed • 2 bath • 3187 ft²
3 bedroom detached house for sale in New Mill, Pewsey, SN9 — £675,000 • 3 bed • 2 bath • 1658 ft²






































































