Chain-free two-bed retirement flat with communal gardens and onsite facilities, close to town.
First-floor retirement flat with lift access and communal parking
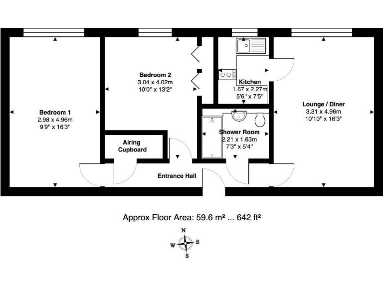
A well-presented first-floor retirement flat in Hometeign House offering two double bedrooms, a bright lounge and a modern fitted kitchen. The apartment is accessed by stairs or lift and overlooks well-maintained communal gardens with a small patio area directly outside the lounge — ideal for sitting out without garden upkeep.
Residents benefit from communal facilities including a lounge, kitchen area and laundry room that encourage socialising. Practical features include an Electric Thermal Store with mains-pressure hot water, double glazing and communal parking. The property is offered chain-free and is within easy walking distance of Newton Abbot town centre and the train station.
Important practical points: this is a leasehold retirement scheme with 98 years remaining on the lease, an above-average service charge (£4,576.85 pa) and a relatively high ground rent (£568.12 pa). Heating is electric via room heaters and thermal store, which may mean higher running costs compared with gas-heated homes. The local area records higher crime and deprivation levels; readers should visit to assess suitability.
Overall this apartment will suit buyers looking to downsize into a low-maintenance, social retirement setting close to town amenities. Its chain-free sale and communal support facilities make it straightforward to move into, but factor in service charges, ground rent and electric heating when considering overall cost of ownership.
2 bedroom flat for sale in Marsh Road, Newton Abbot, Devon. , TQ12 — £190,000 • 2 bed • 1 bath • 725 ft²
1 bedroom flat for sale in Hometeign House, Salisbury Road, Newton Abbot, TQ12 — £75,000 • 1 bed • 1 bath • 457 ft²
1 bedroom flat for sale in Hometeign House, Salisbury Road, Newton Abbot, TQ12 2TE, TQ12 — £62,000 • 1 bed • 1 bath • 441 ft²
1 bedroom flat for sale in Hometeign House, Salisbury Road, TQ12 — £60,000 • 1 bed • 1 bath • 408 ft²
1 bedroom apartment for sale in Marsh Road, Newton Abbot, TQ12 — £125,000 • 1 bed • 1 bath • 683 ft²
1 bedroom apartment for sale in Marsh Road, Newton Abbot, TQ12 — £70,000 • 1 bed • 1 bath • 458 ft²


























































