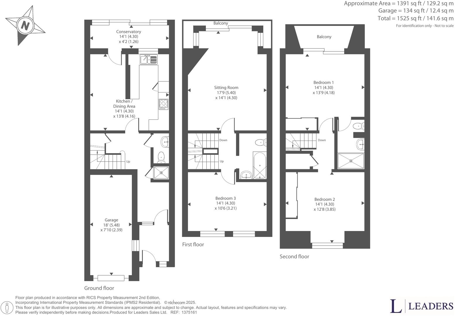
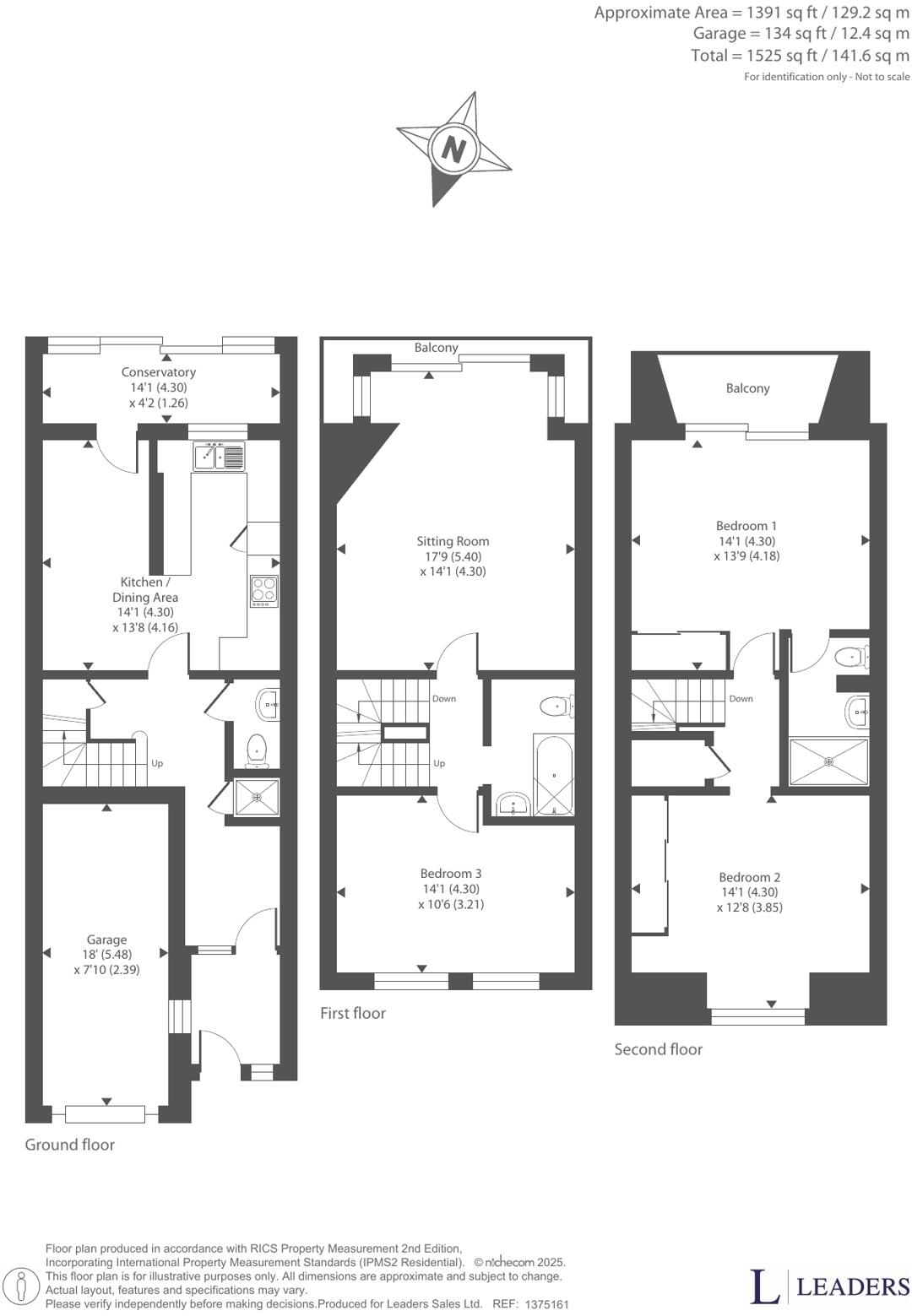
Three-bedroom waterside home with balconies, garage and private courtyard near Quay.
Chain free three-bedroom mid-terrace with panoramic Poole Harbour views
Set in a superb waterside position just a short walk from Poole Quay, this three-bedroom mid-terrace offers panoramic views across Poole Harbour and immediate access to cafés, shops and transport links. The principal living room and main bedroom both open to balconies that look directly over the water, providing a rare vantage point in a central location.
The house provides flexible accommodation over three floors with an integral garage, driveway parking and a private courtyard garden. The ground floor kitchen/dining area and conservatory link to the courtyard, while the first-floor lounge and second-floor principal suite maximise harbour views.
The property requires full modernisation throughout; fixtures, finishes and services will need updating. Thermal solar panels are installed but currently not in use. The building has older double glazing and cavity walls that appear uninsulated, so buyers should budget for energy-performance improvements.
Practical considerations: the plot is modest and the garden is a small courtyard rather than expansive outdoor space. Council tax is described as expensive and the immediate area records a higher local crime rate, which may be important to families or investors. Sold freehold and chain free, this home suits a buyer wanting to create a contemporary coastal residence or an investor seeking uplift from location and balconies overlooking the harbour.
3 bedroom terraced house for sale in Ballard Close, Poole, Dorset, BH15 — £700,000 • 3 bed • 2 bath • 1281 ft²
2 bedroom end of terrace house for sale in Labrador Drive, Baiter Park, Poole, Dorset, BH15 — £315,000 • 2 bed • 1 bath • 519 ft²
4 bedroom town house for sale in Lake Avenue, Hamworthy, BH15 — £1,200,000 • 4 bed • 3 bath • 2032 ft²
4 bedroom detached house for sale in Chaddesley Glen, Poole, Dorset, BH13 — £2,750,000 • 4 bed • 3 bath • 3659 ft²
4 bedroom detached house for sale in Dorset Lake Avenue, Lilliput, Poole, BH14 — £1,500,000 • 4 bed • 1 bath • 2200 ft²
3 bedroom terraced house for sale in Labrador Drive, Baiter Park, Poole, BH15 — £490,000 • 3 bed • 2 bath • 830 ft²






























































