Four-bedroom detached home with garage, garden and updated kitchen.
Detached four-bedroom family house on decent plot
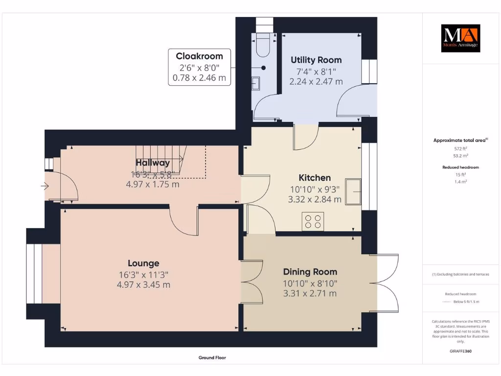
A deceptively spacious four-bedroom detached home set on a decent plot on Isle Road, Outwell. The house offers separate lounge and dining rooms, a refurbished kitchen with adjoining utility and cloakroom, plus a useful integral garage and driveway parking — practical layout for daily family life.
Two of the upstairs bedrooms are notably large (both over 16ft), and the main bedroom includes an en-suite and built-in storage. The private rear garden has patio and lawn areas suitable for children and outdoor entertaining. Broadband speeds are fast and mobile signal is excellent, convenient for home working or streaming.
Buyers should note some material points: the property sits in a medium flood-risk area and the wider locality records higher deprivation measures than average. The home dates from the 1980s and, aside from the newer kitchen, may benefit from selective updating in places. EPC rating C and Council Tax band D reflect reasonable running costs for a house of this size.
This house will suit families seeking space and a village setting with good local primary schools and basic amenities nearby. Internal inspection is recommended to appreciate the proportions and practical potential of this detached home.
3 bedroom semi-detached house for sale in Horseshoe Court, Outwell, PE14 — £240,000 • 3 bed • 1 bath • 870 ft²
4 bedroom detached house for sale in Hall Road, Outwell, PE14 — £365,000 • 4 bed • 2 bath • 1379 ft²
3 bedroom detached house for sale in Church Drove, Outwell, WISBECH, PE14 — £210,000 • 3 bed • 1 bath • 695 ft²
4 bedroom detached house for sale in Lowside, Outwell, Wisbech, PE14 — £425,000 • 4 bed • 3 bath • 1571 ft²
4 bedroom detached house for sale in Isle Road, Outwell, Wisbech, PE14 — £325,000 • 4 bed • 2 bath • 1733 ft²
4 bedroom bungalow for sale in Church Drove, Outwell, Wisbech, Norfolk, PE14 — £350,000 • 4 bed • 1 bath • 1757 ft²










































































