**Standout Features:**
- Charming three-bedroom mid-terrace home
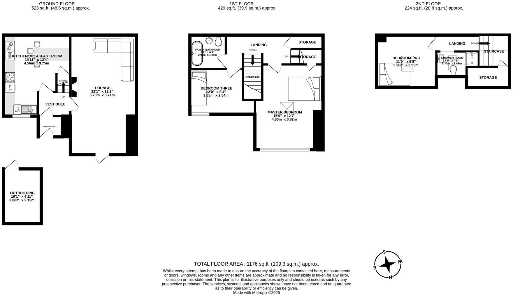
- Set over three floors with historic Victorian character
- Excellent transport links to Preston and Manchester
- Private rear yard and communal lawn for outdoor leisure
- Proximity to local parks and amenities
- Low crime rate in a tranquil setting
- EPC Rating C
Nestled in the exclusive Euxton Hall Gardens, this charming three-bedroom mid-terrace home seamlessly blends historic character with modern comfort. Encompassing approximately 1176 square feet, the well-appointed property boasts a spacious lounge adorned with a feature fireplace and large windows that fill the space with natural light. The open-plan kitchen/dining area is perfect for family gatherings and entertaining, equipped with high-quality integrated appliances and a stylish breakfast bar.
Ideal for families, this house is strategically located near reputable schools, such as the Outstanding-rated Euxton Church of England Primary School, and offers excellent travel links with nearby train stations and easy access to the M6 and M61 motorways. Outside, enjoy the private rear yard and a beautifully maintained communal lawn, fostering a sense of community and enhancing your lifestyle.
While the property features beautiful traditional elements, prospective buyers should note that it is a leasehold with a service charge of £780 and may require standard upkeep typical of a home of its age. Overall, this is a rare opportunity to own a piece of Euxton’s history in a peaceful, well-connected location—one that must be viewed to truly appreciate its charm and character. Don't miss out on this unique offering!
2 bedroom apartment for sale in Euxton Hall Mews, Euxton, Chorley, PR7 — £249,995 • 2 bed • 2 bath • 1151 ft²
3 bedroom terraced house for sale in Regency Gardens, Euxton, Chorley, PR7 — £159,995 • 3 bed • 2 bath • 698 ft²
3 bedroom semi-detached house for sale in Chestnut Avenue, Euxton, Chorley, PR7 — £249,995 • 3 bed • 1 bath • 1240 ft²
4 bedroom semi-detached house for sale in Wigan Road, Euxton, Chorley, PR7 — £374,995 • 4 bed • 2 bath • 1785 ft²
2 bedroom terraced house for sale in Lytham Court, Euxton, Chorley, PR7 — £169,995 • 2 bed • 1 bath • 576 ft²
3 bedroom semi-detached house for sale in Carnoustie Drive, Euxton, Chorley, PR7 — £199,995 • 3 bed • 2 bath • 815 ft²






























































































