**Standout Features:**
- Newly renovated detached bungalow
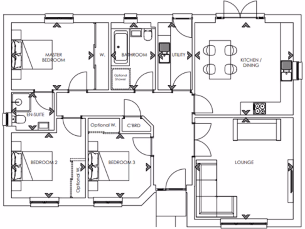
- Spacious 1184 sqft layout with 3 double bedrooms
- Ensuite bathroom and separate utility room with garden access
- Modern kitchen with efficient layout and garden access
- Chain-free sale for smooth transaction
- Average-sized garden ideal for family activities
- Fast broadband and average mobile signal
**Notable Concerns:**
- Located in a challenged area (KA19 7BN)
- Above-average council tax band (Band E)
- Area classification indicates higher levels of deprivation
This newly renovated detached bungalow is a unique opportunity for families or first-time buyers seeking an ideal blend of modern living and outdoor space. With an impressive 1184 sqft layout, it boasts three generous double bedrooms, including a stylish ensuite, and a practical utility room that opens directly into the average-sized garden—perfect for summer gatherings or simply enjoying the outdoors.
The heart of this home lies in its contemporary kitchen with herringbone flooring and abundant natural light, designed for efficient living and entertaining. Located in the tranquil town of Maybole, you’ll find essential amenities, schools, and recreational areas just a short distance away, ensuring convenience without sacrificing comfort.
Despite its challenges in the wider area, this property’s chain-free status and modern appeal make it a compelling choice for those seeking a fresh start or a comfortable family home. Secure this property with a £1000 reservation today, and don’t miss out on the future potential it has to offer!
3 bedroom detached bungalow for sale in Crosshill Road,
Maybole,
Ayrshire,
KA19 7BN, KA19 — £295,000 • 3 bed • 2 bath • 1184 ft²
4 bedroom detached house for sale in Crosshill Road,
Maybole,
Ayrshire,
KA19 7BN, KA19 — £287,995 • 4 bed • 3 bath • 1270 ft²
4 bedroom detached house for sale in Crosshill Road,
Maybole,
Ayrshire,
KA19 7BN, KA19 — £279,995 • 4 bed • 3 bath • 1270 ft²
3 bedroom detached house for sale in Crosshill Road,
Maybole,
Ayrshire,
KA19 7BN, KA19 — £240,000 • 3 bed • 3 bath • 1027 ft²
4 bedroom detached house for sale in Crosshill Road,
Maybole,
Ayrshire,
KA19 7BN, KA19 — £289,995 • 4 bed • 3 bath • 1270 ft²
3 bedroom detached house for sale in Crosshill Road,
Maybole,
Ayrshire,
KA19 7BN, KA19 — £237,500 • 3 bed • 3 bath • 1027 ft²














































