Large garden, excellent schools and quick rail links to central London.
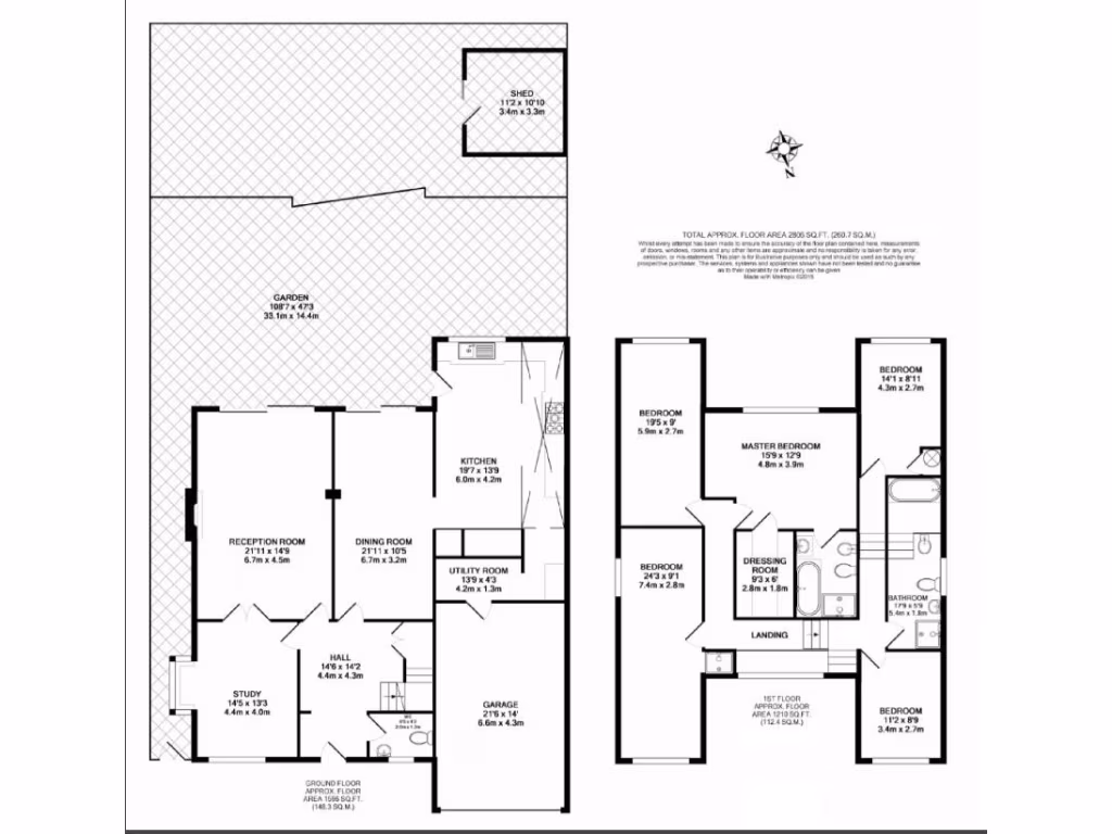
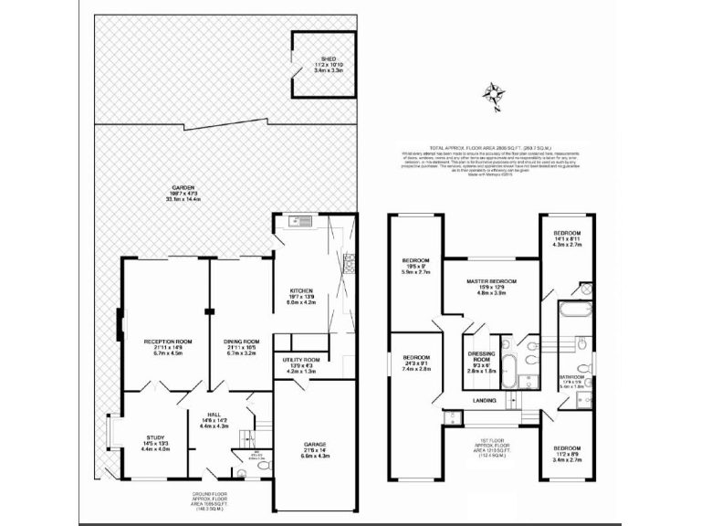
- Over 2,900 sq ft internal space, five bedrooms
- Principal bedroom with dressing room and modern en‑suite
- Large 108 ft south‑west facing garden backing onto Hadley Woods
- Modern fitted kitchen with skylight and separate utility room
- Integral garage and carriage driveway with multiple parking spaces
- Two bathrooms for five bedrooms; one bedroom has shower facilities
- Double glazing pre‑2002 and cavity walls assumed without insulation
- Council Tax Band H — high annual running costs
This substantial five-bedroom detached family home offers more than 2,900 sq ft of versatile living space arranged over multiple floors — ideal for a growing family needing separate reception rooms, storage and home-working space. The principal suite includes a dressing room and modern en‑suite, while the kitchen with skylights and a separate utility room connects directly to the large integral garage for practical everyday living.
The mature south‑west facing rear garden extends to approximately 108 ft, laid mainly to lawn with a wide patio and veranda, providing excellent space for children to play and for outdoor entertaining. A block‑paved carriage driveway delivers plentiful off‑street parking. To the rear the garden borders Hadley Woods, offering a private, green outlook and easy access to local walking routes.
Location is a strong selling point: Hadley Wood mainline station is within walking distance (regular services to central London), good road links to the M25, and a wide choice of highly regarded local schools nearby. Local leisure options include golf and tennis clubs within easy reach.
Important practical notes: the property dates from the 1930s–40s and has double glazing installed before 2002 and cavity walls assumed without added insulation. Council tax is high (Band H). These factors mean potential buyers should budget for running costs and consider energy efficiency improvements.
5 bedroom detached house for sale in Claremont Road, Hadley Wood, EN4 — £1,350,000 • 5 bed • 2 bath • 2249 ft²
6 bedroom detached house for sale in Newmans Way, Hadley Wood, EN4 — £1,900,000 • 6 bed • 2 bath • 2684 ft²
4 bedroom detached house for sale in Courtleigh Avenue, Hadley Wood, Hertfordshire, EN4 — £1,650,000 • 4 bed • 3 bath • 2558 ft²
5 bedroom detached house for sale in Lancaster Avenue, Hadley Wood, EN4 — £2,250,000 • 5 bed • 4 bath • 3510 ft²
6 bedroom detached house for sale in Camlet Way, Hadley Wood, EN4 — £3,750,000 • 6 bed • 5 bath • 5491 ft²
6 bedroom detached house for sale in Parkgate Avenue, Hadley Wood, EN4 — £2,495,000 • 6 bed • 4 bath • 3413 ft²






































































































