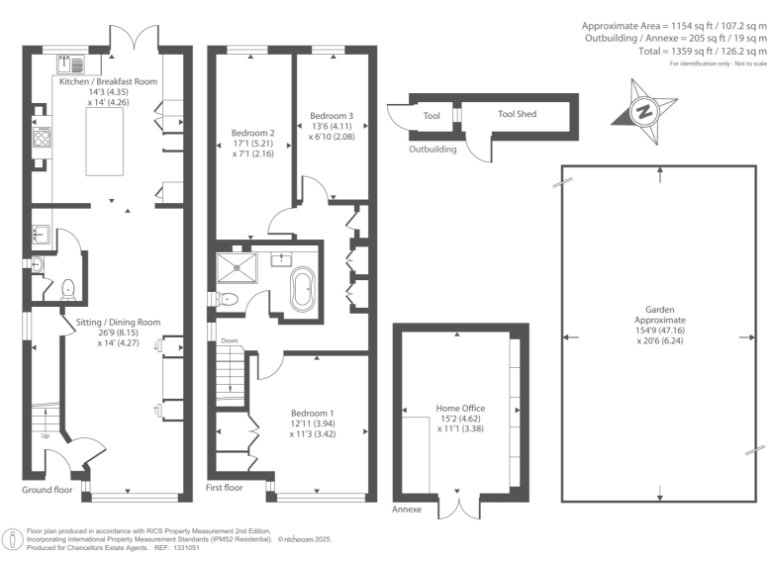
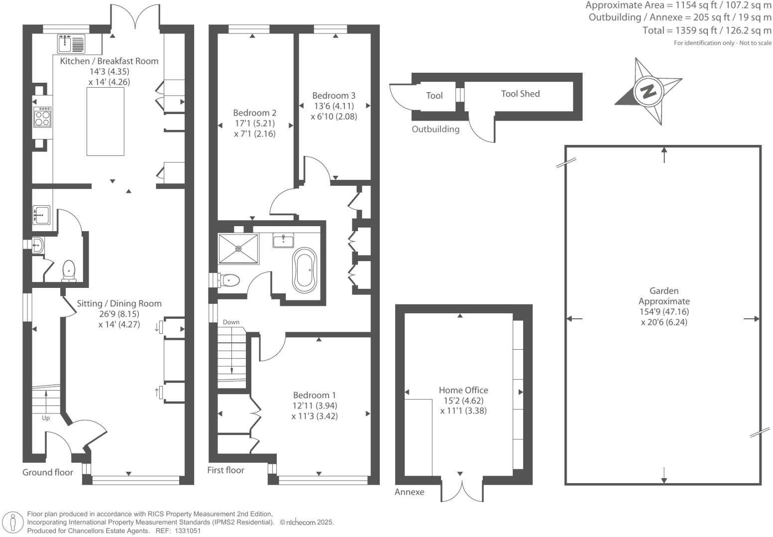
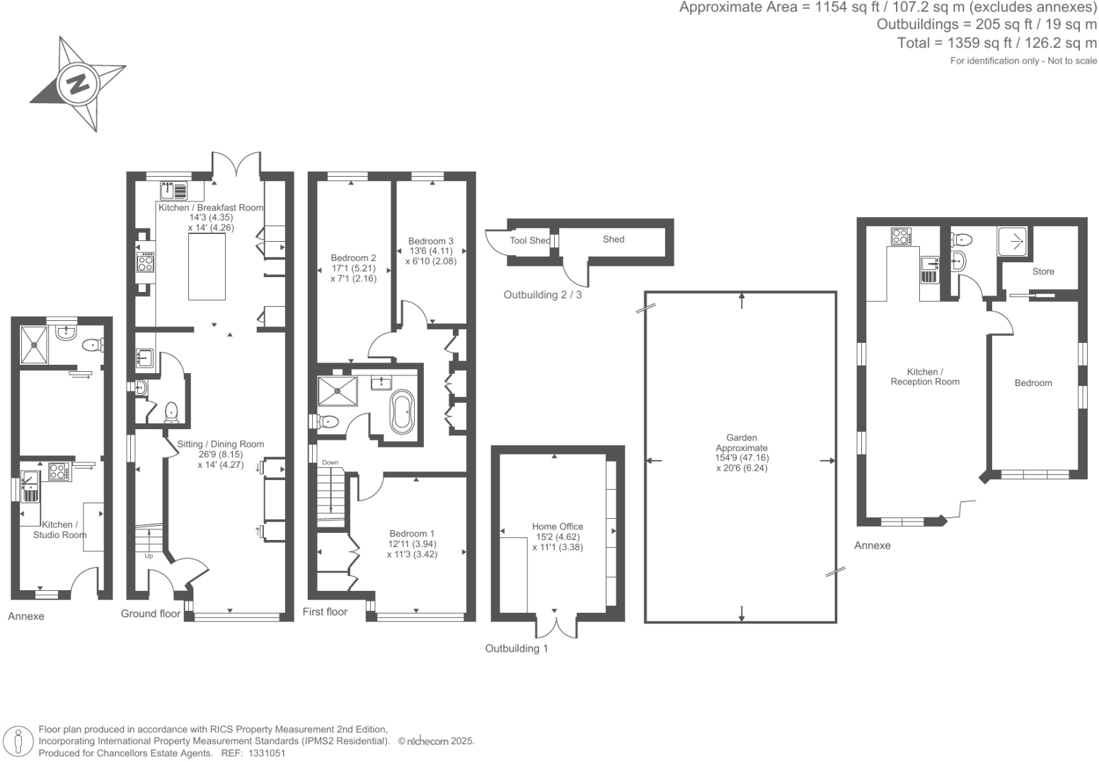
Newly renovated 3-bed semi with two income-producing annexes and large garden..
Immaculate, newly renovated throughout with high-end contemporary finishes
Two one-bedroom annexes in garden, each with kitchenette and shower room
Annexes currently generate income in excess of £30,000 per annum
Large landscaped rear garden with paved patio and mature planting
Dedicated home office with extensive shelving and storage
Plenty of built-in storage throughout main house
Off-street parking and gated garden access
Cavity walls recorded with no added insulation (assumed) — may need retrofit
This spacious 1930s semi-detached home in Didcot has been newly renovated throughout with contemporary, high-end fittings and thoughtful layout changes. The heart of the house is an open-plan kitchen/breakfast room with bespoke storage, central island and range-style cooker; the living and dining areas flow well for family life or entertaining. Off-street parking, a large plot and a landscaped rear garden add practical everyday benefits.
A standout feature is the garden’s two one-bedroom annexes, each with a kitchenette and shower room, which currently generate in excess of £30,000 per year — offering immediate investment income or flexible accommodation for guests. There is also a dedicated home office with abundant shelving, ideal for remote working.
Bedrooms and bathrooms are finished to a high standard, with the main bathroom featuring a free-standing claw-foot bath and walk-in shower. Built-in storage is plentiful across the property and double glazing has been installed (post-2002), improving comfort and noise reduction.
Buyers should note the property’s brick cavity walls are recorded as having no added insulation (assumed), which may be a consideration for long-term running costs and retrofit works. The house is freehold, newly renovated and located in a comfortable, low-crime neighbourhood close to schools and local amenities.
4 bedroom semi-detached house for sale in Park Road, Didcot, OX11 — £500,000 • 4 bed • 2 bath • 1530 ft²
5 bedroom detached house for sale in Manor Road, Didcot, OX11 — £949,995 • 5 bed • 4 bath • 2337 ft²
3 bedroom semi-detached house for sale in Freeman Road, Didcot, Oxfordshire, OX11 — £400,000 • 3 bed • 1 bath • 860 ft²
4 bedroom semi-detached house for sale in Wessex Road, Didcot, OX11 — £500,000 • 4 bed • 2 bath • 1464 ft²
3 bedroom semi-detached house for sale in Didcot, Oxfordshire, OX11 — £400,000 • 3 bed • 1 bath • 1189 ft²
3 bedroom semi-detached house for sale in Tavistock Avenue, Didcot, OX11 — £425,000 • 3 bed • 1 bath • 1541 ft²


















































































































