Modern five-bedroom detached home with open-plan family living and double garage, chain free.
5-bedroom detached new build, 1,793 sq ft
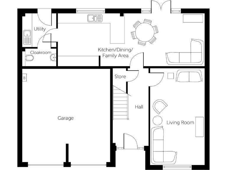
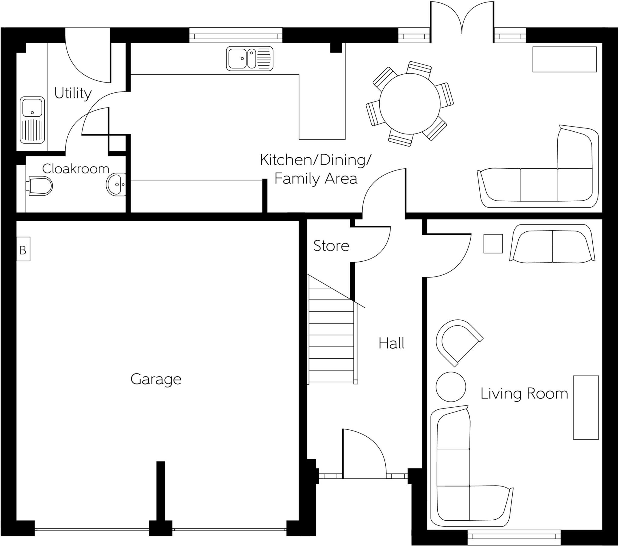
Plot 429, The Sunningdale, is a newly built five-bedroom detached home on the Landsdale development in East Kilbride. The house offers generous open-plan living downstairs with a kitchen/dining/family area, utility and French doors to the rear garden — a practical family layout with contemporary finishes, integrated appliances and an integral double garage.
The principal bedroom benefits from a Juliet balcony, fitted wardrobe and an en suite; bedroom 2 is also shown with an en suite in the build specification. The development carries a 10-year NHBC Buildmark policy and has on-site recognition for build quality, giving added reassurance for buyers of a new build.
Important practical notes: broadband speeds are reported as very slow in this location and the wider area is classified as very deprived — factors to consider for homeworking, connectivity and long-term resale. The listing records only one bathroom in the summary data (please check final specification and room count at reservation).
This is a chain-free, freehold new build priced at £470,995, suited to families wanting modern, low-maintenance living close to countryside views while benefiting from new-home warranties. Buyers should verify council tax banding, detailed room configuration and connectivity options before committing.
5 bedroom detached house for sale in Newhouse Road,
East Kilbride,
Glasgow,
G75 8RR, G75 — £469,995 • 5 bed • 1 bath • 1793 ft²
5 bedroom detached house for sale in Newhouse Road,
East Kilbride,
Glasgow,
G75 8RR, G75 — £469,995 • 5 bed • 1 bath • 1793 ft²
3 bedroom detached house for sale in Newhouse Road,
East Kilbride,
Glasgow,
G75 8RR, G75 — £319,995 • 3 bed • 1 bath • 1040 ft²
3 bedroom detached house for sale in Newhouse Road,
East Kilbride,
Glasgow,
G75 8RR, G75 — £319,995 • 3 bed • 1 bath • 1072 ft²
4 bedroom detached house for sale in Newhouse Road,
East Kilbride,
Glasgow,
G75 8RR, G75 — £448,995 • 4 bed • 1 bath • 1615 ft²
4 bedroom detached house for sale in Newhouse Road,
East Kilbride,
Glasgow,
G75 8RR, G75 — £388,995 • 4 bed • 1 bath • 1382 ft²


















































































