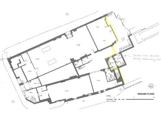
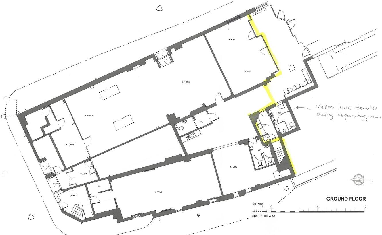
**Standout Features:**
- Grade II* listed, two-storey commercial building
- Prime town centre location with high visibility
- Versatile use potential: offices, leisure space, or residential conversion (subject to consent)
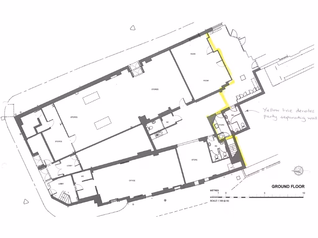
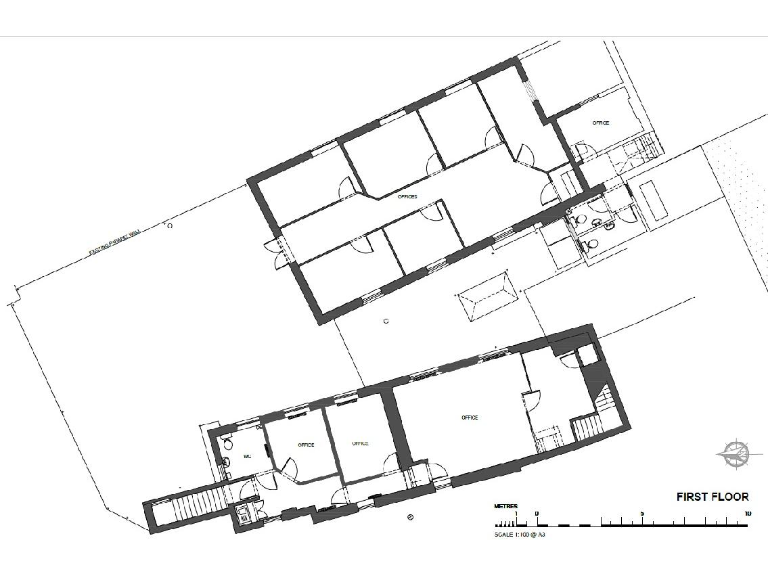
- Large plot size (6,004 sq ft) with substantial ground and first floor space
- Chain-free sale with a competitive asking price of £200,000
- Planning permissions previously granted for significant renovations and conversions
**Summary:**
Discover a unique investment opportunity with this Grade II* listed two-storey commercial building, ideally situated at the bustling heart of Taunton, adjacent to St. Mary Magdalene church. Offering over 6,000 sq. ft. of versatile space, this property has previously functioned as a nightclub, offices, and a church, and presents various possibilities for future use, from gyms to restaurants or even residential apartments, pending necessary consents.
While the building shows signs of age and may require renovation to align with modern standards, its prime location near popular amenities, shops, and transport links ensures strong market demand. Notably, the area boasts average deprivation levels and fast broadband services, making it a suitable choice for commercial ventures or residential transformation in a cosmopolitan community. Don't miss your chance to acquire this property with tremendous potential in a growing urban environment; opportunities like this are rare in today’s market!
Commercial property for sale in Commercial | Taunton, TA1 — £152,000 • 1 bed • 1 bath • 1201 ft²
Commercial property for sale in Retail investment with vacant upper parts, 3-5 Corporation Street, Taunton TA1 4AJ, TA1 — £650,000 • 1 bed • 1 bath • 4115 ft²
2 bedroom house for sale in Commercial | Taunton, TA1 — £152,000 • 2 bed • 1 bath • 1201 ft²
4 bedroom block of apartments for sale in Corporation Street, Taunton, Somerset, TA1 — £650,000 • 4 bed • 4 bath • 4115 ft²
High street retail property for sale in North Street, Taunton, Somerset, TA1 — £1,750,000 • 1 bed • 1 bath
High street retail property for sale in East Street, Taunton, Somerset, TA1 — £280,000 • 1 bed • 1 bath • 2376 ft²






























































