Well-presented three-bedroom lower flat with gardens, close to Milngavie centre and rail links.
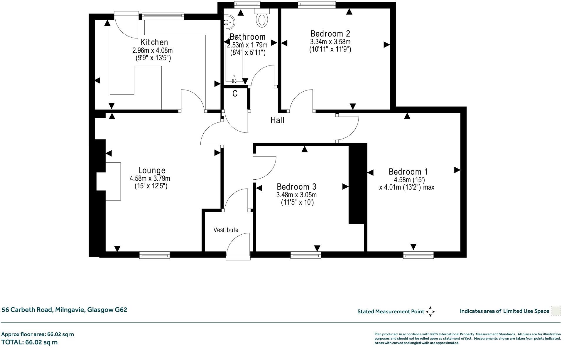
Three-bedroom lower cottage flat with main-door access
Private, sunny front and rear landscaped garden spaces
Well-presented throughout — ready to move into
Compact overall size (~710 sq ft); modest room footprint
One three-piece bathroom only
PVCu double glazing and gas central heating installed
Freehold tenure and affordable council tax (Band C)
Located close to Milngavie centre and railway station
A well-presented, three-bedroom lower cottage flat offering versatile living across a compact footprint of about 710 sq ft. The property has been carefully maintained and upgraded, presenting ready-to-move-in accommodation with good natural light and smart finishes throughout.
Highlights include private, sunny garden spaces to both front and rear, PVCu double glazing and gas central heating — practical features that reduce immediate maintenance needs. Its main-door access and generously proportioned rooms make the flat suitable for downsizers seeking single-level living or young professionals wanting easy commuting.
Location is a key strength: tucked in Milngavie’s Clober Estate within walking distance of the village centre, shops and Milngavie station (frequent services to Glasgow and beyond). Local schools include Clober Primary and Douglas Academy. Practical points: total area is modest, there is a single three-piece bathroom, and the surrounding ward is recorded as very deprived, which may affect some buyers’ preferences.
Overall, this freehold cottage flat offers a low-hassle home in a convenient, well-connected neighbourhood. It will particularly suit buyers prioritising garden space, tasteful presentation and immediate occupation, while those seeking larger homes or a quieter socio-economic area should note the compact size and local deprivation.
1 bedroom flat for sale in 97 Mugdock Road, Milngavie, G62 8PA, G62 — £130,000 • 1 bed • 1 bath • 549 ft²
2 bedroom apartment for sale in Keystone Road, Milngavie, G62 — £145,000 • 2 bed • 1 bath • 597 ft²
3 bedroom flat for sale in 40 Craigton Avenue, Milngavie, Glasgow, G62 — £175,000 • 3 bed • 1 bath • 937 ft²
3 bedroom flat for sale in Woodside Crescent, Alexandria G83 9EX, G83 — £92,500 • 3 bed • 1 bath • 904 ft²
2 bedroom apartment for sale in Strathblane Road, Milngavie, G62 — £235,000 • 2 bed • 1 bath • 678 ft²
2 bedroom apartment for sale in Iddesleigh Avenue, Milngavie, G62 — £165,000 • 2 bed • 1 bath • 812 ft²






































































































