Renovated three-bedroom townhouse with river views, garage and larger garden for the development..
- Riverside views from three floors via west-facing Juliette balconies
- Newly renovated throughout; high-spec finishes and boarded loft
- Three double bedrooms and three modern shower rooms
- Integral garage plus private off-street driveway parking
- Larger-than-development rear garden but overall plot very small
- Estate management fee £70 pcm (building insurance included)
- Freehold tenure; low flood risk and low local crime
- Electric central heating (modern system) — running costs dependent on tariff
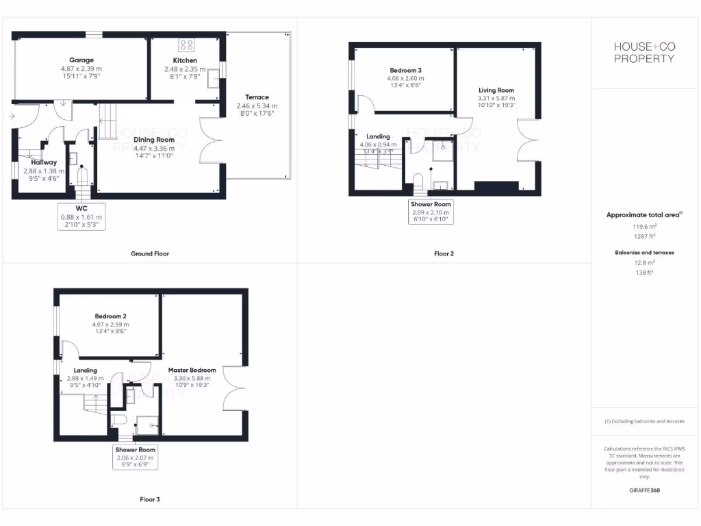
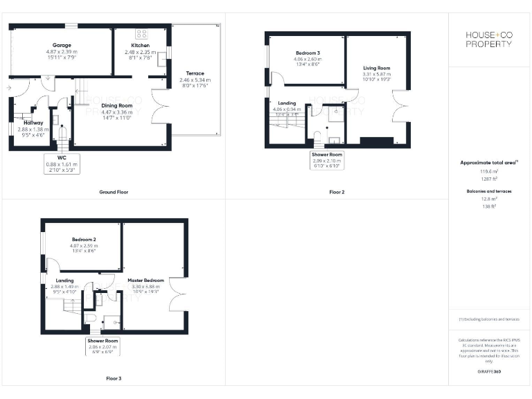
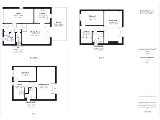
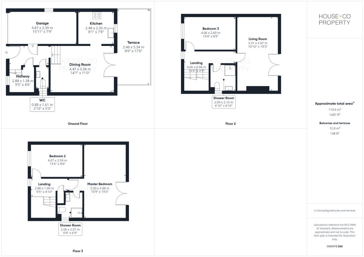
Set over three contemporary levels on the Avon, this newly renovated freehold townhouse combines riverside outlooks with modern family living. The house offers three double bedrooms, three bathrooms and Juliet balconies to the west, letting you enjoy evening light and river views from every principal floor. An integral garage, private off-street parking and a larger-than-development garden provide rare outdoor space for the setting.
The interior has been updated throughout with UPVC double glazing, a modern electric heating system and high-spec finishes; the property measures approximately 1,287 sq ft and includes boarded loft storage. Its layout — open-plan dining and kitchen, a first-floor living room with media wall, and a full-width master bedroom with ensuite — suits families who want generous entertaining space and separate bedroom floors.
Practical points to note: the house is freehold but sits in a managed development with an estate management fee of £70 pcm (around £840pa) which includes building insurance. The overall plot is described as very small despite the garden being larger than others on the development, and council tax is above average. The heating is electric (modern and efficient) rather than gas; that suits a low‑maintenance household but may influence running costs depending on tariffs.
Positioned near Conham Riverside Park and local shops, schools and cafés, the home offers a riverside lifestyle with good connectivity across Bristol. This property will appeal to families seeking move-in-ready accommodation with outdoor space and distinctive water views, or buyers prioritising a low-maintenance modern home by the river.
3 bedroom house for sale in St. Annes Close, St. George, Bristol, BS5 — £350,000 • 3 bed • 1 bath • 1024 ft²
1 bedroom flat for sale in Pilgrims Wharf, Anne's Park, Bristol, BS4 — £260,000 • 1 bed • 1 bath • 678 ft²
2 bedroom coach house for sale in St. Annes Close, St. George, BS5 — £290,000 • 2 bed • 1 bath • 710 ft²
3 bedroom semi-detached house for sale in Robertson Drive, St. Annes Park, Bristol, BS4 — £369,950 • 3 bed • 1 bath • 828 ft²
3 bedroom maisonette for sale in Crews Hole Road, St George, BS5 — £375,000 • 3 bed • 2 bath • 947 ft²
3 bedroom terraced house for sale in Burgess Green Close, St. Annes Park, Bristol, BS4 4DG, BS4 — £400,000 • 3 bed • 3 bath • 1265 ft²














































































































































