Large, character-filled freehold with clear conversion upside for experienced buyers.
Grade II listed Georgian building dating circa 1730
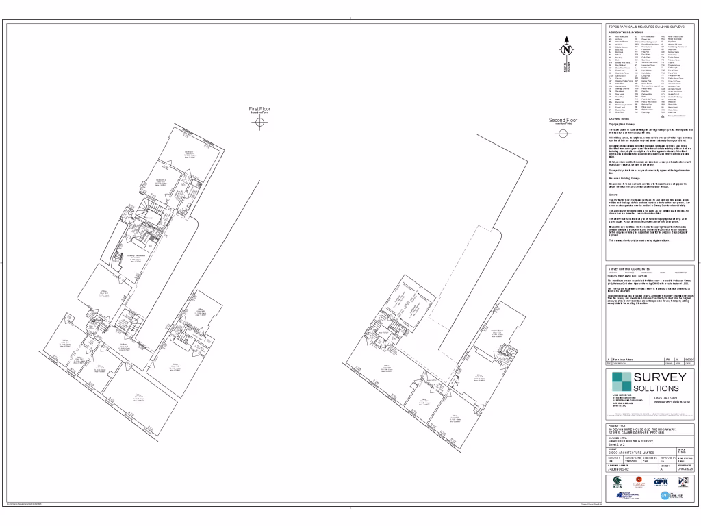
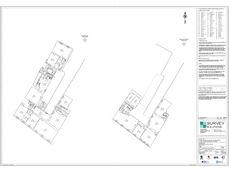
Freehold with extremely large internal area (6,935 sq ft)
Current mix: extensive offices plus one 2-bed self-contained flat
Courtyard garden; large sash windows and high ceilings
Conversion potential to residential/mixed use (STP required)
Listed status will restrict alterations and increase costs
Small plot and town-centre siting; high local crime levels
Close to River Great Ouse, guided busway, fast broadband
A substantial Grade II listed Georgian building in the heart of St Ives, offered freehold with a very large 6,935 sq ft footprint and an enclosed courtyard garden. The property currently combines office accommodation across two main parts with a self-contained residential unit, creating immediate rental or owner-occupation flexibility. Large sash windows, high ceilings and decorative cornices are intact and provide strong period character that will appeal to tenants or buyers seeking historic fabric.
The site presents clear conversion potential (subject to planning) for multiple residential units or a mixed residential/commercial scheme. Its town-centre location places shops, cafes, the River Great Ouse and the guided busway within easy reach, supporting lettability and longer-term value uplift. Broadband speeds are fast and the wider area is relatively affluent with strong local schools nearby.
Important constraints are upfront: the property is Grade II listed, which will limit permitted alterations and may extend timeframes and costs for conversion. Any residential conversion would require a planning application (STP) and specialist conservation input. The property sits on a small plot and the immediate area records high crime levels, which should be factored into security and management plans.
Overall, this is a character-rich, large freehold building suited to an investor or developer experienced with listed conversions or an occupier wanting prominent town-centre premises. The combination of generous internal volume, excellent central location and conversion upside offers a compelling long-term proposition provided the listing restrictions and local context are properly managed.
3 bedroom end of terrace house for sale in Free Church Passage, St. Ives, PE27 — £325,000 • 3 bed • 1 bath • 921 ft²
Shop for sale in 2 Bridge Street, St. Ives, Cambridgeshire, PE27 5EG, PE27 — £425,000 • 1 bed • 1 bath • 2566 ft²
5 bedroom terraced house for sale in Cromwell Terrace, St. Ives, Cambridgeshire, PE27 — £1,150,000 • 5 bed • 3 bath • 4069 ft²
Shop for sale in Bridge Street, St. Ives, Cambridgeshire, PE27 5EH, PE27 — £395,000 • 1 bed • 1 bath • 2244 ft²
6 bedroom detached house for sale in New Road, St. Ives, Cambridgeshire, PE27 — £450,000 • 6 bed • 1 bath • 1710 ft²
Shop for sale in 3 Sheep Market, St. Ives, Cambridgeshire, PE27 5AJ, PE27 — £330,000 • 1 bed • 1 bath • 1698 ft²


















































































