Large period semi with private driveway, detached garage and huge garden — ideal for families.
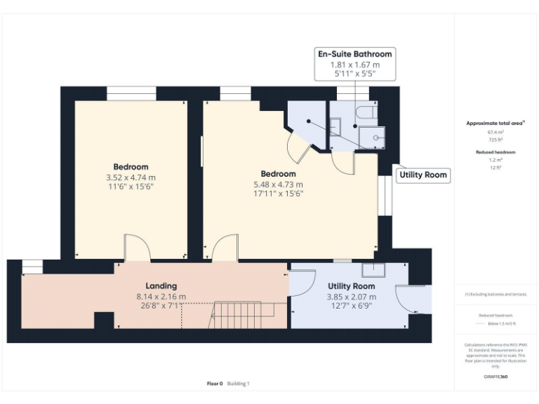
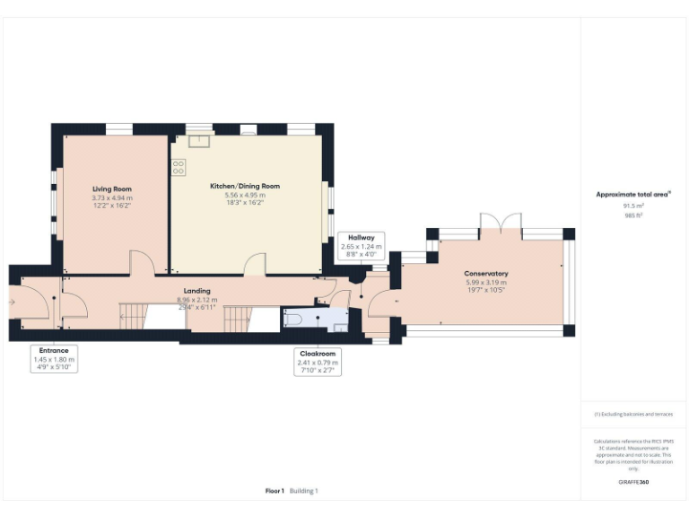
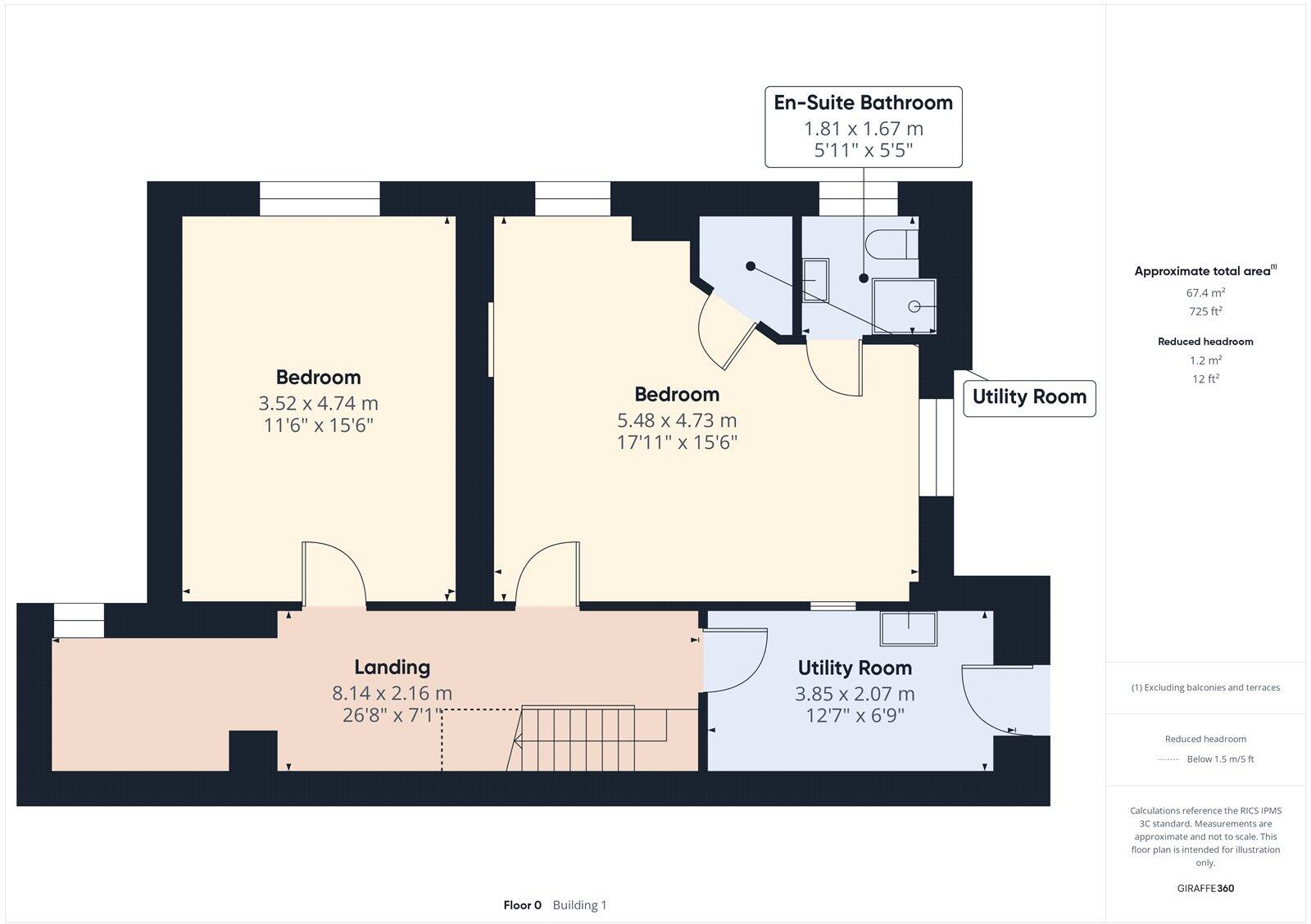
Five bedrooms across generous 2,604 sq ft of family accommodation
A commanding five-bedroom Victorian semi-detached home offering generous, flexible accommodation across approximately 2,604 sq ft. Original stonework and Gothic Revival details give the house strong period character, with multiple reception rooms, a conservatory and an office ideal for family life or home working.
Externally the property delivers practical benefits: a long private driveway, detached garage and large, enclosed gardens to front and rear offer secure off-street parking and plenty of outdoor space for children, pets and gardening. The location is well placed for local shops, buses and three nearby primary schools rated Good, making day-to-day life straightforward for families.
Buyers should note material practicalities: the EPC is E51 and the stone walls appear to have no insulation (assumed), while the double glazing was installed before 2002. There is one main bathroom for five bedrooms, which may prompt reconfiguration or extension for larger households. Overall the house is best suited to buyers seeking a spacious period home with scope to improve energy performance and modernise living spaces to their taste.
5 bedroom semi-detached house for sale in Atlantic Road South, Weston-super-Mare, North Somerset, BS23 — £650,000 • 5 bed • 3 bath • 3812 ft²
4 bedroom semi-detached house for sale in Ashcombe Road, Milton - SUBSTANTIAL HOME , BS23 — £390,000 • 4 bed • 2 bath • 1572 ft²
6 bedroom detached house for sale in Cambridge Road, Clevedon, BS21 — £1,450,000 • 6 bed • 2 bath • 4326 ft²
5 bedroom detached house for sale in Brean Down Avenue, Weston-super-Mare, North Somerset, BS23 — £925,000 • 5 bed • 3 bath • 3359 ft²
4 bedroom semi-detached house for sale in Quantock Road, Weston-super-Mare, North Somerset, BS23 — £395,000 • 4 bed • 2 bath • 1753 ft²
6 bedroom semi-detached house for sale in Devonshire Road, Weston-super-Mare, North Somerset, BS23 — £495,000 • 6 bed • 2 bath • 2010 ft²














































































































