**Standout Features:**
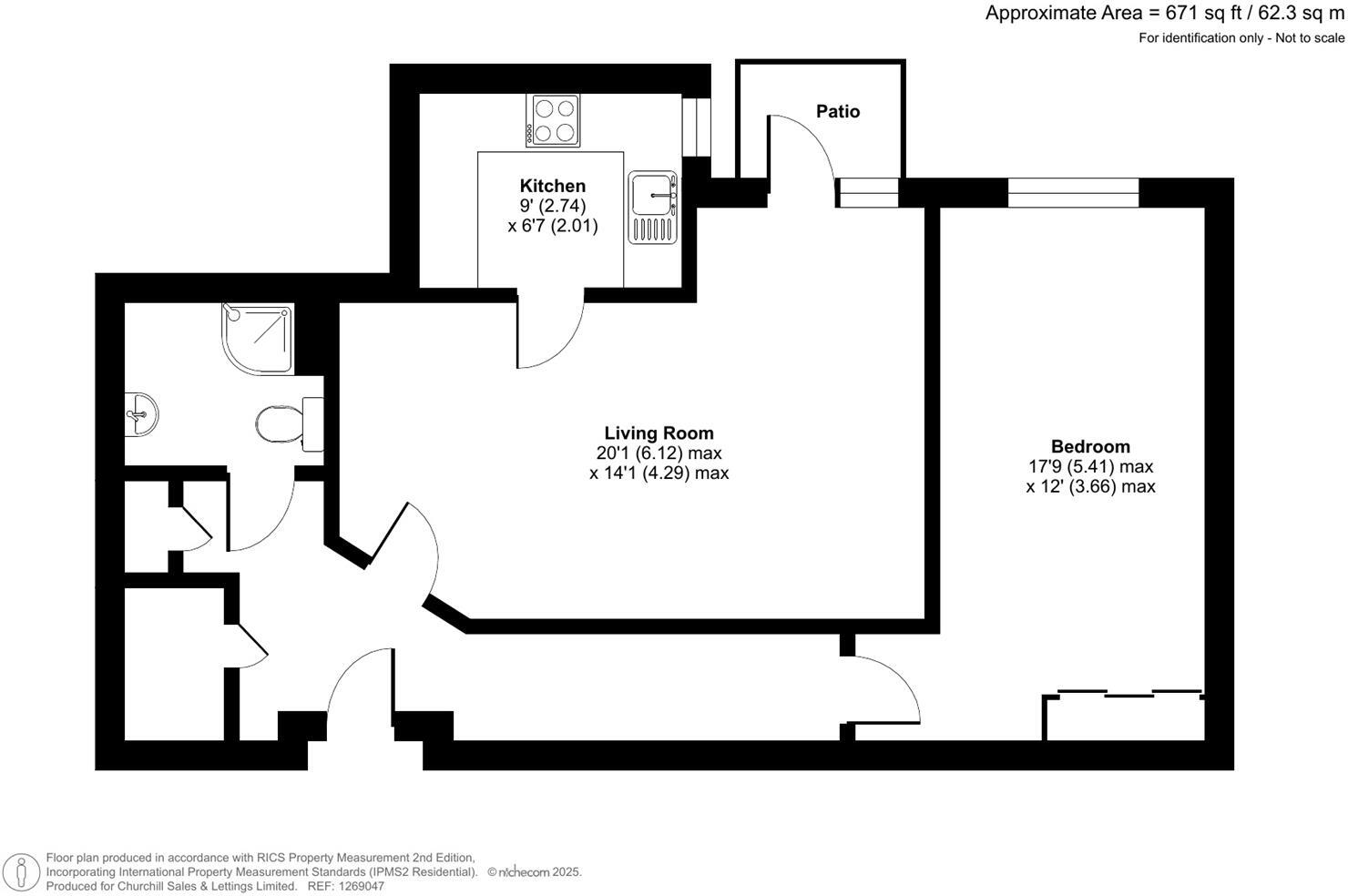
- One-bedroom ground floor apartment in a vibrant retirement community
- Private patio with views of landscaped gardens
- Fully fitted modern kitchen with integrated appliances
- On-site lodge manager available 5 days/week
- Secure Careline system for 24/7 safety
- Owners’ lounge with social events
- Guest suite access for family visitors
- Off-street parking and community heating system
- Excellent transport links and local amenities
**Summary:**
Welcome to this delightful one-bedroom ground floor retirement apartment at Ash Lodge, perfectly situated in the scenic riverside town of Walton-on-Thames. The apartment boasts a spacious living area that opens out onto a charming private patio, offering serene views of the beautifully landscaped communal gardens. Inside, the modern kitchen features integrated appliances and provides a functional layout, ideal for both cooking and entertaining.
This lovely community is managed by a dedicated lodge manager, ensuring a vibrant social atmosphere with regular events in the owners’ lounge. Safety is a priority with a 24-hour Careline system in place for peace of mind. The apartment is part of a well-maintained complex built in 2015, boasting eco-friendly features such as air-source heating. Convenience is at your doorstep with exceptional transport links and a wealth of shops and restaurants nearby, including supermarkets and cozy pubs.
With an affordable service charge and the added benefit of using guest suites at various Churchill Living developments, this property is not just a home—it’s a lifestyle choice. Whether you are seeking comfort or a sense of community, this inviting apartment is a rare opportunity you won’t want to miss. With limited availability in this desirable area, act now to secure your future in Ash Lodge!
1 bedroom retirement property for sale in Ash Lodge, Walton-On-Thames, KT12 — £260,000 • 1 bed • 1 bath • 511 ft²
1 bedroom retirement property for sale in Ash Lodge, Walton-On-Thames, KT12 — £199,950 • 1 bed • 1 bath • 559 ft²
1 bedroom retirement property for sale in Ash Lodge, Walton-On-Thames, KT12 — £225,000 • 1 bed • 1 bath • 548 ft²
2 bedroom retirement property for sale in Ash Lodge, Walton-On-Thames, KT12 — £375,000 • 2 bed • 2 bath • 751 ft²
1 bedroom retirement property for sale in Ash Lodge, Walton-On-Thames, KT12 — £190,000 • 1 bed • 1 bath • 500 ft²
1 bedroom retirement property for sale in Churchfield Road, Walton on Thames, KT12 — £299,950 • 1 bed • 1 bath • 540 ft²






































































