Family-friendly home with park views and easy access to Oswestry.
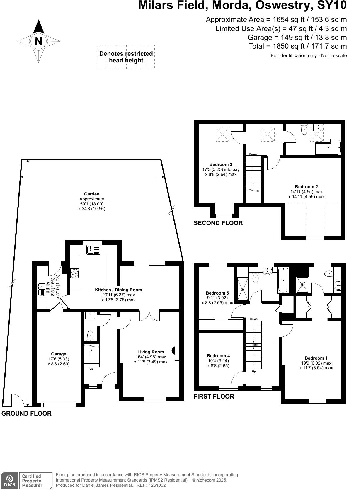
Five bedrooms plus three bathrooms across three floors
This modern three-storey detached house in Morda offers spacious family living across 1,850 sq ft. Bright reception rooms and a fitted kitchen create comfortable daily living, while five bedrooms provide flexibility for children, guests or a home office. The master benefits from an en-suite, and three bathrooms ease morning routines for busy households.
Outside, the low-maintenance private garden and side access suit family life and outdoor play, and the garage plus driveway deliver practical parking. The property overlooks a nearby park and is only a short 4-minute drive from Oswestry’s shops, schools and services — convenient for commuting and local amenities.
Built between 2007–2011, the home has double glazing and mains gas central heating; it presents as a modern, move-in option. Notable practical points: the EPC is C and council tax sits at Band E, and the three-floor layout may be less suitable for those with limited mobility. Overall, this is a roomy, well-located family house with good schools and countryside access nearby.
4 bedroom detached house for sale in St. Annes Drive, Morda, Oswestry, Shropshire, SY10 — £430,000 • 4 bed • 2 bath • 1486 ft²
4 bedroom detached house for sale in St Annes Drive, Morda, SY10 — £385,000 • 4 bed • 2 bath • 1498 ft²
4 bedroom detached house for sale in 16 Sweeney Drive, Morda, SY10 — £330,000 • 4 bed • 2 bath • 1346 ft²
4 bedroom detached house for sale in Glentworth Drive, Oswestry, SY10 — £365,000 • 4 bed • 2 bath • 1075 ft²
4 bedroom house for sale in St. Annes Drive, Morda, Oswestry, SY10 — £390,000 • 4 bed • 2 bath • 1300 ft²
3 bedroom terraced house for sale in Milars Field, Morda, Oswestry., SY10 — £235,000 • 3 bed • 1 bath • 911 ft²






























































































































