Single-floor living in a quiet, well-connected village with large garden potential.
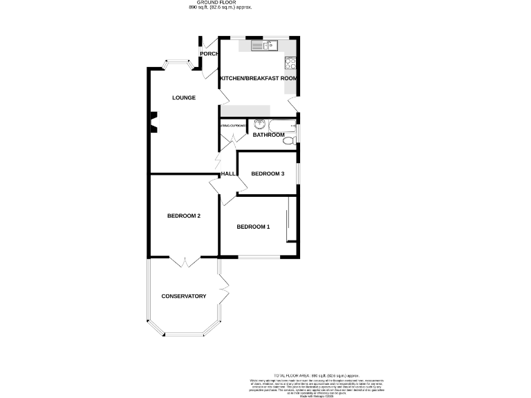
3 bedrooms with conservatory providing extra light and living space
Chain-free sale—ready for a quicker completion
Garage plus ample off-road driveway parking
Large rear garden in excess of 100ft, requires cultivation
Dated interior; likely needs general refurbishment and updating
Heating: electric storage heaters; oil-fired boiler and cylinder present (inspect)
Double glazing fitted, installation date unknown
Mid-1960s/70s construction with cavity-filled walls
This three-bedroom semi-detached bungalow in Great Totham delivers comfortable single-level living in a popular village setting. The layout includes a lounge, kitchen/breakfast room, conservatory and a long rear garden, offering straightforward accommodation for downsizers or small families. The property is chain-free and benefits from a garage plus generous driveway parking.
The house is mid‑20th century (circa 1967–75) and retains many original fittings and finishes. That simplicity presents clear potential: the conservatory adds extra light and living space, and the large rear plot (over 100ft) gives scope for landscaping, accessible gardening or a single-storey extension subject to consent. Broadband speeds are reported as fast and the area is affluent with low crime, making the location practical and peaceful.
Buyers should be aware this bungalow is dated in places and will suit someone willing to refresh or renovate. Heating arrangements include electric storage heaters and an oil-fired boiler and hot water cylinder in the airing cupboard; both should be inspected and serviced as required. The rear garden is sloping and in need of cultivation and clearance. Double glazing is installed, but the installation date is unknown.
Overall this is a sensible, low‑rise property for people seeking single-floor convenience in a well-regarded rural village. It offers immediate occupation potential with clear opportunity to add value through modernisation, garden landscaping, or reconfiguring internal finishes.
3 bedroom detached bungalow for sale in Rookery Lane, Great Totham , CM9 — £450,000 • 3 bed • 1 bath • 950 ft²
3 bedroom detached bungalow for sale in Rookery Lane, GREAT TOTHAM, CM9 — £450,000 • 3 bed • 1 bath • 809 ft²
3 bedroom detached bungalow for sale in Mill Road, Great Totham, CM9 — £550,000 • 3 bed • 1 bath • 1582 ft²
3 bedroom bungalow for sale in Walden House Road, Great Totham, Maldon, Essex, CM9 — £400,000 • 3 bed • 2 bath • 931 ft²
4 bedroom detached bungalow for sale in Rookery Lane, Great Totham, Maldon, CM9 — £525,000 • 4 bed • 1 bath • 994 ft²
4 bedroom bungalow for sale in Colchester Road, Great Totham, CM9 — £600,000 • 4 bed • 2 bath • 1324 ft²


































































