A versatile 4/5-bedroom family home with large gardens, superb views and ample parking.
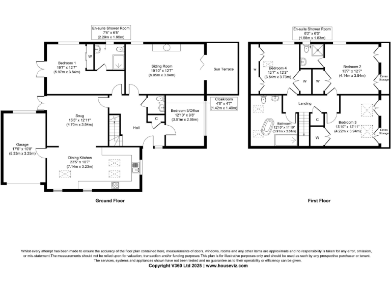
Spacious detached family home circa 2,100 sq ft with versatile layout
Five bedrooms including ground-floor master and potential home office
Beautiful, large landscaped gardens with raised sun terrace and views
Driveway parking for several cars plus attached garage and utility area
Dining kitchen with vaulted ceiling, integrated appliances and snug
Multiple bath/shower rooms including en-suites and luxury family bathroom
Council Tax in a high band (verbal enquiry indicates Band F) — expensive
Heating/electrical appliances and fixtures sold as seen; not tested
Nestled on a peaceful enclave at the edge of Sutton-in-Craven, this highly individual detached home offers flexible family living across circa 2,100 sq ft. Ground-floor living is arranged for modern family life: a vaulted dining kitchen with snug, a generous sitting room with bi-fold doors to a raised sun terrace, and a master suite with patio access. Upstairs provides three large double bedrooms with eaves storage and a luxurious family bathroom — the layout also includes a large home office that can serve as a fifth bedroom.
Externally the house sits on a large plot with beautifully landscaped gardens, established planting, a raised decked sun terrace and excellent southerly hillside views. Practical features include substantial driveway parking for several cars, an adjoining garage with utility area, greenhouse and sheltered patio garden. Mains services are connected and the property is offered freehold with vacant possession.
The Oaks occupies a sought-after, semi-rural village position bordering open fields, within easy reach of two good primary schools and local amenities in neighbouring Cross Hills. The versatile accommodation, generous outdoor space and strong school catchment make the house well suited to growing families seeking a stylish, countryside-edge home.
Buyers should note the property’s council tax band is high (verbal enquiry indicates Band F) and that the vendor has not had heating, electrical appliances or other fixtures tested — these items are sold as seen. Overall, this is a distinctive family home with significant space, attractive gardens and scope to personalise.
5 bedroom detached house for sale in 8 Tarn Moor Crescent, Skipton, BD23 1LT, BD23 — £595,000 • 5 bed • 2 bath • 1306 ft²
2 bedroom semi-detached house for sale in 8 Willow Way, Sutton-in-Craven BD20 7PT, BD20 — £219,950 • 2 bed • 1 bath • 720 ft²
6 bedroom detached house for sale in 2 Hall Court, Sutton-in-Craven BD20 7NF, BD20 — £560,000 • 6 bed • 1 bath • 2000 ft²
4 bedroom detached house for sale in 3 Hazel Grove, Sutton In Craven, BD20 7QR, BD20 — £420,000 • 4 bed • 2 bath • 1203 ft²
4 bedroom detached house for sale in Holme Lane, Sutton-in-Craven, BD20 — £550,000 • 4 bed • 2 bath • 2168 ft²
4 bedroom detached house for sale in 4 bedroom detached house for sale – 2 Green Bank, Glusburn, BD20 8FU, BD20 — £875,000 • 4 bed • 1 bath • 2370 ft²






































































































































