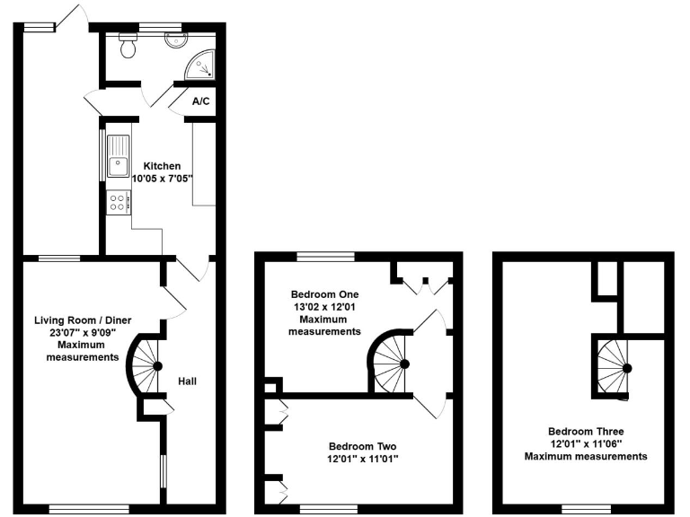
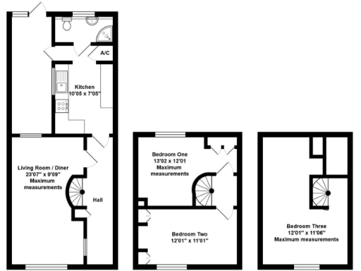
**Standout Features:**
- Three bedrooms in a Victorian terraced house
- Ground floor shower room
- Private garage for secure parking/storage
- No forward chain for a smooth purchase process
- Close proximity to local shops and amenities
- Opportunity for modernisation and customization
**Summary:**
Discover the potential of this charming three-bedroom Victorian terraced house, offered with no forward chain for a swift purchase. This cozy home spans three floors and includes a comfortable living area, a practical kitchen, and a conveniently located ground floor shower room. Upstairs, you will find two spacious bedrooms, with a third nestled in the converted attic.
The property also features a private garage, offering secure parking and storage—a rare convenience in this vibrant area. While it requires some modernisation, this is an excellent opportunity for first-time buyers or investors eager to put their own mark on a home. With local shops and bus routes just a stone's throw away, as well as nearby schools boasting good Ofsted ratings, this location is ideal for families and professionals alike. Don’t miss out on the chance to create your dream living space in this competitive market!
3 bedroom terraced house for sale in Whitworth Close, Gosport, PO12 3PF, PO12 — £239,950 • 3 bed • 1 bath • 784 ft²
3 bedroom terraced house for sale in St. Andrews Road, Gosport, Hampshire, PO12 — £235,000 • 3 bed • 1 bath
3 bedroom semi-detached house for sale in St. Helens Road, Gosport, Hampshire, PO12 — £299,950 • 3 bed • 1 bath • 635 ft²
3 bedroom mews property for sale in Trinity Green, Gosport, PO12 — £250,000 • 3 bed • 1 bath • 723 ft²
3 bedroom end of terrace house for sale in St Michaels Grove, Fareham, PO14 — £315,000 • 3 bed • 1 bath • 1128 ft²
3 bedroom end of terrace house for sale in Whitworth Close, Gosport, PO12 — £249,950 • 3 bed • 1 bath • 883 ft²










































