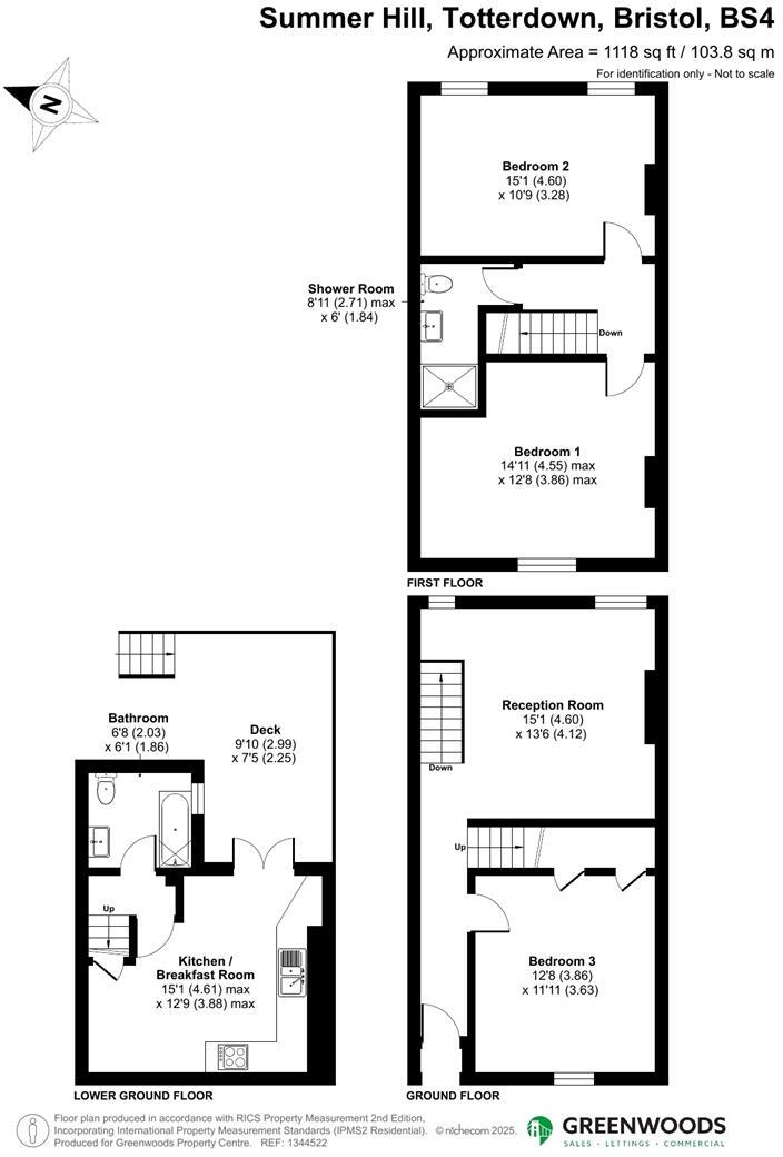
Freehold Victorian mid-terrace arranged over three floors
Two double bedrooms plus third bedroom/home office
Lower-ground kitchen/diner with French doors to deck and small garden
No onward chain, quick city and Temple Meads access
Energy Rating D; likely needs insulation and energy upgrades
Some evidence of damp risk and general modernisation required
Small rear garden/plot and compact room sizes in places
Higher local crime and area deprivation to consider
This three-bedroom Victorian mid-terrace in Totterdown offers flexible, split-level living across lower-ground, hall and top floors. The layout gives two generous double bedrooms, a third bedroom or home office, and a lower-ground kitchen/diner that opens via French doors to raised decking and a small enclosed garden — ideal for city buyers wanting outdoor space without maintenance overhead.
Practical benefits include freehold tenure, no onward chain and quick access to Bath Road, Temple Meads and local independent shops and cafés. The property retains period character and generous room proportions for its type, while the 3D interactive tour and clear room sizes make planning improvements straightforward for first-time buyers or owners keen to add value.
Buyers should note this house needs some modernisation: historic solid-brick walls likely lack cavity insulation, some damp or moisture risk is indicated, and general updating will improve the current Energy Rating D. The plot and rear garden are small, and the neighbourhood records higher crime rates and some area deprivation — factors to weigh alongside excellent transport links and strong local amenities.
Overall this home suits buyers who want a characterful, centrally located Totterdown property to personalise and improve. It’s especially appealing to first-time buyers or investors comfortable with targeted upgrades to boost comfort and energy performance.



































































































